Yhtiöntie 21

2.Kaupunginosa, Kauniainen | Erillistalo | 2-3h+k+th+kph+s+wc+parvi+piha (yj. 3h+k+vh+wc)

  • 498 000 €

    Velaton hinta

  • 100,0 m2

    Asuinpinta-ala

  • 114,29 m2

    Kokonaispinta-ala

  • 1988

    Rakennusvuosi

Hurmaavan persoonallinen koti Kauniaisista.

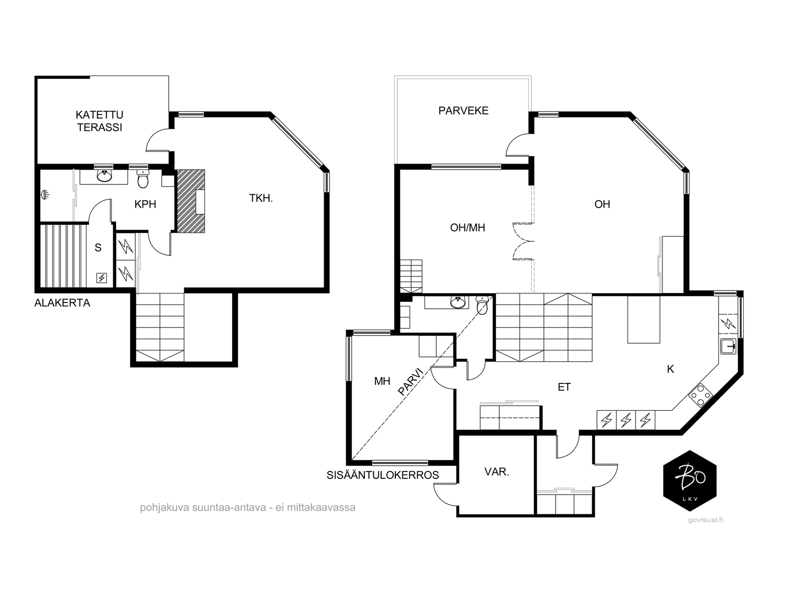
Kodikas, mielenkiintoinen ja muunneltavissa oleva pohja on tämän kodin sielu. Mielenkiintoisen pohjasta tekee sen monitasoisuus sekä yksityiskohdat; olohuoneen korkea tila, vino katto, tilojen muokattavuus eri kerroksissa ja tätä myöden käytännöllisyys erilaisiin tarpeisiin.

Kaiken keskiössä on avara kahden tason kokonaisuus, jossa on olohuoneen, keittiön ja ruokailutilan muodostama oleskelualue. Kaunis Topi-keittiö palvelee arjessa hienosti toiminnallisuutensa sekä kaappi- ja laskutilan takia. Keittiö on remontoitu vuonna 2023 ja tällöin uusittiin myös kaikki kodinkoneet. Keittiön niemeke toimii hyvin työtasona sekä arkiruokailuun sopivana, mutta niemekkeen tilalle voi tarvittaessa laittaa myös ruokailuryhmän. Ylätason olohuone on tällä hetkellä yhtenäinen avara tila, mutta alkuperäisessä pohjapiirustuksessa tila on osoitettu mahdolliseksi jakaa makuuhuoneen ja olohuoneen kesken. Olohuoneesta on pääsy parvelle, joka toimii tällä hetkellä varastotilana, mutta olisi oivallinen myös lapsen leikeille. Parvelle valoa tuo kattoikkuna. Sisääntulokerroksessa on lisäksi yksi makuuhuone, erillinen wc sekä eteinen. Alakerrassa on takkahuone, joka toimii nykyisillä omistajilla makuuhuonekäytössä. Takkahuoneen yhteydessä on vuonna 2022 remontoitu kaunis kylpyhuone sekä sauna. Takkahuoneesta on käynti takapihalle. Tässä kodissa on mahdollisuuksia hyvin eri kokoisten perheiden tarpeisiin, koska makuuhuoneita saa tarpeen vaatiessa kolme.

Asunto Oy Yhtiöntie 21 muodostuu kolmesta erillistalosta. Asumiskustannukset ovat hyvin maltilliset ja yhtiötä hoidetaan asukaslähtöisesti. Yhtiössä on poikkeava vastuunjako tarkoittaen, että jokainen vastaa omasta rakennuksestaan. Erillistalo C:n tehtyjä suurempia remontteja on mm. vuonna 2022 tehty kattoremontti, jossa uusittiin kattotiilet, kattoikkuna sekä vedenohjaus, vuonna 2022 tehty kylpyhuoneen remontti sekä vuonna 2023 tehty keittiöremontti. Erillistalo C:lla on aidattu ja suojaisa piha-alue, jossa on istutuksia, nurmialuetta sekä vuonna 2024 uusittu terassi. Huoneistolle kuuluu kaksi autopaikkaa.

Sijainti Kauniaisissa on mitä parhain, koska Kauniaisten palvelut ovat lähellä. Kauniaisten kauppakeskukselle on matkaa noin 900m ja juna-asemalle noin 1,1km. Päiväkoteja ja kouluja löytyy useampia ja julkinen liikenne tavoittaa hyvin eri suuntiin kulkevia. Haluatko rauhallisen asuinympäristön, mutta läheltä palveluita? Tervetuloa tutustumaan.

Olethan yhteydessä välittäjään ja sovitaan yksityisestä esittelystä.

Myynti ja tiedustelut:
Mari Rautio LKV, LVV, KiAT, Partner
040-1202701
mari@bo.fi

Kiinnostaako tämä kohde?

Ota meihin yhteyttä tai jätä viesti

HUONEISTO

Osakkeet
385-472
Hallintamuoto
Asunto-osakeyhtiö
Huoneluku
2-3h+k+th+kph+s+wc+parvi+piha (yj. 3h+k+vh+wc)
Kerros
1
Kerroksia
3
Asuinpinta-ala
100,0 m²
Muut tilat
14,3 m²
Lisätietoja pinta-alasta
Huoneistoon on tehty 13.2.2008 SFS 5139 standardin mukainen pinta-alamittaus, jonka mukaan huoneistoala on 100,39m². Tämän lisäksi huoneistoalaan kuulumattomia pinta-aloja ovat (alle 2200mm korkea) sauna 2,81m² sekä (alle 1600mm korkea) parvi 11,48m².

Yhtiöjärjestyksen mukaan pinta-ala on 66,5m² ja huoneistoon kuuluu lisäksi takkahuone, sauna, pesuhuone, pukuhuone ja wc joiden yhteenlaskettu pinta-ala on 28m². Tarkistusmitattu.
Näkymät
Puistomaiset vehreät näkymät pihalle ja kadulle noin etelä/länsi suuntaan.
Parveke
Sisäänvedetty
Keittiön kuvaus, lisätiedot ja varustus
Kaunis Topi-keittiö remontoitu 05/2023.
Varustelu: jääkaappi/pakastin, induktioliesi integroidulla liesituulettimella, erillisuuni, mikro, astianpesukone, viinikaappi ja katossa oleva 3-haarainen spottivalaisin.
Työtaso laminaatti. Kaapistojen välitila levytetty.
Keittiössä aamiaistaso / arkiruokailuniemeke, jonka taso on massiivipuuta. Saarekkeen saa tarpeen mukaan irrotettua jos tilaan haluaa ruokapöydän. Lattia marmorilaatta. Seinät maalattu.
Pesutilojen kuvaus, lisätiedot ja varustus
Kaunis kylpyhuone on remontoitu vuonna 12/2022.
Varustelu: Sadesuihku, Hietakari -suihkuseinä liukuovella, seinä wc-istuin, allaslaatikosto, valopeili, käsisuihku, kaappi, lattialämmitys. Lattia ja seinät laatta.
WC-tilojen kuvaus
Wc-istuin, allaskaapisto, valopeili, kaapistoa, lattialämmitys, käsisuihku. Lattia ja seinät laatoitettu.
Lukumäärä: 2
Sauna
Asunnossa on sauna
Saunan kuvaus, lisätiedot ja varustus
Sähkökiuas, seinät paneloitu ja lattia laatta.
Makuuhuoneen kuvaus, lisätiedot ja varustus
MH (sisääntulokerros) lattia laatoitettu ja seinät maalattu sekä tapetoitu, kaapisto.
Lukumäärä: 2
Oleskelutilojen kuvaus, lisätiedot ja varustus
Lattia laminaatti ja seinät maalattu, liukuovikaapisto. Olohuoneen tila mahdollista jakaa väliseinällä ja näin tilaan saa tarvittaessa makuuhuoneen. Olohuoneesta käynti parvelle, jota voi hyödyntää oman tarpeen mukaan esimerkiksi säilytystilana. Olohuoneessa ilmalämpöpumppu.
Muut huonetilat
Alakerran takkahuone on tällä hetkellä nykyisillä asukkailla makuuhuonekäytössä. Seinät maalattu ja sängyn päätyseinä on koristetiiltä. Lattia marmorilaatta. Takka (ei varaava). Käynti takapihalle.
Takkahuoneeseen tultaessa portaiden alapäässä on syvennys pesukoneelle sekä kuivausrummulle. Takkahuoneessa ilmalämpöpumppu.
Eteinen: Seinät maalattu, lattia laatoitettu, lattialämmitys. Liukuovikaapisto.
Muuta kauppaan kuuluvaa
Olemassa olevat sälekaihtimet
Muutostyöt huoneistossa
Aiemmat osakkaat (tieto saatu kuntotarkastusraporteista) :
2009 Keittiön remontti, takkahuoneen tiiliseinän asennus, ylä- ja alaparvekkeet sekä terassi kunnostettu
2010 Lämminvesivaraajan uusinta
2010 Talon ulkoseinien puuosien maalaus

Nykyisen osakkaan teettämät remontit ja kunnostukset:
2012 Terassin ulko-oven uusinta
2013 Parvekkeen ulko-oven uusinta
2014 Yläkerran olohuoneen lattiapinnoite uusittu (laminaatti) ja rappuset sekä kaiteet.
2015 Ikkunoiden huolto / tiivistys
2019 Ulkoseinien puuosien maalaus
2020 ulkoportaiden laatoitus
2020 Sokkelien maalaus
2021 / 2022 Kattoremontti, jolloin myös kattoikkuna vaihdettiin. Räystäskourut ja syöksytorvet uusittiin.
12/2022 Kylpyhuoneremontti
05/2023 Keittiön remontti, jolloin uusittiin myös kaikki kodinkoneet
2023 Seinien maalausta sisätiloissa: keittiö ja tuloaula sekä lasitiiliseinän poisto.
2024 Ilmanvaihtokoneen moottorin vaihto ja ilmanvaihtokanavien nuohous. Vaihdettu tuloilmaventtiilit ja poistoilmaventtiilit.
11/2024 Ilmalämpöpumpun asennus takkahuoneeseen
2024 Terassin uusiminen.
2025 Ilmalämpöpumpun asennus olohuoneeseen
Kunto
Hyvä
Takka
Nuohottu keväällä 2024
Takkatiedot
Takka, muu
Kauppaan ei kuulu
Pesukone ja kuivausrumpu

KIINTEISTÖ- JA YHTIÖTIEDOT

Asuinpinta-ala
100,0 m² (114,3 m²)
Yhtiön nimi
Asunto Oy Yhtiöntie 21
Tontin omistus
Oma
Tontin koko
3 004,00 m²
Pihan kuvaus
Suojaisa ja aidattu piha-alue noin etelä / länsi suuntaan. Pihalla vuonna 2024 uusittu lehtikuusesta valmistettu terassi, nurmialue ja istutuksia. Hallinta-alueet on määritelty yhtiöjärjestyksen liitekartassa.
Käyttöönottovuosi
1988
Rakennusmateriaali
Puu, tiili
Kattotyyppi
Harja / pulpetti
Kate
Tiili
Lämmitysjärjestelmän kuvaus
Sähkö, ilmalämpöpumppu
Energiatodistus
Kyllä
Lisätietoja energiatodistuksesta
Energiatodistuksen viimeinen voimassaolopäivä 9.4.2035
Energialuokka
E2018
Tiedossa olevat tulevat korjaukset/remontit
Yhtiössä asunto-osakeyhtiölaista poikkeava kunnossapitovastuu. Yhtiöjärjestyksen 5§: Jokainen osakas vastaa kaikista hänen omistamansa asunnon mahdollisista rakennusvirheistä, huolloista, korjauskuluista, peruskorjauskuluista, ym huoneiston sisä- ja ulkopuolisista töistä ja niistä aiheutuvista kuluista siten, ettei asunto-osakeyhtiö vastaa näistä kuluista ja kustannuksista miltään osin eivätkä osakkeen omistajat voi vaatia toisiaan tai taloyhtiötä osallistumaan toisen asunnon korjaus- ym. kuluihin ja kustannuksiin.
*1.1.2027 mennessä huoneistokohtaiset vesimittarit on vaihdettava etäluettaviksi. Tästä ei päätöstä milloin muutos tehdään.
Pihapaikkoja
4
Autotallit
2
Sähköpistokepaikat
1
Lisätietoja autonsäilytyspaikoista
Yhtiöjärjestyksen liitekarttaan merkitty kahdelle autolle pihapaikka, toinen sähköpistokkeella.
Isännöitsijäntodistuksen mukainen päivämäärä
12.09.2025
Lainat
0,00 €
Isännöitsijä
Yhtiössä ei ammatti-isännöintiä.
Hallituksen jäsen Markku Huhta-Koivisto,
Yhtiöntie 21 B, 02700 Kauniainen
Kiinteistönhoito
Asukkaat
Taloyhtiössä muuta
Taloyhtiön tontti on jaettu yhtiöjärjestyksen liitekartassa hallinta-alueisiin. Liitekarttaan on merkitty myös jokaisen talon autopaikat. Yhtiön hallinnassa C-talon kellarikerros erillisellä sisäänkäynnillä. Kaikilla osakkailla on vapaa pääsy ja kulkuoikeus kyseiseen tilaan. Tilassa mm. sähkökeskukset, sähkömittarit, vesimittarit ja antennikaapit.

MUITA TIETOJA

Kaavoitus
Asemakaava
Lisätietoa kaavoituksesta
Kauniaisten kaupunki vaihde 09 50561. Asemakaavamuutoksiin sekä kaupungin uudistumiseen voi tutustua lisää sivustolla: https://kartat.kauniainen.fi/IMS/
Josta löytyy lisätietoa mm.
*https://www.kauniainen.fi/asuminen-ja-ymparisto/kaavoitus-ja-maankaytto/kaavoitus/kaavoitushankkeet/ak-221-kaupungintalon-alue/
*https://www.kauniainen.fi/asuminen-ja-ymparisto/kaavoitus-ja-maankaytto/kaavoitus/kaavoitushankkeet/ak-243-asemanseutu/
*https://www.kauniainen.fi/asuminen-ja-ymparisto/kaavoitus-ja-maankaytto/kaavoitus/hyvaksytyt-ja-voimaan-tulleet-kaavat/ak-206-gresantie-1-5-bensowin-alue/
Palvelut
Kauniaisten ostoskeskus noin 900m, jossa mm. S-Market, K-Supermarket, apteekki, Ihana kukkanen, Keittiö- ja lahjatavaraliike Pannacotta. Kesäisin tuoreet marjat ja perunat kauppakeskuksen sisääntulosta.
Päiväkoti
Päiväkoti Norlandia Graniitti noin 1,7km
Sansinpellon päiväkoti noin 1,2km
Pilke ICEC Kauniainen noin 2,7km
Päiväkoti Pikku Akatemia noin 2,7km
Koulu
Mäntymäen koulu kävellen noin 1,1km ja autolla 1,9km.
Kasavuoren koulu 2,6km.
Granhultsskolan 2,1km (ruotsinkielinen)
Hagelstamin koulu noin 1,5km (ruotsinkielinen)
Liikenneyhteydet
Kauniaisten juna-asemalle noin 1,2 km, josta Leppävaaraan noin 5 minuutin matka ja Helsinkiin noin 20 minuutin matka. Bussilla 549 metrolinjalle Tapiolan kauppakeskus Ainoaan noin 29min. Bussilla 533 Iso Omenaan noin 35min.
Vapautuu
Sopimuksen mukaan / 2kk kaupoista

ASUMISKUSTANNUKSET

Hoitovastike
189,75 €/kk (1,90 €/m²)
Yhtiövastike yhteensä
189,75 €
Vesimaksu
20,00 €/hlö/kk
Muut maksut / lisätietoa maksuista
*Vesimaksuennakko 20 euroa/hlö/kk. Vesimaksujen tasaus suoritetaan kerran vuodessa todellisen kulutuksen mukaan.
*Sähkö oman kulutuksen ja sopimuksen mukaisesti. Nykyisillä asukkailla (2hlöä) vuoden 2024 sähkönkulutus ollut 14994kWh.
*Nykyisillä omistajilla vuoden 2024 sähkölasku ollut keskimäärin 224€/kk (sisältäen sähkö+siirto+vero). Huomaathan, että annettu tieto on suuntaa-antava. Omat käyttötottumukset ja sopimusehdot määrittelevät aina oman keskimääräisen kustannuksen.
*Hoitovastike sisältää vesimaksuennakon, mutta vesilasku tasataan vuosittain todellisen kulutuksen mukaiseksi.
*Kotivakuutus omien sopimusehtojen mukaisesti.
*Hallituksella oikeus päättää ylimääräisten hoitovastikkeiden keräämisestä.
*Taloyhtiön osakeluettelo on siirretty MML:n huoneistotietojärjestelmään ja omistusoikeus perustuu paperiseen osakekirjaan. Ostaja on tietoinen siitä, että hänen tulee hakea omistusoikeutensa rekisteröintiä huoneistotietojärjestelmään Maanmittauslaitokselta kahden kuukauden kuluessa kauppakirjan allekirjoituksesta. Samalla ostajan on toimitettava paperinen osakekirja Maanmittauslaitokselle mitätöitäväksi. Ostaja vastaa omistusoikeutensa rekisteröintikustannuksista sekä osakekirjan mitätöinnistä aiheutuvista mahdollisista kustannuksista. Lisäksi saattaa syntyä pankkien määräämiä kuluja.
*Ostajan ja myyjän pankki veloittavat kaupanteosta oman hinnastonsa mukaisen
kulun.
*Osapuolet vastaavat sähköisen kaupan kustannuksista sovitun mukaisesti.
*Ostaja maksaa varainsiirtoveron 1,5 % velattomasta kauppahinnasta kaupantekotilaisuudessa.

HINTA

Myyntihinta
498 000,00 € (4 980,00 €/m²)
Velaton hinta
498 000,00 € (4 980,00 €/m²)
Yhtiöntie 21 - kuva 1 Yhtiöntie 21 - kuva 2 Yhtiöntie 21 - kuva 3 Yhtiöntie 21 - kuva 4 Yhtiöntie 21 - kuva 5 Yhtiöntie 21 - kuva 6 Yhtiöntie 21 - kuva 7 Yhtiöntie 21 - kuva 8 Yhtiöntie 21 - kuva 9 Yhtiöntie 21 - kuva 10 Yhtiöntie 21 - kuva 11 Yhtiöntie 21 - kuva 12 Yhtiöntie 21 - kuva 13 Yhtiöntie 21 - kuva 14 Yhtiöntie 21 - kuva 15 Yhtiöntie 21 - kuva 16 Yhtiöntie 21 - kuva 17 Yhtiöntie 21 - kuva 18 Yhtiöntie 21 - kuva 19 Yhtiöntie 21 - kuva 20 Yhtiöntie 21 - kuva 21 Yhtiöntie 21 - kuva 22 Yhtiöntie 21 - kuva 23 Yhtiöntie 21 - kuva 24 Yhtiöntie 21 - kuva 25 Yhtiöntie 21 - kuva 26 Yhtiöntie 21 - kuva 27 Yhtiöntie 21 - kuva 28 Yhtiöntie 21 - kuva 29 Yhtiöntie 21 - kuva 30 Yhtiöntie 21 - kuva 31 Yhtiöntie 21 - kuva 32 Yhtiöntie 21 - kuva 33