Mellstenintie 15

Haukilahti, Espoo | Rivitalo | 5h, k, kph x2, khh, saunaosasto

  • 795 000 €

    Velaton hinta

  • 259,0 m2

    Asuinpinta-ala

  • 1191,40 €/kk

    Hoitovastike

  • 1970

    Rakennusvuosi

Esittelyssä sunnuntaina 29.03 klo 12.00-12.40!

Kaksitasoinen rivitaloasunto merinäköalalla Haukilahdessa – remonttikohde upealla sijainnilla!

Tämä vuonna 1970 valmistunut rivitalohuoneisto arvostetulla paikalla Haukilahdessa, meren ja luonnon äärellä. Suuret ikkunat tuovat kauniit maisemat osaksi asumista – näkymät ovat vertaansa vailla, vaikka itse asunto on täysin remonttikuntoinen.

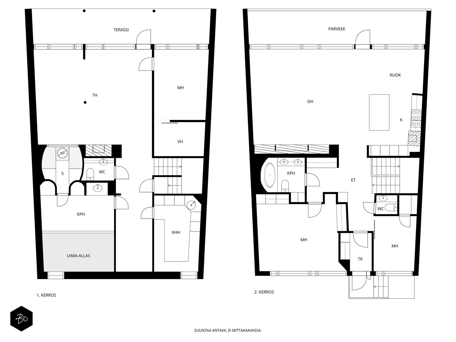
Kaksikerroksinen asunto tarjoaa runsaasti mahdollisuuksia remontoida itselleen täydellinen koti. Yläkerrasta löytyvät hulppeat oleskelutilat, missä avokeittiö, olohuone ja ruokailutila ovat yhtä suurta tilaa. Yläkerrasta löytyy myös kaksi makuuhuonetta, kylpyhuone ja erillinen wc, sekä koko huoneiston levyinen parveke.

Alakerrassa sijaitsee puolestaan uima-allas- ja saunaosasto, kolmas makuuhuone omassa rauhassa, reilusti oleskelutilaa ja säilytystilaa. Alakerrassa on lisäksi kodinhoitotila sekä erillinen wc. Huoneistolle kuuluu noin 20 m2 autotalli, sekä pihapaikka asunnon edessä. Piha aukeaa etelän suuntaan.

Erinomainen tilaisuus uudistaa huoneisto täydellisesti itselle sopivaksi.

Upea sijainti, missä Haukilahden ranta-alue, lenkkipolut, Mellsténin kahvila ja venesatama ovat vain kivenheiton päässä.

Tervetuloa tutustumaan!

Varaa oma esittelyaika // Boka visning:

Sebastian Rostedt
sebastian@bo.fi
+358 400 373 620

Kiinnostaako tämä kohde?

Ota meihin yhteyttä tai jätä viesti

HUONEISTO

Osakkeet
853-1370
Hallintamuoto
Asunto-osakeyhtiö
Huoneluku
5h, k, kph x2, khh, saunaosasto
Kerros
1-2
Kerroksia
2
Asuinpinta-ala
259,0 m²
Muut tilat
0,0 m²
Lisätietoja pinta-alasta
Yhtiöjärjestyksen mukainen. Isännöitsijäntodistuksen mukainen. Toimeksiantajan ilmoittama.
Näkymät
Avarat näkymät merelle
Parveke
Ulostyönnetty
Parvekkeen ilmansuunta
Etelä, kaakko
Liesi
Kaasu, keraaminen, erillisuuni, liesitaso
Keittiön muut varusteet
Liesituuletin, mikroaaltouuni, astianpesukone
Pesutilojen kuvaus, lisätiedot ja varustus
Yläkerrassa kylpyhuone, alakerran sauna/uima-allasosastolla pesuhuone.
WC-tilojen kuvaus
Lukumäärä: 2
Sauna
Asunnossa on sauna
Makuuhuoneen kuvaus, lisätiedot ja varustus
Yläkerrassa kolme makuuhuonetta.
Lukumäärä: 3
Lattiamateriaalit: parketti
Oleskelutilojen kuvaus, lisätiedot ja varustus
Lattiamateriaalit: parketti
Kunto
Tyydyttävä
Takkatiedot
Takka

KIINTEISTÖ- JA YHTIÖTIEDOT

Yhtiön nimi
Asunto Oy Haukitörmä
Tontin omistus
Oma
Tontin koko
3 018,00 m²
Käyttöönottovuosi
1970
Rakennusmateriaali
Tiili, betoni
Kattotyyppi
Tasakatto
Kate
Huopa, Bitumikermi
Lämmitysjärjestelmän kuvaus
Kaukolämpö
Energiatodistus
Kyllä
Lisätietoja energiatodistuksesta
Energiatodistus ei voimassa. Ei lain edellyttämää voimassa olevaa energiatodistusta. uusi tulossa tämän vuoden aikana.
Energialuokka
G2007
Tehdyt korjaukset ja remontit
1993-94 Eteläpuolen yläkerran ikkunat-ja seinärakenteet uusittu
1994 Autotalli rakennettu
1996 Parvekkeiden peruskorjaus sisäpuolelta
1997 Kattokate uusittu
1998 Lämmönvaihdin uusittu
2000 A-huoneiston salaojat uusittu
2006 D-huoneiston parvekkeen vesieristys uusittu
2010 Autotallien ovimoottorit uusittu
2011 Molok-jäteastioiden asennus
2011 Otsalautojen ja sokkeleiden maalaus
2011 Parvekkeiden betonikaiteen ulkopuolinen kunnostus
2011 Pihasuunnitelman teko
2012 A-talon edustan ja sisääntulotien asfaltin uusinta
2012 Liittyminen DNA Welhon verkkoon
2012 Pihan puutarha-alueen peruskunnostus
2013 Vesipostin siirto pois huoneistosta C
2014 Lämmitysjärjestelmän kiertovesipumppu
2014 Lämmön-ja käyttöveden säädin
2016 Piha-aitojen uusinta
2016 Autotallien paneelien maalaus
2017 Rakennuksen kuntoselvitys
2018-2020 Taloyhtiön huolto-ja kunnostustoimenpiteitä
2021 Vesikatteen bitumikermin, kattovalokupujen ja pellitysten peruskorjaus
2021 Autokatoksen vesikourun vaihto
2022 Parvekkeiden kosteustekninen kuntotutkimus
2022 Autotallin G oven moottori uusittu
2022 Parvekkeiden ikkunasaumojen tiivistystyöt (B-J)
2022 Parvekkeiden kosteustekninen kuntotutkimus
2023 B asunnon päätyseinän höyrynsulkukorjaus
2024 Parvekkeiden kunnostustyöt
2024 As. D Ikkunaseinän kunnostus vesivahinkoa edeltävään tasoon.
2024 As. A poravahingonkorjaustyöt (as. a:n yläpuolella olevan poratun viemärin paikkasukitus)
2024 Molok Dominoastiat, monilokerikkoastioiden tilalle
Tiedossa olevat tulevat korjaukset/remontit
2025
- Sähköautonlatauspaikkojen rakentaminen: (ulkopaikat ja talleihin valmiudet). Kiinteistön nykyinen pääkeskus uusitaan (80000)
- Piha-alueen asfaltointi: Sähköautonlatausurakan yhteydessä (10000)
- Katakombin tyhjennys ja öljysäiliön tarkistus: Tyhjennys rakennusjätteistä, öljysäiliön tarkistus ja tarvittavat toimenpiteet.
- Ikkunat: Harmaantuneiden ikkunoiden vaihdot/huollot ja as.B+A huoneiston päätyikkunoiden vaihdot raitisilmaventtiilisiin ikkunoihin (20000)
- Palovaroittimet: Lain edellyttämälle tasolle, siirtymäaikaa vuoden 2025 loppuun (1000).
- Jäte- ja sadevesiviemäreiden videokuvaukset: selvitetään onko viemäreiden uusimistarvetta (6000)
- Lämpöputkien kuntokartoitus: selvitetään onko lämpöjohtoverkostolla uusimistarvetta (4000)

2025-2026
Linjasaneerauksen hankesuunnittelun jatko: Päävesi- ja viemärilinjat + sähköt (10000)

2029
- Linjasaneeraus Päävesi- ja viemärilinjat + sähköt (ei kustannusarviota)
- Pääkeskuksen pääsulakekokoa nostetaan nykyisestä 3x125 A:in sulakekoosta 2x3x100 A:iin. Linjasaneerauksen yhteydessä (6000)
2025-2029 Yleiset- ja ylläpidolliset
Kustannusarviot ovat taloyhtiön korjaustarveselvityksen mukaisia, eivät sitovia ja voivat muuttua.
Lisätietoja autonsäilytyspaikoista
Kukin huoneisto on oikeutettu hallitsemaan yhtiön tontilla sijaitsevaa
huoneistokohtaista ja huoneistokohtaisesti merkittyä autopaikkaa.

Yhtiöjärjestyksen mukaan huoneiston autopaikka: 3, Talli 21 m².
Isännöitsijäntodistuksen mukainen päivämäärä
26.09.2025
Lainat
146 115,54 €
Kiinnitykset
5 692 028,19 €
Isännöitsijä
Isännöitsijäntoimisto H & J Viiala/Espoon Helvi Oy/Sinikka Saisong
Sateenkuja 1, 02100 Espoo
toimisto@helvi.fi / 0400 949 002
Kiinteistönhoito
Huoltoyhtiö
Taloyhtiössä muuta
Kaapeli-tv. Lämmönjakohuone

MUITA TIETOJA

Kaavoitus
Asemakaava
Lisätietoa kaavoituksesta
Lisätiedot Espoon kaupunki, kaupunkiympäristö, p. 09 8162 5000
Vapautuu
Heti
Lisätietoja
Myyjä ei ole asunut huoneistossa eikä sen vuoksi ole tietoinen huoneiston tai tarpeiston kunnosta. Sen vuoksi ostajaa on kehotettu tarkastamaan huoneisto, kauppaan kuuluva tarpeisto sekä laitteet erityisen huolellisesti.

ASUMISKUSTANNUKSET

Hoitovastike
1 191,40 €/kk (4,60 €/m²)
Yhtiövastike yhteensä
1 564,36 €
Rahoitusvastike
372,96 €/kk (1,44 €/m²)
Vesimaksu
25,00 €/hlö/kk
Muut maksut / lisätietoa maksuista
Allasmaksu/kk 12.00 euroa.
Auton lataussähkö/kk 35 euroa.
Altaan täyttömaksu/kerta 120 euroa (huoneiston allas ei käytössä/tyhtjä)
autopaikkasähkö/vuosi 45 euroa.
Hybridiauton lataussähkö/vuosi 35 euroa.
Postinkantomaksu/vuosi 155 euroa.

HINTA

Myyntihinta
758 898,59 € (2 930,11 €/m²)
Velaton hinta
795 000,00 € (3 069,50 €/m²)
Velkaosuus
36 101,41 € (139,39 €/m²)
Mellstenintie 15 - kuva 1 Mellstenintie 15 - kuva 2 Mellstenintie 15 - kuva 3 Mellstenintie 15 - kuva 4 Mellstenintie 15 - kuva 5 Mellstenintie 15 - kuva 6 Mellstenintie 15 - kuva 7 Mellstenintie 15 - kuva 8 Mellstenintie 15 - kuva 9 Mellstenintie 15 - kuva 10 Mellstenintie 15 - kuva 11 Mellstenintie 15 - kuva 12 Mellstenintie 15 - kuva 13 Mellstenintie 15 - kuva 14 Mellstenintie 15 - kuva 15 Mellstenintie 15 - kuva 16 Mellstenintie 15 - kuva 17 Mellstenintie 15 - kuva 18 Mellstenintie 15 - kuva 19 Mellstenintie 15 - kuva 20 Mellstenintie 15 - kuva 21 Mellstenintie 15 - kuva 22 Mellstenintie 15 - kuva 23 Mellstenintie 15 - kuva 24 Mellstenintie 15 - kuva 25 Mellstenintie 15 - kuva 26 Mellstenintie 15 - kuva 27 Mellstenintie 15 - kuva 28 Mellstenintie 15 - kuva 29 Mellstenintie 15 - kuva 30 Mellstenintie 15 - kuva 31 Mellstenintie 15 - kuva 32 Mellstenintie 15 - kuva 33 Mellstenintie 15 - kuva 34 Mellstenintie 15 - kuva 35 Mellstenintie 15 - kuva 36 Mellstenintie 15 - kuva 37 Mellstenintie 15 - kuva 38 Mellstenintie 15 - kuva 39 Mellstenintie 15 - kuva 40 Mellstenintie 15 - kuva 41 Mellstenintie 15 - kuva 42 Mellstenintie 15 - kuva 43 Mellstenintie 15 - kuva 44 Mellstenintie 15 - kuva 45 Mellstenintie 15 - kuva 46 Mellstenintie 15 - kuva 47