Mammankuja 185

Jumesniemi, Hämeenkyrö | Mökki Tai Huvila | 3mh, oh, k, rt, pkh, psh, s, khh, erill. wc, kph, olesk., viinikellari, autotalli + rantasauna/tupa, savusauna

  • 1 370 000 €

    Velaton hinta

  • 178,50 m2

    Asuinpinta-ala

  • 435,10 m2

    Kokonaispinta-ala

  • 2015

    Rakennusvuosi

Luksusta järven rannalla - uniikki Kontion hirsihuvila Mahnalanselällä - soveltuu myös vakituiseksi asunnoksi.

Upea kokonaisuus omalla rannalla, vain 30 min Tampereelta!
Tässä kodissa yhdistyvät luonnon rauha, huippuluokan varustelu ja arjen ylellisyys - tämä on paikka, jossa unelmat muuttuvat todeksi.

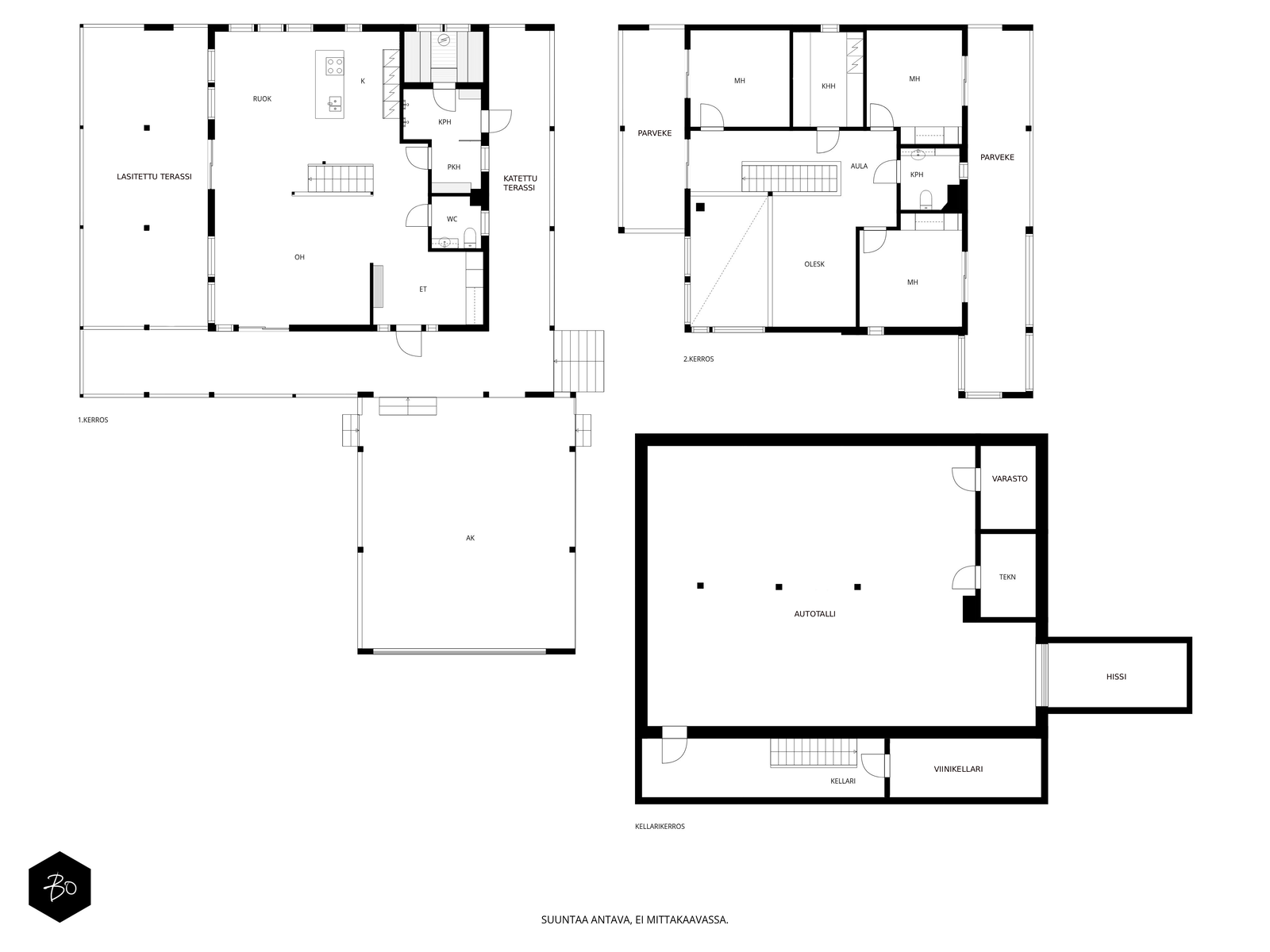
2015 rakennettu Kontion hirsitalo sijaitsee Mahnalanselän rantamaisemissa Jumesniemessä. Asuintilaa on hulppeat 178,5 m², ja lisäksi yli 100 m² autotalli- ja harrastetilaa, johon autot kulkevat oman autohissin avulla. Tämä tila muuntautuu helposti kuntosaliksi, leffahuoneeksi tai työ-/harrastetilaksi - vain mielikuvitus on rajana.

Upeat järvinäkymät avautuvat suoraan olohuoneesta ja lähes kaikista huoneista on kulku ulos. Terassit ja parvekkeet kiertävät miltei koko talon - lasitettu järvinäkymin ja poreamme viimeistelevät elämyksen.

Tontilta löytyvät myös:
- Saneerattu rantasauna (2014), jossa keittiö, makuutilat ja tunnelmatakka.
- Perinteinen savusauna.
- Oma laituri ja hiekkaranta.

Huippuluokan tekniikkaa ja laatua:
- Kaksi maalämpökaivoa (Lämpöässä 17 kW).
- Maaviileä viilennys kesähelteille
- Vesikiertoinen lattialämmitys kaikissa tiloissa.
- 240 mm leveä tammilankkulattia - kestävää kauneutta.
- Liukuovelliset uloskäynnit kaikista makuuhuoneista.

Tarkkaan harkittu ja suunniteltu kokonaisuus tarjoaa poikkeuksellista asumismukavuutta, esteettömyyttä ja mahdollisuuksia. Jumesniemen kylä on elävä ja lämmin yhteisö, jossa on tapahtumia ympäri vuoden.

Tämä ei ole vain koti - tämä on elämäntapa.

Varaa oma esittelyaikasi ja tule kokemaan, miltä täydellisyys tuntuu.

Kohteessa järjestetään vain yksityisesittelyitä!

KOHDETTA VÄLITTÄÄ
Mikko Lamu
0400 357 100 | mikko.lamu@bo.fi

Kiinnostaako tämä kohde?

Ota meihin yhteyttä tai jätä viesti

HUONEISTO

Hallintamuoto
Oma
Huoneluku
3mh, oh, k, rt, pkh, psh, s, khh, erill. wc, kph, olesk., viinikellari, autotalli + rantasauna/tupa, savusauna
Kerros
1-3
Kerroksia
3
Asuinpinta-ala
178,5 m²
Muut tilat
256,6 m²
Lisätietoja pinta-alasta
- Lämmin huoneistoala
kellari 134m²,
1. krs. 93,5m²,
2. krs. 85m²
yht. 313m²

- Kerrosala yht. 352m²

- Autokatos 50,3m²
- Pyöräkatos 12,3m²

- Rantasaunan kerrosala n. 50m²
- Vaja/ulkovarasto kerrosala n. 10m²

Rakennusoikeutta käytetty 412m²
Keittiön kuvaus, lisätiedot ja varustus
Lattia: lankku, Novafloor Trinity tammi 250mm, harjattu ja öljyvahattu.
Seinät: hirsi
Työtaso: massiivipuu

Tanskalainen korkeatasoinen KVIK-keittiö. Malli: Mano, vetimettömät hidastuksella.

Kalusteisiin integroidut kodinkoneet: jääkaappi, pakastekaappi, erillisuuni, induktioliesi, liesituuletin, mikroaaltouuni-uuni -yhdistelmä, kahvikone, astianpesukone.

Kiinteät valaisimet, himmennettävät.
Pesutilojen kuvaus, lisätiedot ja varustus
Lattia: laatta, Aitokivi Lappato Ferrari 60x60
Seinät: laatta, Aitokivi Lappato Ferrari 60x60

Sadesuiku + käsisuihku 2 kpl, seinäkaivot 2 kpl, lasiseinä.

Vesikiertoinen lattialämmitys.
WC-tilojen kuvaus
1. KRS

Lattia: laatta, Laattapisteen marokkolaistyylinen.
Seinät: hirsi, hirsipaneeli, laatta; Aitokivi Snow White matta.

Seinä WC-istuin, pesuallas, hana, allaskaapisto, peili, kiinteät valaisimet.

2. KRS

Lattia: laatta, Aitokivi Carrara White 60x60
Seinät: laatta, Aitokivi Carrara White 60x60

Seinä WC-istuin, bidee, pesuallas 2 kpl, hana 2 kpl, allaskaapisto, peili, kiinteät valaisimet.

Vesikiertoinen lattialämmitys.
Lukumäärä: 2
Kodinhoitohuone
Lattia: laatta, Aitokivi Lappato Ferrari 60x60
Seinät: hirsi, tapetti

Pesukone ja kuivausrumpu liitännät, asennettu käyttömukavuus korkeudelle, pesuallas, hana, säilytyskaapisto, liukuovikaapisto, pöytätaso.
Sauna
Asunnossa on sauna
Saunan kuvaus, lisätiedot ja varustus
Lattia: laatta, Aitokivi Lappato Ferrari
Seinät: hirsipaneeli
Lauteet: Radiata mänty

Vesikiertoinen lattialämmitys.
Makuuhuoneen kuvaus, lisätiedot ja varustus
Kaikki makuuhuoneet sijoittuvat 2. kerrokseen missä on myös kodinhoitohuone. Näkymät huoneista on joko järvelle tai pellolle.

Kaikista makuuhuoneissa liukuovi terassille.

Lattia: parketti, Novafloor Trinity tammi 190mm
Seinät: hirsi
Lukumäärä: 3
Oleskelutilojen kuvaus, lisätiedot ja varustus
Olohuoneen isoista ikkunoista avautuu esteettömät näkymät takapihalle ja Mahnalanselälle. Olohuone on suurelta osin korkeaa tilaa aina 2. krs:n kattoon saakka.

Yläkerrassa on erillinen oleskelutila esim. tv:n katselua varten tai rauhalliseksi harrastetilaksi.

Lattia: lankku, Novafloor Trinity tammi 250mm
Seinät: hirsi
Lattiamateriaali
Lankku, Novafloor Trinity 250mm harjattu ja öljyvahattu.
Parketti, Novafloor Trinity 190 harjattu ja öljyvahattu.
Seinämateriaali
Hirsi, käsitelty Tikkurilan valkokuultolakalla, erikoisvahvaseos sivelty kolme kertaa.
Harmaat osat Vinha RR23.
Kattomateriaalit
STS 145mm valkoinen paneeli
Muut huonetilat
Eteinen: Liukuovikaapisto
Parveke: katettu parveke etu- ja takapihalla
Terassi: katettu terassi etu- ja takapihalla
Lasitettu terassi, siirrettävät lasiseinät.
Viinikellari

Autotalli 107,7 m² sis. autohissin. Lattia: laatta. Seinät: maalattu
Autokatos 50,3 m²
Pyöräkatos 12,3 m²

Rantasauna
- keittiö, oleskelutila, makuuhuone, avotakka
- pesuhuone, sauna, AITO puukiuas, lauteet ja seinät: haapa
- rantasauna saneerattu kokonaisuudessaan vuonna 2014

Savusauna

Varasto/vaja
Muuta kauppaan kuuluvaa
Maaviileä, sisäyksikkö 2. krs.
Poreamme Catalina Spas, malli Paris.

Laituri, lipputanko, jätesäililö, hälytysjärjestelmä,
Muutostyöt huoneistossa
2025 Julkisivun huoltomaalaus
2014 Rantasaunan saneeraus
Kunto
Hyvä
Kauppaan ei kuulu
Irtaimisto

KIINTEISTÖ- JA YHTIÖTIEDOT

Asuinpinta-ala
178,5 m² (435,1 m²)
Kiinteistötunnus
108-407-3-31
Tyyppi
Vapaa-ajan asunto
Kortteli/Kiinteistön nimi
KESÄRANTA
Tontin omistus
Oma
Tontin koko
2 100,00 m²
Tontin kuvaus
Loiva rinnetontti, mistä aukeaa esteettömät näkymät Mahnalanselälle. Etupihalla on tasainen piha-alue, missä on piha- ja autokatospaikat, sekä autohissi talliin. Piha valaistu.
Tie perille
Panttikirjat
472 740,00 €
Käyttöönottovuosi
2015
Rakennusmateriaali
Hirsi, betoni
Rakennusmateriaalin kuvaus
Asuintilat 1. ja 2. kerros Kontion hirsitalo (lamelli hirsi 205x275)

Kellari (autotalli) erikoissuunnitelman mukainen, Lakka-kivi (lämpöharkko 400)
Muut rakennukset
Saunarakennus, Autotalli, Autokatos, Vaja
Saunarakennus saneerattu kokonaisuudessaan vuonna 2014
Kattotyyppi
Pulpetti
Kate
Huopa
Katon kunto
Hyvä
Lämmitysjärjestelmä
Vesikiertoinen lattialämmitys. Hyvä. Maalämpöpumppu Lämpöässä 17kW, kaksi erillistä maalämpökaivoa.
Lämmitysjärjestelmän kuvaus
Maalämpö
Ilmanvaihtojärjestelmä
Maalämpöpiirin kytketty maaviileä kattosisäyksiköllä
Energiatodistus
Kyllä
Energialuokka
C2013
Vesijohto
Vesiosuuskunta
Viemäri
Oma, pienpuhdistamo
Rakennusoikeus
420,0 m²

MUITA TIETOJA

Kaavoitus
Ranta-asemakaava
Vesistön nimi
Mahnalanselkä
Vapautuu
Sopimuksen mukaan

ASUMISKUSTANNUKSET

Muut maksut / lisätietoa maksuista
Käyttö- ja lämmityssähkönkulutus n. 25 000 kWh/vuosi

Vesi kulutuksen mukaan
Kiinteistövero 1200 €/vuosi
Jätemaksu 26 €/kk
Jätesäiliön tyhjennys 210 €/krt (2-3 krt /vuosi)

HINTA

Myyntihinta
1 370 000,00 € (7 675,07 €/m²)
Velaton hinta
1 370 000,00 € (7 675,07 €/m²)
Mammankuja 185 - kuva 1 Mammankuja 185 - kuva 2 Mammankuja 185 - kuva 3 Mammankuja 185 - kuva 4 Mammankuja 185 - kuva 5 Mammankuja 185 - kuva 6 Mammankuja 185 - kuva 7 Mammankuja 185 - kuva 8 Mammankuja 185 - kuva 9 Mammankuja 185 - kuva 10 Mammankuja 185 - kuva 11 Mammankuja 185 - kuva 12 Mammankuja 185 - kuva 13 Mammankuja 185 - kuva 14 Mammankuja 185 - kuva 15 Mammankuja 185 - kuva 16 Mammankuja 185 - kuva 17 Mammankuja 185 - kuva 18 Mammankuja 185 - kuva 19 Mammankuja 185 - kuva 20 Mammankuja 185 - kuva 21 Mammankuja 185 - kuva 22 Mammankuja 185 - kuva 23 Mammankuja 185 - kuva 24 Mammankuja 185 - kuva 25 Mammankuja 185 - kuva 26 Mammankuja 185 - kuva 27 Mammankuja 185 - kuva 28 Mammankuja 185 - kuva 29 Mammankuja 185 - kuva 30 Mammankuja 185 - kuva 31 Mammankuja 185 - kuva 32 Mammankuja 185 - kuva 33 Mammankuja 185 - kuva 34 Mammankuja 185 - kuva 35 Mammankuja 185 - kuva 36 Mammankuja 185 - kuva 37 Mammankuja 185 - kuva 38 Mammankuja 185 - kuva 39 Mammankuja 185 - kuva 40 Mammankuja 185 - kuva 41 Mammankuja 185 - kuva 42 Mammankuja 185 - kuva 43 Mammankuja 185 - kuva 44 Mammankuja 185 - kuva 45 Mammankuja 185 - kuva 46 Mammankuja 185 - kuva 47 Mammankuja 185 - kuva 48 Mammankuja 185 - kuva 49 Mammankuja 185 - kuva 50 Mammankuja 185 - kuva 51 Mammankuja 185 - kuva 52 Mammankuja 185 - kuva 53 Mammankuja 185 - kuva 54 Mammankuja 185 - kuva 55 Mammankuja 185 - kuva 56 Mammankuja 185 - kuva 57 Mammankuja 185 - kuva 58 Mammankuja 185 - kuva 59 Mammankuja 185 - kuva 60 Mammankuja 185 - kuva 61 Mammankuja 185 - kuva 62 Mammankuja 185 - kuva 63 Mammankuja 185 - kuva 64 Mammankuja 185 - kuva 65 Mammankuja 185 - kuva 66 Mammankuja 185 - kuva 67 Mammankuja 185 - kuva 68 Mammankuja 185 - kuva 69 Mammankuja 185 - kuva 70 Mammankuja 185 - kuva 71 Mammankuja 185 - kuva 72