Laurinmäenkuja 3

Lassila, Helsinki | Kerrostalo | 2h+kt+vh+lasit.parv (yj:2h+kt+vh)

  • 313 800 €

    Velaton hinta

  • 47,5 m2

    Asuinpinta-ala

  • 235,13 €/kk

    Hoitovastike

  • 2025

    Rakennusvuosi

Muuttovalmiit kodit, omalla tontilla – tervetuloa tutustumaan!

Vuonna 2025 Lassilaan valmistunut Asunto Oy Helsingin Jupiter sijaitsee omalla tontilla ja tarjoaa asukkailleen erinomaiset puitteet laadukkaaseen asumiseen. Yhtiöön kuuluu kaksi taloa, yhteensä 69 hyvin varusteltua huoneistoa. Huoneistokokoja on tarjolla monenlaisiin elämäntilanteisiin, yksiöistä neljän huoneen perheasuntoihin. Asuntojen materiaalit sekä värimaailma ovat modernit, ja vaihtoehtoina on arkkitehdin suunnittelemat kolme upeaa teemaa, josta voit valita itsellesi parhaan. Huoneistojen varusteisiin kuuluvat parkettilattiat, sälekaihtimet kaikissa ikkunoissa, astianpesukone sekä induktioliesi. Lähes jokaisella huoneistolla on lasitettu parveke tai terassi.

Yhteiset tilat ovat monipuoliset ja asukkaiden käytössä on sauna- ja kerhotilat, ulkoväline-, lastenvaunu- ja irtaimistovarastot sekä pesulat ja kuivaushuoneet. Piha-alueella on lapsille turvallinen leikkipaikka, sekä kaikenikäisille soveltuva kuntoilualue. Pihakannen alla on autohalli, josta on suorat kulkuyhteydet rakennuksiin. Autohallipaikat myydään omilla osakkeillaan, ja osa paikoista on varustettu sähköauton latausvalmiudella.

Lassila alueena tarjoaa mainiot puitteet laadukkaaseen asumiseen. Liikenneyhteydet ovat erinomaiset, ja kauppakeskus Kaaren kattavat ja monipuoliset palvelut ovat vain lyhyen kävelymatkan päässä. Lähialueella on erinomaiset mahdollisuudet ulkoiluun ja harrastamiseen, mikä tekee paikasta ihanteellisen valinnan aktiiviselle asujalle.

Tartu tilaisuuteen ja tule tutustumaan näihin tyylikkäisiin ja toimiviin asuntoihin paikan päälle – esittelemme asuntoja myös yksityisesti sinun aikataulusi mukaan!

Kiinnostaako tämä kohde?

Ota meihin yhteyttä tai jätä viesti

HUONEISTO

Osakkeet
7486-7623
Hallintamuoto
Asunto-osakeyhtiö
Huoneluku
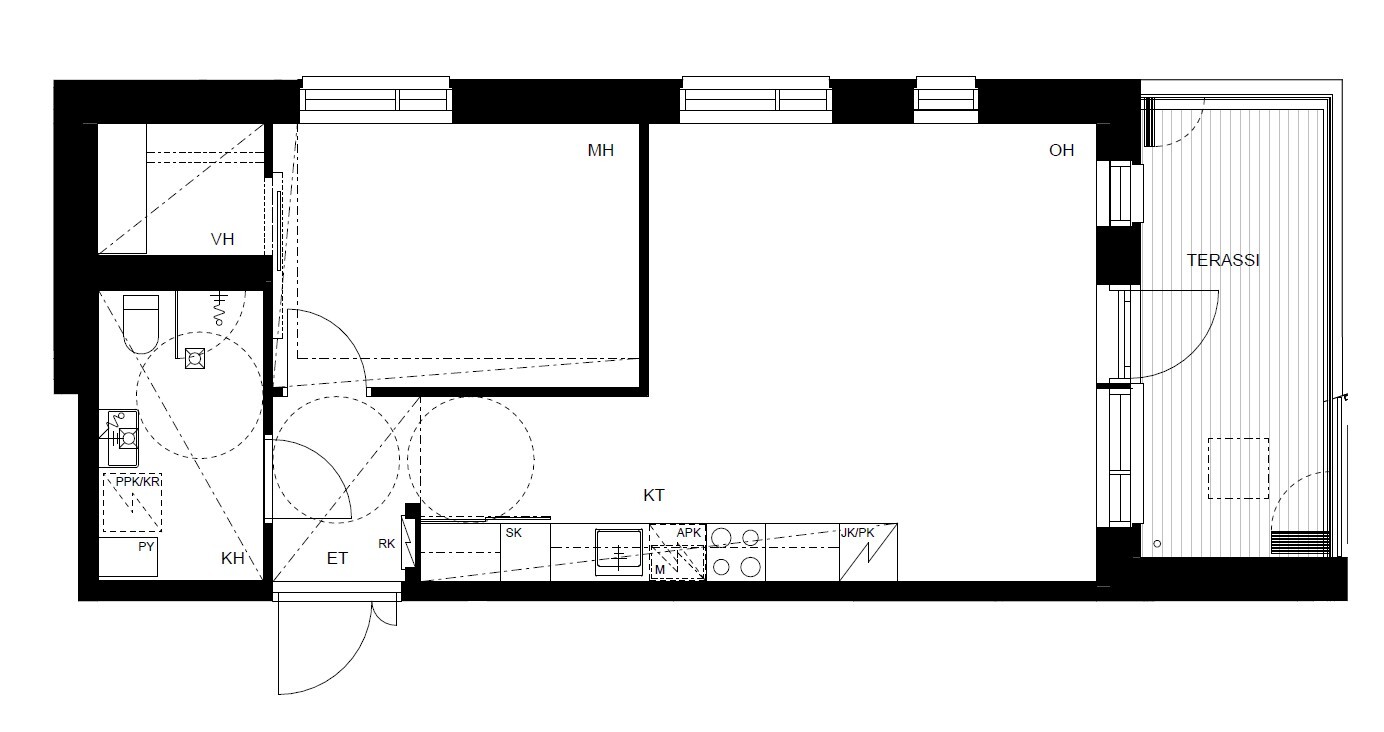
2h+kt+vh+lasit.parv (yj:2h+kt+vh)
Kerros
2
Kerroksia
5
Asuinpinta-ala
47,5 m²
Muut tilat
0,0 m²
Lisätietoja pinta-alasta
Pinta-alaa ei ole tarkistusmitattu Yhtiöjärjestyksen mukainen. Isännöitsijäntodistuksen mukainen.
Parveke
Lasitettu
Parvekkeen ilmansuunta
Etelä
Liesi
Integroitu, induktio, erillisuuni
Keittiön muut varusteet
Liesituuletin, astianpesukone, kiinteät valaisimet
Keittiön työtasojen materiaali
Laminaatti
Keittiön lattiamateriaali
Parketti
Keittiön seinien materiaali
Maalattu
Kylpyhuoneen varustus
Suihkuseinä, pesukoneliitäntä, lattialämmitys, wc-istuin, suihku, peilikaappi, kiinteät valaisimet
Kylpyhuoneen lattiamateriaali
Laatta
Sauna
Taloyhtiössä sauna
Saunan lattiamateriaali
Laatta
Saunan seinämateriaali
Puu
Makuuhuoneen kuvaus, lisätiedot ja varustus
Lukumäärä: 1
Lattiamateriaalit: parketti
Seinämateriaalit: maalattu
Oleskelutilojen kuvaus, lisätiedot ja varustus
Lattiamateriaalit: parketti
Seinämateriaalit: maalattu
Kunto
Uusi

KIINTEISTÖ- JA YHTIÖTIEDOT

Yhtiön nimi
Asunto Oy Helsingin Jupiter
Tontin omistus
Oma
Tontin koko
3 605,00 m²
Rakennusvuosi (aloitettu)
2025
Käyttöönottovuosi
2025
Rakennusmateriaali
Betoni
Kattotyyppi
Tasakatto
Kate
Huopa/ Bitumikate
Lämmitysjärjestelmän kuvaus
Kaukolämpö
Energiatodistus
Kyllä
Lisätietoja energiatodistuksesta
Voimassa 05.03.2035
Energialuokka
A2018
Hallipaikat
28
Pihapaikkoja
4
Lisätietoja autonsäilytyspaikoista
Autopaikat myydään erillisinä osakkeina. Autopaikat sijaitsevat Koy Planeetan Pysäköinnin hallitsemassa autohallissa, josta on kulku hissillä rakennukseen.
Osalle autopaikoista on asennettu sähköautojen latauspisteet. Latauspiste on Walle66 eTolppa, 2 x Type 2 latauspistorasia + suko.
Latauspisteillä varustettujen autopaikkojen osalta sähkönkulutus laskutetaan erikseen.
Isännöitsijäntodistuksen mukainen päivämäärä
31.10.2025
Lainat
12 536 000,00 €
Kiinnitykset
16 650 000,00 €
Isännöitsijä
Kiinteistö-Tahkola Helsinki Oy
Turvalaaksonkaari 2, 3. krs, 01740 Vantaa
Isännöitsijä Jussi Uusiniemi
jussi.uusiniemi@kiinteistotahkola.fi
+358207488352
Kiinteistönhoito
Huoltoyhtiö
Hissi
Taloyhtiössä on hissi
Taloyhtiössä muuta
Parveke, sauna, talopesula, kuivaushuone, huoneistokohtaiset varastot, lastenvaunuvarasto.

MUITA TIETOJA

Kaavoitus
Asemakaava
Lisätietoa kaavoituksesta
Helsingin kaupunki; kartta.hel.fi -> aineistot -> kaavoitus ja liikennesuunnittelu
Vapautuu
Heti
Lisätietoja
Koko yhtiötä koskeva lisätieto:
Yhtiötä sitoo kiinteistön 91-29-186-6 muiden omistajien kanssa allekirjoitettu hallinnanjakosopimus ja siinä sovitut oikeudet ja velvollisuudet. Yhtiön hallinnassa on yksin tai yhdessä kiinteistön 91-29-186-6 muiden omistajien kanssa hallinnanjakosopimuksessa ilmenevät yhteiskäyttötilat.
Taloyhtiö on allekirjoittanut hallinnanjakosopimuksen Asunto Oy Helsingin Saturnuksen ja Koy Planeetan Pysäköinnin välillä.
Yhtiötä sitoo 24.11.2023 päivätty rasitesopimus.
Tupakointi ja sähkötupakointi on kielletty kaikissa osakashallinnassa olevissa tiloissa sekä yhtiön yhteistiloissa, rakennuksen sisäänkäyntien ja ilmanottoaukkojen läheisyydessä.

ASUMISKUSTANNUKSET

Hoitovastike
235,13 €/kk (4,95 €/m²)
Yhtiövastike yhteensä
812,65 €
Rahoitusvastike
571,52 €/kk (12,03 €/m²)
Muu vastike
6,00 €
Vesimaksu
27,00 €/hlö/kk
Muut maksut / lisätietoa maksuista
Kulutetusta vedestä suoritetaan korvaus huoneistokohtaisen mittauksen perusteella, vedenkulutuksesta peritään kuitenkin ennakkomaksua, jonka perusteena on huoneistoissa asuvien henkilöiden lukumäärä Käyttösähkö kulutuksen mukaan.

Kotivakuutus omien sopimusehtojen mukaisesti.

Varainsiirtovero 1,5 % velattomasta myyntihinnasta.

Myyjällä on kaupan kohteeseen kohdistuva sähköinen omistajamerkintä huoneistotietojärjestelmässä. Ostajan tulee hakea omistusoikeuden rekisteröintiä Maanmittauslaitokselta. Ostaja vastaa tällöin omistusoikeuden rekisteröintikustannuksista. Ostajan pankin ostajalta mahdollisesti veloittamista kaupantekoon, omistusoikeuden rekisteröintiin tai panttausmerkinnän hakemiseen liittyvistä kustannuksista ostaja saa tiedon pankiltaan.
Sauna
25,00 e / kerta

HINTA

Myyntihinta
125 800,00 € (2 648,42 €/m²)
Velaton hinta
313 800,00 € (6 606,32 €/m²)
Velkaosuus
188 000,00 € (3 957,89 €/m²)
Laurinmäenkuja 3 - kuva 1 Laurinmäenkuja 3 - kuva 2 Laurinmäenkuja 3 - kuva 3 Laurinmäenkuja 3 - kuva 4 Laurinmäenkuja 3 - kuva 5 Laurinmäenkuja 3 - kuva 6 Laurinmäenkuja 3 - kuva 7 Laurinmäenkuja 3 - kuva 8 Laurinmäenkuja 3 - kuva 9 Laurinmäenkuja 3 - kuva 10 Laurinmäenkuja 3 - kuva 11 Laurinmäenkuja 3 - kuva 12 Laurinmäenkuja 3 - kuva 13 Laurinmäenkuja 3 - kuva 14 Laurinmäenkuja 3 - kuva 15 Laurinmäenkuja 3 - kuva 16 Laurinmäenkuja 3 - kuva 17 Laurinmäenkuja 3 - kuva 18 Laurinmäenkuja 3 - kuva 19 Laurinmäenkuja 3 - kuva 20 Laurinmäenkuja 3 - kuva 21 Laurinmäenkuja 3 - kuva 22