Honkamäentie 1

Leppäkaarre, Siilinjärvi | Rivitalo | 3h,k,s

  • 89 500 €

    Velaton hinta

  • 71,0 m2

    Asuinpinta-ala

  • 1991

    Rakennusvuosi

Niin kaunis koti!

Tähän harmoniseen rivitalokotiin on helppo ihastua; kaikki sisustuspinnat on remontoitu vuosien varrella kauttaaltaan ja seesteinen kokonaisuus sopii moneen sisustusmakuun. Harmaat laminaattilattiat ja vaaleat seinäpinnat luovat keskenään kauniin pohjan juuri sinun unelmakodillesi.

Takapihalla on juuri sopivan kokoinen terassi, jotta siihen mahtuu vaivatta ruokaryhmän lisäksi vaikkapa löhötuolit auringonpalvojalle ja pieni katos puolestaan antaa anteeksi kesäiset sadekuurot. Piha on kauttaaltaan aidattu, joten lemmikit ja perheen pienimmät voivat leikkiä turvalllisin mielin omalla pihalla. Kesäkalusteet ja puutarhatarvikkeet saa kätevästi omaan ulkovarastoon talvisäilöön.

Taloyhtiöllä on oma tontti ja kaukolämpö, joten täällä on tiedossa huoletonta asumista miellyttävässä ympäristössä.

Leppäkaarteen asuinalue tarjoaa vehreää ja leppoisaa asumista hieman keskustan hälinän ulkopuolella. Lähellä sijaitsevat koulu, päiväkoti sekä huippuhyvät ulkoilumaastot. Koulumatka on lyhyt ja turvallinen, kun tienylityksiä ei juurikaan ole. Siilinlahden uimaranta myös muutaman sadan metrin päässä. Kuopioon ajelee rauhallisestikin 20 minuutissa.

Tätä kotia esittelemme vain yksityisnäytöin, soita niin sovitaan teille sopiva esittelyaika.

THIS IS WHERE THE STORY BEGINS.

Roope Puurunen
roope@bo.fi
050 554 4542
Kiinteistönvälittäjä, LKV, LVV, partner

Kiinnostaako tämä kohde?

Ota meihin yhteyttä tai jätä viesti

HUONEISTO

Osakkeet
12025-13622
Hallintamuoto
Asunto-osakeyhtiö
Huoneluku
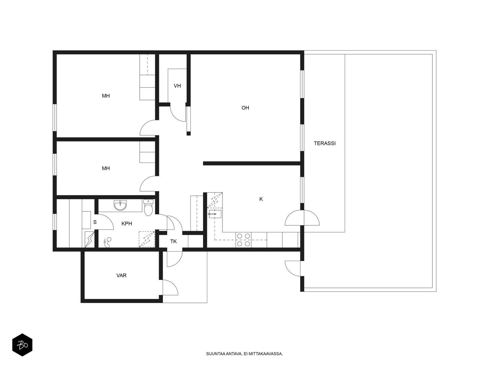
3h,k,s
Kerros
1
Kerroksia
1
Asuinpinta-ala
71,0 m²
Muut tilat
0,0 m²
Lisätietoja pinta-alasta
Yhtiöjärjestyksen mukainen.
Liesi
Keraaminen
Keittiön muut varusteet
Liesituuletin, astianpesukone, kiinteät valaisimet
Keittiön työtasojen materiaali
Laminaatti
Keittiön lattiamateriaali
Vinyyli
Keittiön seinien materiaali
Maalattu
Kylpyhuoneen varustus
Pesukoneliitäntä, wc-istuin, suihku, peilikaappi, kiinteät valaisimet
Kylpyhuoneen lattiamateriaali
Muovi
Kylpyhuoneen seinämateriaali
Kaakeli
Sauna
Asunnossa on sauna
Saunan lattiamateriaali
Muovi
Saunan seinämateriaali
Puu
Makuuhuoneen kuvaus, lisätiedot ja varustus
Lukumäärä: 2
Lattiamateriaalit: laminaatti
Seinämateriaalit: maalattu, tapetti
Oleskelutilojen kuvaus, lisätiedot ja varustus
Lattiamateriaalit: laminaatti
Seinämateriaalit: maalattu, tapetti
Muut säilytystilat
Ulkovarasto
Muutostyöt huoneistossa
Kylpyhuone remontoitu 2007, keittiö remontoitu 2012, lattiapinnat uusittu 2014, maalausta ja siistimistä suoritettu 2013 - 2022.
Kunto
Hyvä

KIINTEISTÖ- JA YHTIÖTIEDOT

Yhtiön nimi
Asunto Oy Satosiili
Tontin omistus
Oma
Tontin koko
2 700,00 m²
Pihan kuvaus
Aidattu piha lounaaseen. Osakas huolehtii piha-aidan kunnosta.
Käyttöönottovuosi
1991
Rakennusmateriaali
Puu, tiili
Kattotyyppi
Harjakatto
Kate
Tiilikate
Lämmitysjärjestelmän kuvaus
Kaukolämpö
Energiatodistus
Kyllä
Energialuokka
D2018
Tehdyt korjaukset ja remontit
2010 Patteritermostaattien tarkistus ja uusiminen sekä pattereiden huuhtelu
2010 Lämmönsiirrinlaitteiston uusiminen
2013 Ulko- ja terassiovien uusiminen
2014 Käyttövesiputkiston uusiminen
2014 Ilmastointikanavien puhdistus ja ilmamäärä säädöt
2016 Kulkuväylien levennys ja väyläreunusten oikominen sekä uusi murskepinta
2017 Tonttipuiden kaato ja alueen maisemointi
2018 Kattosiltojen asentaminen
2019 Leikkialueen kunnostaminen, uusi keinu ja hiekkalaatikko
3/2025 IV-kanavat on nuohottu
10/2025 Yläpohjan lisäeristysurakka tehty
2/2025 Palovaroittimet asennettu yhtiön toimesta
Tiedossa olevat tulevat korjaukset/remontit
Kunnossapitotarveselvitys 2025-2029:

Yläpohjarakenteen ja vesikaton kunnon kartoitus 2025
Patteritermostaattien tarkistus ja tarvittaessa uusiminen, sekä patteriverkoston huuhtelu 2025
Vesikaton uusiminen 2026
Ikkunoiden uusimisen suunnittelu 2027-2028
Pihapaikkoja
9
Lainat
0,00 €
Kiinnitykset
75 000,00 €
Isännöitsijä
Retta, Teemu Jääskeläinen
Kiinteistönhoito
Huoltoyhtiö
Taloyhtiössä muuta
Kaapeli-tv, huoneistokohtaiset varastot.

MUITA TIETOJA

Kaavoitus
Asemakaava
Vapautuu
Sopimuksen mukaan

ASUMISKUSTANNUKSET

Yhtiövastike yhteensä
335,58 €
Muut maksut / lisätietoa maksuista
Vesimaksuennakko 20 €/hlö/kk.

Taloyhtiön osakeluettelo on ennen kaupantekoa siirretty huoneistotietojärjestelmään, ostajan tulee hakea omistusoikeuden rekisteröintiä Maanmittauslaitokselta. Ostaja vastaa omistusoikeuden rekisteröintikustannuksista, mahdollisista osakekirjan mitätöinnistä aiheutuvista kustannuksista sekä mahdollisesta hakemusmaksun korotuksesta. Ostajan pankin ostajalta mahdollisesti veloittamista kaupantekoon, omistusoikeuden rekisteröintiin tai panttausmerkinnän hakemiseen liittyvistä kustannuksista ostaja saa tiedon pankiltaan.

Sähkö kulutuksen mukaan, oman sähkösopimuksen hinnaston mukaisesti.

Varainsiirtovero 1,5 % velattomasta kauppahinasta.

Sähköisen kaupan kulu (DIAS -maksu) 94 € per osakekirja, josta vastaa ostaja.

Yhtiökokous 20.2.2025 antoi hallitukselle valtuudet 1-3 kuukauden ylimääräisen hoitovastikkeen
keräämiseksi, mikäli yhtiön taloudellinen tilanne sitä vaatii.
Autopaikka
14,00 €/kk

HINTA

Myyntihinta
89 500,00 € (1 260,56 €/m²)
Velaton hinta
89 500,00 € (1 260,56 €/m²)
Honkamäentie 1 - kuva 1 Honkamäentie 1 - kuva 2 Honkamäentie 1 - kuva 3 Honkamäentie 1 - kuva 4 Honkamäentie 1 - kuva 5 Honkamäentie 1 - kuva 6 Honkamäentie 1 - kuva 7 Honkamäentie 1 - kuva 8 Honkamäentie 1 - kuva 9 Honkamäentie 1 - kuva 10 Honkamäentie 1 - kuva 11 Honkamäentie 1 - kuva 12 Honkamäentie 1 - kuva 13 Honkamäentie 1 - kuva 14 Honkamäentie 1 - kuva 15 Honkamäentie 1 - kuva 16 Honkamäentie 1 - kuva 17 Honkamäentie 1 - kuva 18 Honkamäentie 1 - kuva 19 Honkamäentie 1 - kuva 20 Honkamäentie 1 - kuva 21 Honkamäentie 1 - kuva 22 Honkamäentie 1 - kuva 23 Honkamäentie 1 - kuva 24 Honkamäentie 1 - kuva 25 Honkamäentie 1 - kuva 26 Honkamäentie 1 - kuva 27