Paasitie 15

Tammisalo, Helsinki | Rivitalo | 6 h, k, s, ask.h., 2 x at

  • 998 000 €

    Velaton hinta

  • 283,5 m2

    Asuinpinta-ala

  • 1362,40 €/kk

    Hoitovastike

  • 1978

    Rakennusvuosi

Ainutlaatuinen merenrantakoti arvostetulla alueella

Tämä vaikuttava koti sijaitsee meren äärellä ja tarjoaa harvinaisen yhdistelmän tilaa, valoa ja merellistä tunnelmaa. Upea arkkitehtuuri, avarat näkymät merelle, suuri lasitettu patio, kaksi venelaituria sekä tenniskenttä tekevät kokonaisuudesta poikkeuksellisen.

Olohuone hurmaa avaruudellaan ja korkeudellaan. Kauniit puupinnat luovat lämpimän tunnelman, ja suuret ikkunat päästävät luonnonvalon tulvimaan sisään, tehden tilasta harmonisen ja kutsuvan.
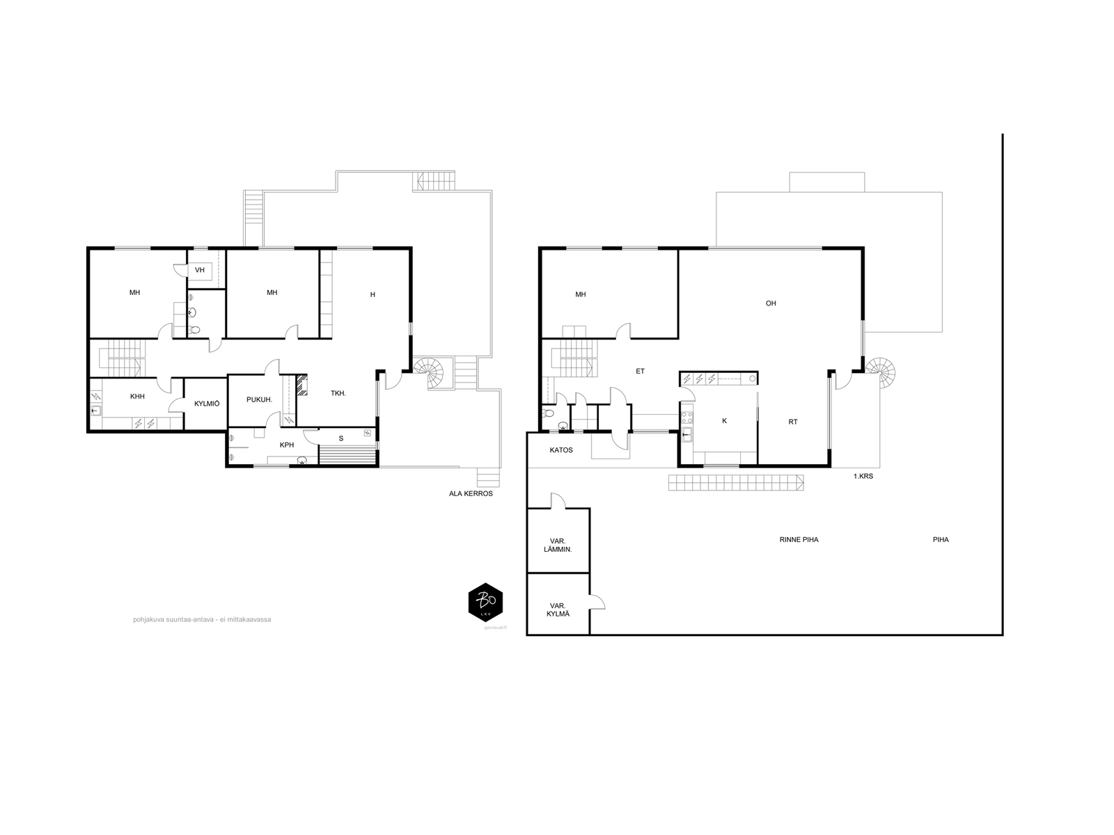
Yläkerrassa sijaitsevat tilava ruokailuhuone, sen yhteydessä lasitettu parveke, erillinen reilun kokoinen keittiö sekä master bedroom. Alakerran toimivasta pohjaratkaisusta löytyvät lisämakuuhuoneet, viihtyisä takkahuone ja saunaosasto. Tarvittaessa koti muuntuu jopa viiden makuuhuoneen kokonaisuudeksi. Tässä asunnossa on juuri uusittu kylpyhuoneet ja sauna.

Vehreä ja suojaisa piha tarjoaa useita viihtyisiä oleskelualueita ja uusitaan nyt kevään aikana. Katetulla terassilla voi nauttia merinäköalasta ja avoimista maisemista, terassilta myös portaat suoraan rantaan. Asuntoon kuuluu lisäksi kaksi lämmintä autotallia erillisessä rakennuksessa.Taloyhtiön kaksi omaa venelaituria tuovat arkeen luksusta – täydellinen valinta veneilyn ystävälle.

Taloyhtiössä on meneillään linjasaneeraus-, salaoja- ja maalämpöremontti, joka valmistunee kevään aikana. Remonttikustannusten jyvitys huoneistoille tapahtuu sen jälkeen.

Tammisalo on idyllinen ja erittäin suosittu asuinalue, joka yhdistää luonnonläheisyyden ja erinomaiset kulkuyhteydet. Ulkoilumahdollisuudet ja palvelut ovat lähellä, ja meren läheisyys tekee arjesta erityisen.

Tämä koti on paikka, jossa asumisen laatu ja arjen nautinto kohtaavat.

Soita ja varaa oma esittelyaikasi.

Myynti/Sales/Försäljning

Virpi Romu
040 0610 018
virpi@bo.fi

Kiinnostaako tämä kohde?

Ota meihin yhteyttä tai jätä viesti

HUONEISTO

Osakkeet
4582-5105
Hallintamuoto
Asunto-osakeyhtiö
Huoneluku
6 h, k, s, ask.h., 2 x at
Kerros
1-2
Kerroksia
2
Asuinpinta-ala
283,5 m²
Muut tilat
0,0 m²
Lisätietoja pinta-alasta
Yhtiöjärjestyksen mukaan huoneistolle kuuluu 2 kpl autotalleja. 2 lämmintä autotallia yht. 33 m².

Yhtiön huoneistojen pinta-aloja ei ole tarkistusmitattu, tämän vuoksi pinta-alat saattavat poiketa olennaisestikin nykystandardien mukaan laskettavasta huoneistoalasta. Huoneiston todellinen asuinpinta-ala voi siten olla yhtiöjärjestyksessä ja esitteessä ilmoitettua suurempi tai pienempi. Yhtiöjärjestyksen mukainen. Isännöitsijäntodistuksen mukainen.
Näkymät
Itään: meri, Etelään: meri ja piha, venelaiturit ja tenniskenttä, Länteen: piha, kirsikka puita, koristeomenapuita.

Iso piha, iso lasitettu patio, yläkerrassa 11 m² lasitettu parveke etelään.
Parveke
Lasitettu
Parvekkeen ilmansuunta
Itä, etelä
Keittiön kuvaus, lisätiedot ja varustus
- Puustellin räätälöity keittiö
- Kirsikka puiset kaapistot
- Jääkaappi ja pakastin teräksiset FESTIVO, uuni AEG, astianpesukone ASKO.
- Pääasiassa kivityötasot
- Ovet keittiöön tammea ja tammiviilua

Kylmiön kompressori asennettu lämpimään ulkovarastoon.
Liesi
Induktio
Keittiön muut varusteet
Liesituuletin, astianpesukone
Keittiön työtasojen materiaali
Puu, kivi, metalli
Keittiön lattiamateriaali
Parketti
Keittiön seinien materiaali
Kaakeli, maalattu
Pesutilojen kuvaus, lisätiedot ja varustus
Saunassa sekä alakerran molemmissa kylpyhuoneissa on säädettävä lattialämmitys.
Täysin uusittu erillinen kylpyhuone ja sauna ja saunan pesuhuone.
Kylpyhuoneen varustus
Suihkuseinä, suihkukaappi, wc-istuin, suihku
WC-tilojen kuvaus
- Yläkerrassa erillinen WC
- Uusittu kauttaaltaan vuonna 2016, puu kattopaneelit uusittu
- Laatta lattia (vaalea sävy) ja kaakeli seinät
- Käsien pesuallas
- Ovi tammiviilua

1 WC yläkerrassa ja 1 WC alakerran kylpyhuoneessa
Lukumäärä: 2
Lattiamateriaalit: laatta
Seinämateriaalit: kaakeli
Kodinhoitohuone
- Kodinhoitohuone uusittu kauttaaltaan vuonna 2016, uudet kaapistot ja työtasot
- Runsaasti pöytätasoa, massiivipuuta
- Ovi kodinhoitohuoneeseen tammiviilua
- Kodinhoitohuoneesta käynti asunnon alkuperäiseen ja tilavaan kylmiöön. Kylmiö on rakennettu alkuperäisten suunnitelmien ja piirustusten mukaisesti, jolloin taloyhtiö vastaa sen huollosta ja toimivuudesta. Taloyhtiö uusinut hiljattain kylmiössä oleva kylmä agregaatti ja lämminvarastossa oleva kompressori on huollettu.
Varustus: pesukone, kuivausrumpu, pesuallas, lattiakaivo, pöytätaso
Lattiamateriaalit: laatta
Seinämateriaalit: kaakeli, maalattu
Sauna
Asunnossa on sauna
Saunan seinämateriaali
Kivi, puu
Makuuhuoneen kuvaus, lisätiedot ja varustus
- Yläkerran 2 makuuhuonetta yhdistetty yhdeksi makuuhuoneeksi
- Alakerrassa 2 tilavaa makuuhuonetta
- Alakerran iso yhdistetty saunan takkahuone ja TV huone voi myös käyttää makuuhuoneena
- Makuuhuoneiden ovet tammiviilua

Lukumäärä 4-5 kpl
Lattiamateriaalit: parketti
Seinämateriaalit: maalattu
Oleskelutilojen kuvaus, lisätiedot ja varustus
- Olohuone 53 m²
- Valoisa olohuone, isot ikkunat itään ja etelään, merimaisema kaikista ikkunoista
- Viisto katto (puupaneli), seinät maalattu, tammiparketti lattia, ikkuna penkit tammea
- Edustus ruokasali yhdistetty olohuoneeseen (16 m²)
- Olohuone ja ruokasali yhteensä 69 m²
Lattiamateriaalit: parketti
Seinämateriaalit: maalattu
Lattiamateriaali
Olohuone, ruokasali, kaikki makuuhuoneet tammiparkettia.
Pesutilat, sauna, saunan pukuhuone, yläkerran aula, tuulikaappi ja vaatehuone ruskean sävyistä laattaa.
Seinämateriaali
Olohuoneen ja alakerran makuuhuoneet seinät maalattu.
Kattomateriaalit
Kaikkien tilojen pääasiallinen kattomateriaali on puupaneli, yläkerran WC valkoista levyä.
Muut huonetilat
- Yläkerrassa tilava aula, joka yhdistyy olohuoneeseen, laatta lattia (ruskea sävy)
- Yläkerrassa vaatekaappi, ovi tammiviilua
- Olohuoneen yhteydessä on lasitettu parveke (noin 11 m²), infrapuna lämmittimet asennettu
- Ulkoa ja alakerran takkahuoneesta pääsee lasitetulle isolle patiolle
Muuta kauppaan kuuluvaa
- Saunan pukuhuoneeseen asennettu kassakaappi
Muutostyöt huoneistossa
- Yläkerran kaksi makuuhuonetta yhdistetty
- Yläkerran WC tilat uusittu
- Alakerran kodinhoitohuone uusittu
- Keittiö uusittu 2000-luvulla
- Sähköpäätaulu sekä siihen liittyvä kaapelointi on uusittu

Linjasaneeraus tämän huoneiston osalta valmis.
Kunto
Hyvä
Takka
Takkavaraus yläkerrassa
Takkatiedot
Takka, hormi olemassa

KIINTEISTÖ- JA YHTIÖTIEDOT

Yhtiön nimi
Asunto Oy Paasitie 15
Tontin omistus
Oma
Tontin koko
20 853,00 m²
Pihan kuvaus
Piha on poikkeuksellisen suuri verrattuna taloyhtiön muihin pihoihin.
Urakoitsija palauttaa pihalaatoitukset, -valaistuksen ja muut -rakenteet alkuperäiseen kuntoon,
ellei hallituksen kanssa erikseen sovita toisin.

Ulkoterassilta (patiolta) kulkee reitti rannalle, jonne on mahdollista asentaa oma laituri (ei-kiinteä).
Käyttöönottovuosi
1978
Rakennusmateriaali
Puu, betoni
Kattotyyppi
Tasakatto
Kate
Huopakate
Lämmitysjärjestelmän kuvaus
Kaukolämpö, maalämpö
Lisätietoja energiatodistuksesta
E2013, viimeinen voimassaolopäivä 18.8.2024
Tehdyt korjaukset ja remontit
2000 Ulkovalaistus uusittu
2002 H-talon vesikatteen korjaus
2003 Vesikatteiden uusiminen (pois lukien H-talo)
2003-2004 Kattoikkunat uusittu
2004 Pumppaamokaivon paineputki kaupungin verkkoon uusittu
2005 Kiinteistön kuntoarvio
2006 Antenniverkon kunnostus digikelpoiseksi
2007 Alemman parkkipaikan reunakaiteet ja pellitykset uusittu
2008 Autolämpötolppien kunnostus (sähköosat uusittu), kahdeksan parvekkeen kaiteiden uusiminen, H-talon ikkunoiden osittainen uusiminen
2009 A-talon ikkunoiden osittainen uusiminen
2010 C- ja E-talojen välisen pohjaviemärin, vesieristeiden ja sadevesikaivojen uusiminen.
E-talon pohjaviemärin uusiminen huoneiston C19 osalta.
2012 C- ja D-talon peltikaton maalaus.
Salaojituksen ja perusmuurin kosteuserityksen korjaus F - ja G - talojen väliltä ja F- talon eteläpäädystä sekä huoneiston F23 kosteusvauriokorjaukset ja B-päädyn sadevesilinjan korjaus.
2013 Jätekatosten korjaukset, rannan kivimuurin korjaus
2014 C - D talojen pohjaviemäreiden huuhtelu ja seurantakuvaus
2015 Pohjaviemäreiden huutelu ja seurantakuvaus (C-G-talojen linja).
Julkisivun ja parvekkeiden kunnostus sekä ikkunoiden ja ovien uusiminen, sekä lukkojen uudelleen sarjoitus.
2016 Pihanparannusurakka l vaihe, ilmastointikanavien puhdistus
2017 Takkojen nuohous ja hormien tarkastus A2, A3, A4, A5, A6, C13, C14, C15, C16, D17, E19, E20, E22, F25, G28, H32 huoneistoissa, sekä hormien tarkastus katolta käsin huoneistojen G27, F26, E21 osalta. Patteriverkoston perussäätö ja lämmönsiirtimen uusimisurakka
2018 Pihaurakan ll-vaihe, D17 ulkovarastojen katto uusittu, lämmin puoli paneloitu sisältä
2020 Tenniskentän uusinta
2019- 2020 LVIS-saneerauksen hankesuunnittelu
2022 LVIS-saneerauksen kuntotutkimukset. C- ja D-talojen peltikatteiden huoltomaalaus.
2023 Laiturin ja ranta-alueen kunnostus
2023-2024 Linjasaneerauksen toteutussuunnittelu
2024 Puuosien (ovien), metalliporttien ja puukaiteiden huoltomaalaukset.
Autotallien ovien alareunan tiivistäminen. Rannan perusparannus. Jyrsijäestojen asennus.
Tiedossa olevat tulevat korjaukset/remontit
Yhtiössä käynnissä Linjasaneeraus, ml. sähkö- ja tietojärjestelmän uusiminen, sadevesi viemäröinti, salaojien ja sokkelien korjaaminen (kuivatus kauttaaltaan) ja maalämmön toteuttaminen.

2025-2026 Salaojat ja sokkeleiden kosteudelta suojaaminen, sadevesien poiston parantaminen. Ulkovalaistuksen uusiminen.

Kaikkia kiinteistön rakenteita ja järjestelmiä täytyy huoltaa, kunnostaa tai uusia määräajoin. Ne tulevat tehtäväksi rakenteiden ja järjestelmien kunnon ja teknisen elinkaaren mukaisesti. Pienemmät korjaustyöt toteutetaan yhtiökokouksen hyväksymän talousarvion puitteissa (vuosikorjausbudjetti), isompien hankkeiden rahoituksesta päätetään aina yhtiökokouksessa.
Kuluvelvoitteet
Ylimääräinen yhtiökokous 14.1.2026 päätti yksimielisesti, että linjasaneeraus- ja salaojaurakan suunnittelua varten otettu 100 000 euron limiitti maksetaan pois urakkaa varten otetulla lainalla.
Lisäksi sama yhtiökokous päätti yksimielisesti, että linjasaneeraus- ja salaojaurakassa ilmenneiden yllättävän suurten lisätyötarpeiden ja niistä seuranneiden suurten lisäkustannusten vuoksi myöntää hallitukselle valtuudet nostaa 800 000 euroa lisää lainaa, jolloin kokonaislaina nousee 7 300 000 euroon.
Hallitukselle myönnettiin samalla valtuudet tarvittaessa kilpailuttaa pankit, valita parhaaksi katsomansa rahoitustarjous ja sopia rahoituksen yksityiskohdat sekä valtuudet luovuttaa lainan vakuudeksi luotonantajan vaatima määrä yhtiön panttikirjoja sekä hakea uusia kiinnityksiä tarvittava määrä.
Maksimilainan lainaosuus on n. 730 €/osake (tälle huoneistolle 524 x 730 e = 382.520,00 euroa).
Lopullinen kustannus selviää remontin valmistuttua.

Ylimääräinen yhtiökokous päätti 30.1.2025 toteuttaa linjasaneeraus ja salaojien uusimisurakan sekä maalämpöön siirtymisen. Sama yhtiökokous päätti valtuuttaa hallituksen nostamaan 6,5 milj. euron lainan ja luovuttamaan lainanantajan vaatima määrä yhtiön panttikirjoja.

Hallituksella valtuudet periä tarvittaessa enintään kahden (2) kuukauden ylimääräinen hoitovastike yhtiön taloudellisen tilanteen niin vaatiessa tai jättämään perimättä taloudellisen tilanteen niin salliessa. Päätös on voimassa tästä yhtiökokouksesta seuraavaan varsinaiseen yhtiökokoukseen asti.
Hallituksella valtuudet korottaa pääoma-/rahoitusvastikkeiden määrää, jos ao. vastikkeilla katettavien lainojen korot muuttuvat niin, että vastikkeen määrää on korotettava kasvaneiden korkokustannusten kattamiseksi. Päätös on voimassa tästä yhtiökokouksesta seuraavaan varsinaiseen yhtiökokoukseen.
Autotallit
16
Autokatokset
19
Lisätietoja autonsäilytyspaikoista
Yhtiöjärjestyksen mukaan huoneistolle kuuluu 2 kpl autotalleja.
2 lämmintä autotallia yht. 33 m², ovet kaukosäätimellä.
Pihapaikka pihaportin edessä.
Isännöitsijäntodistuksen mukainen päivämäärä
31.01.2026
Lainat
186 618,41 €
Kiinnitykset
1 220 912,00 €
Isännöitsijä
Fluxio Isännöinti Oy Tekniikantie 2, 02150 Espoo
Isänn. Toivo Tapaila
010 339 0533, asiakaspalvelu@fluxio.fi
Kiinteistönhoito
Huoltoyhtiö
Taloyhtiössä muuta
Taloyhtiöllä yhteinen uimaranta. Kaksi venelaituria ja tenniskenttä.

MUITA TIETOJA

Kaavoitus
Asemakaava
Lisätietoa kaavoituksesta
Helsingin kaupunki; kartta.hel.fi -> aineistot -> kaavoitus ja liikennesuunnittelu p. 09 310 221 11

Tammisalon asemakaavamuutos; Tutkitaan tontinomistajien mahdollisuuksia täydennysrakentamiseen ja tehokkuuden nostoon yleiskaavan asettamien tavoitteiden mukaisesti.
Vapautuu
Sopimuksen mukaan

ASUMISKUSTANNUKSET

Hoitovastike
1 362,40 €/kk (4,81 €/m²)
Yhtiövastike yhteensä
1 687,28 €
Rahoitusvastike
324,88 €/kk (1,15 €/m²)
Muut maksut / lisätietoa maksuista
Linjasaneeraus- ja salaojaurakan kokonaislaina 7 300 000 euroa.
Tuleva lainaosuus tälle huoneistolle tämän hetkisen arvion mukaan on 524 x 730 e/osake = 382.520,00 euroa.
Rahoitusvastike tämän hetkisen arvion mukaan 3,5029 e/osake/kk x 524 = 1 835,52 e/kk.

Käyttösähkö kulutuksen mukaan. Kotivakuutus omien sopimusehtojen mukaisesti.
Varainsiirtovero 1,5% velattomasta myyntihinnasta.

Taloyhtiön osakeluettelo on siirretty huoneistotietojärjestelmään. Ostajan tulee hakea omistusoikeuden rekisteröintiä Maanmittauslaitokselta kaupan jälkeen. Ostaja vastaa omistusoikeuden rekisteröintikustannuksista, mahdollisista osakekirjan mitätöinnistä aiheutuvista kustannuksista sekä mahdollisesta hakemusmaksun korotuksesta. Ostajan pankin ostajalta mahdollisesti veloittamista kaupantekoon, omistusoikeuden rekisteröintiin tai panttausmerkinnän hakemiseen liittyvistä kustannuksista ostaja saa tiedon pankiltaan.

HINTA

Myyntihinta
978 379,75 € (3 451,07 €/m²)
Velaton hinta
998 000,00 € (3 520,28 €/m²)
Velkaosuus
19 620,25 € (69,21 €/m²)
Paasitie 15 - kuva 1 Paasitie 15 - kuva 2 Paasitie 15 - kuva 3 Paasitie 15 - kuva 4 Paasitie 15 - kuva 5 Paasitie 15 - kuva 6 Paasitie 15 - kuva 7 Paasitie 15 - kuva 8 Paasitie 15 - kuva 9 Paasitie 15 - kuva 10 Paasitie 15 - kuva 11 Paasitie 15 - kuva 12 Paasitie 15 - kuva 13 Paasitie 15 - kuva 14 Paasitie 15 - kuva 15 Paasitie 15 - kuva 16 Paasitie 15 - kuva 17 Paasitie 15 - kuva 18 Paasitie 15 - kuva 19 Paasitie 15 - kuva 20 Paasitie 15 - kuva 21 Paasitie 15 - kuva 22 Paasitie 15 - kuva 23 Paasitie 15 - kuva 24 Paasitie 15 - kuva 25 Paasitie 15 - kuva 26 Paasitie 15 - kuva 27 Paasitie 15 - kuva 28 Paasitie 15 - kuva 29 Paasitie 15 - kuva 30