Kuutamotie 10

Tapainlinna, Hyvinkää | Erillistalo | 6-8 h, k, s

  • 359 000 €

    Velaton hinta

  • 180,0 m2

    Asuinpinta-ala

  • 486,00 €/kk

    Hoitovastike

  • 2007

    Rakennusvuosi

Valoisa perheasunto hyvin hoidetussa yhtiössä

Tervetuloa tutustumaan tähän tilavaan ja valoisaan erillistaloon Hyvinkään Tapainlinnassa!
Tämä vuonna 2008 valmistunut kahden kerroksen koti tarjoaa 180 m² monipuolista ja toimivaa asuintilaa, jossa yhdistyvät moderni arkkitehtuuri ja lämminhenkinen tunnelma. Suuret ikkunat tuovat valoa läpi päivän ja olohuoneesta sekä ruokailutilasta avautuvat näkymät omalle, rauhalliselle takapihalle, joka rajoittuu metsikköön. Etupihan autokatospaikat sijaitsevat kätevästi sisäänkäynnin yhteydessä ja kuuluvat huoneistolle.

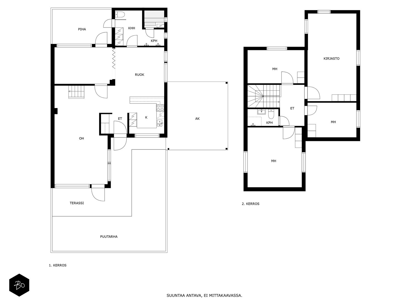
Kodin pohjaratkaisu on suunniteltu joustavasti perheen tarpeisiin.
Sisääntulokerroksessa sijaitsevat avara olohuone, erillinen työhuone sekä ruokailutila ja keittiö, joka on varusteltu mm. uudella jääkaapilla ja pakastimella (2024). Alakerrassa on myös kylpyhuone ja oma sauna. Yläkerrassa on neljä makuuhuonetta (yksi jaettavissa liukuovilla), arkiolohuone sekä erillinen WC. Materiaalit ovat ajattomat ja kodikkaat: parkettilattiat, kaakeloidut märkätilat ja runsaasti säilytystilaa, mm. ulkovarasto. Takapihan terassi kutsuu viettämään kesäiltoja, ja tilava pohjaratkaisu sopii erinomaisesti niin suuremmalle perheelle kuin etätyöskentelyyn.

Asunto-osakeyhtiö on hyvin hoidettu ja merkittävät korjaukset on tehty ajallaan.
Yhtiöllä on oma tontti ja vuosien varrella on huolehdittu mm. ulko-ovien ja terassiovien uusinnasta, sokkelin ja piharakenteiden korjauksista sekä ilmanvaihtokanavien puhdistuksista ja märkätilojen silikonien uusimisista. Yhtiön lämmitysjärjestelmä on sähkö ja ilmanvaihto koneellinen. Sijainti on erinomainen: koulut, päiväkodit ja kaupat sijaitsevat kävelymatkan päässä, ja Helsinkiin on hyvät liikenneyhteydet junalla tai autolla.

Tässä kodissa on tilaa ja rauhaa arkeen – tervetuloa ihastumaan paikan päälle!
Yksityisesittelyt sopimuksen mukaan.

MYYNTI / FÖRSÄLJNING / SALES:
Patrick Frisk
Osakas / Bo LKV Oy
+35405343590
patrick@bo.fi

Kiinnostaako tämä kohde?

Ota meihin yhteyttä tai jätä viesti

HUONEISTO

Osakkeet
1081-1440
Hallintamuoto
Asunto-osakeyhtiö
Huoneluku
6-8 h, k, s
Kerros
1-2
Kerroksia
2
Asuinpinta-ala
180,0 m²
Muut tilat
0,0 m²
Lisätietoja pinta-alasta
Pinta-alaa ei ole tarkistusmitattu. Yhtiöjärjestyksen mukainen. Isännöitsijäntodistuksen mukainen.
Liesi
Keraaminen
Keittiön muut varusteet
Astianpesukone
Keittiön lattiamateriaali
Parketti
Pesutilojen kuvaus, lisätiedot ja varustus
Lattian kaatoa korjattu 2008, mutta vesi jää silti hieman seisomaan suihkussa käynnin jälkeen. Todettu, että lattialämmitys pitää huolen, ettei kosteusvaurioita pääse syntymään.
Kylpyhuoneen varustus
Suihkuseinä, pesukoneliitäntä, lattialämmitys, wc-istuin, suihku, peili, kiinteät valaisimet
Kylpyhuoneen lattiamateriaali
Laatta
Kylpyhuoneen seinämateriaali
Kaakeli
WC-tilojen kuvaus
Varustus: wc-istuin, peili, kylpyhuonekaapisto, kiinteät valaisimet, lattialämmitys, lattiakaivo, bideesuihku.

Suihkukaappi poistettu vesivahingon yhteydessä. Korjattu yläkerran viemäriputken eristeet kaikissa asunnoissa, jonka jälkeen suihkua voi käyttää normaalisti. Laattalattiassa hieman kulumaa lavuaarin edessä.
Lattiamateriaalit: laatta
Seinämateriaalit: kaakeli
Sauna
Asunnossa on sauna
Saunan kuvaus, lisätiedot ja varustus
Kiuas ei sammu itsestään, vaan se pitää sammuttaa aina manuaalisesti (kiukaan vaihto).
Saunan lattiamateriaali
Laatta
Saunan seinämateriaali
Puu
Makuuhuoneen kuvaus, lisätiedot ja varustus
1 makuuhuoneista jaettu liukuovilla, yhdessä makuuhuoneessa ranskalainen parveke. Lukumäärä 4-6.
Lattiamateriaalit: parketti
Seinämateriaalit: maalattu
Oleskelutilojen kuvaus, lisätiedot ja varustus
Parketissa flyygelin jättämät painaumat/jäljet.
Lattiamateriaalit: parketti
Seinämateriaalit: maalattu
Muut säilytystilat
Ulkovarasto
Muuta kauppaan kuuluvaa
Kiinteät valaisimet, verhotangot, istutukset.
Kunto
Hyvä
Takkatiedot
Takkavaraus

KIINTEISTÖ- JA YHTIÖTIEDOT

Asuinpinta-ala
180,0 m² (180,0 m²)
Yhtiön nimi
Asunto Oy Hyvinkään Kuutamokaari
Tontin omistus
Oma
Tontin koko
6 984,00 m²
Pihan kuvaus
Terassit alkuperäisessä kunnossa, uusittava. Etupihan aita uusittu 2024, takapihan näköeste laitettu 2017.
Käyttöönottovuosi
2007
Rakennusmateriaali
Puu
Kattotyyppi
Pulpetti
Kate
Pelti
Lämmitysjärjestelmän kuvaus
Sähkö
Energiatodistus
Kyllä
Lisätietoja energiatodistuksesta
Viimeinen voimassaolopvm 21.3.2027
Energialuokka
E2013
Tehdyt korjaukset ja remontit
Taloyhtiön vastuulla on Koskela Safety Oy:n 2.6.2025 asentamat palovaroittimet.

Salaojakaivon pumppaamoputken korjaus ja kaivojen teleskooppien lyhennykset 2025.
Piharak. seinän paikkarappaus ja sokkelin rappaus 2025.
Ulko-ovien uusinta 6 kpl 2024. Pollarivalot huollettu 11/2024.
Sisäpihan aitojen kunnostus, jyrsijäverkot (E5, F6 jaG7), kourut paljaalla seinällä olevien ovien päälle 2023.
Pieneläinverkot 2022.
Terassiovien uusinta 9 kpl (7 etupihan lasiovea + umpiovi ja takapihan umpiovi) ja kynnysten tarvittavat korjaukset. Alapohjien tiivistykset, ötökkäverkkojen asennusta 2022.
Ilmanvaihtokanavien puhdistus ja säätö 2022.
Huoneistojen märkätilojen silikonien uusinta (tarpeellisin osin) 2022.
Viemäreiden ja lattiakaivojen ja viemärin osa sukitukset 2. kerroksen kylpyhuoneissa asunnoissa 2, 5, 7, 10, 11 ja 15 2021.
Talojen huoltomaalaus 2020.
Ulko-ovien kynnyksien huoltolakkaus, ikkuna- ja ovipielien tiivistyksiä, sähköpääkeskuksen johtokanavan peittäminen 2019.
Kynnyskorjauksia ja kynnyspeltien kiinnityksiä 2018.
VSS-rakennuksen katon ja seinän korjaus 2017.
Alapohjatilassa putkiläpivientien eristeiden tarkastus ja korjaus 2017.
Rakennusluvan lopputarkastus suoritettu, poistumistikkaat asennettu, VSS ilmanvaihto ja vesipiste asennettu, kiinteistön nurkkapisteet merkattu 2016-2017.
Asuinrakennusten jiirilappeiden vesikaton uusinta 2016.
Kylpyhuoneiden silikonit uusittu 2015.
Ilmanvaihdon puhdistus ja säätö 2015.

Vesiputkien jäätymistä on ilmennyt kovilla pakkasilla neljässä huoneistossa. Ko. huoneistoissa suoritettu lämpökuvauksia 25.1.2019. Putkien jäätymisen syy ei täysin selvinnyt ko. tutkimuksessa. Yhteen huoneistoon on asennettu koemielessä termostaattiohjattu lämmitin. Viikolla 7/2025 asennustyö saatu loppuun ja kokeilu aloitetaan.
Tiedossa olevat tulevat korjaukset/remontit
Yläpohjien korjaukset vuonna 2026. YP lisäeristykset korjausten jälkeen.

Paljaalla seinällä olevien terassiovien päälle on suositeltu asennettavaksi katokset suojaamaan ovea ja kynnystä. Tämä hanke pääosin toteutettu sadevesikourujen asentamisella ovien päälle 2023 ja 2024.
Ulko-ovia uusitaan tarpeen mukaan.
Talousarvioon kirjattu asuntojen seinävalojen uusiminen 10.000 euroa. Kokouksessa keskusteltiin pihavalojen uusimisen tarpeellisuudesta. Yhtiökokouksen jälkeen hallitus päätti, että seinävaloja uusitaan tarpeen mukaan eli valojen rikkoutuessa.

Korjaustöitä toteutetaan toistaiseksi hoitovaroin.
Havaitut puutteet ja korjaustarpeet
Drainmanin salaojien kuntotarkastusraporttiin 15.2024 on kirjattu seuraavanlainen huolto ja korjaussuunnitelma:
-välittömästi tehtäväksi suositeltu toimenpide: rännikaivojen putsaus => asukkaat huolehtivat
-0-2 vuoden sisään tehtäväksi suositeltu toimenpide: painumien korjaus 3 kpl (2 painumaa korjattu 2025), teleskooppien lyhennys kaivoilla (tehty 2025), joissa teleskooppi putken tiellä, sadevesikaivojen tyhjennys ja pumppaamon kokonaisvaltainen huolto.

Kuntoluokan 2 ja 3 putkille (7 kpl) suositellaan seurantaa eli tihennettyä kuvausväliä.

Valtaosa putkista on kuntoluokkaa 4 ja 5, ja niille suositellaan seuraavaa tarkastusta 5-10 vuoden päähän.
Kuluvelvoitteet
Hallituksella valtuudet kerätä 2 kk ylimääräinen hoitovastike tarvittaessa.
Lisätietoja autonsäilytyspaikoista
Huoneistolle kuuluu kaksi autopaikkaa.
Rajoitukset
Takkavaraus eli takkapohja on valettu joidenkin huoneistojen lattian alle. Takan rakentaminen on osakkeenomistajan muutostyö, joten takkapohjan olemassaolon tarkistaminen on osakkeenomistajan vastuulla. Takan rakentaminen edellyttää rakennusluvan.

Yhtiöjärj. 16 § Kunnossapitovastuu
Kunkin huoneiston takapihan puoleiset huoneistokohtaiset aidat, terassirakenteet, patiot ja lasiterassit ja muut vastaavat rakenteet kuuluvat kunkin osakkeenomistajan kunnossapitovastuulle. Sen lisäksi osakkeenomistaja vastaa muista huoneistoon tai sen
ulkopuolelle osakkeenomistajan toimesta asennetuista lisärakenteista ja lisävarusteista, kuten ilmalämpöpumpuista ja takoista. Tässä mainittu vastuu kunnossapidosta käsittää vastuun kohteen huollosta, hoidosta, korjaamisesta, perusparantamisesta ja uudistamisesta sekä
mainittujen toimenpiteiden kustannuksista sekä kohteen mahdollisista yhtiölle aiheuttamista lisäkustannuksista. Osakkeenomistajan vastuu on edellä mainittu, vaikka muutos ja/tai lisäys
on toteutettu huoneiston aikaisemman osakkeenomistajan toimesta
Isännöitsijäntodistuksen mukainen päivämäärä
24.02.2026
Lainat
3 769,33 €
Kiinnitykset
2 700 000,00 €
Isännöitsijä
Isännöinti ILO Oy
puh. 010 340 2400
toimisto@isannointi-ilo.fi
Isänn. Tuula Tolvanen
Kiinteistönhoito
Asukkaat
Taloyhtiössä muuta
As Oy lopputarkastettu 2016. Kaapeli-tv. Yhtiön hallintaan jäävät vierasautopaikat pihalla, väestösuoja sekä tekninen tila.

MUITA TIETOJA

Kaavoitus
Asemakaava
Lisätietoa kaavoituksesta
Hyvinkään kaupunki; kartta.hyvinkaa.fi -> aineistot -> kaavoitus
Palvelut
Kauppakeskus Willa 1,7 km, K-Market 950 m
Päiväkoti
Riemurinteen päiväkoti 500 m
Koulu
Martin koulu 850 m, Tapainlinnan koulu 1,3 km
Liikenneyhteydet
Helsinki 57,5 km 50 min, VR lähijunat, bussit Hyvinkään liikenne
Vapautuu
Sopimuksen mukaan

ASUMISKUSTANNUKSET

Hoitovastike
486,00 €/kk (2,70 €/m²)
Yhtiövastike yhteensä
486,00 €
Vesimaksu
14,00 €/hlö/kk
Muut maksut / lisätietoa maksuista
Sähkön kulutus v. 2024 23 837 kWh.
Vesimaksu on ennakko, tasauslasku kerran vuodessa mittarin mukaan, joulukuussa.

Käyttösähkö kulutuksen mukaan.
Kotivakuutus omien sopimusehtojen mukaisesti.
Varainsiirtovero 1,5% velattomasta myyntihinnasta.

Taloyhtiön osakeluettelo on siirretty huoneistotietojärjestelmään. Ostajan tulee hakea omistusoikeuden rekisteröintiä Maanmittauslaitokselta kaupan jälkeen. Ostaja vastaa omistusoikeuden rekisteröintikustannuksista, mahdollisista osakekirjan mitätöinnistä aiheutuvista kustannuksista sekä mahdollisesta hakemusmaksun korotuksesta. Ostajan pankin ostajalta mahdollisesti veloittamista kaupantekoon, omistusoikeuden rekisteröintiin tai panttausmerkinnän hakemiseen liittyvistä kustannuksista ostaja saa tiedon pankiltaan.

HINTA

Myyntihinta
359 000,00 € (1 994,44 €/m²)
Velaton hinta
359 000,00 € (1 994,44 €/m²)
Kuutamotie 10 - kuva 1 Kuutamotie 10 - kuva 2 Kuutamotie 10 - kuva 3 Kuutamotie 10 - kuva 4 Kuutamotie 10 - kuva 5 Kuutamotie 10 - kuva 6 Kuutamotie 10 - kuva 7 Kuutamotie 10 - kuva 8 Kuutamotie 10 - kuva 9 Kuutamotie 10 - kuva 10 Kuutamotie 10 - kuva 11 Kuutamotie 10 - kuva 12 Kuutamotie 10 - kuva 13 Kuutamotie 10 - kuva 14 Kuutamotie 10 - kuva 15 Kuutamotie 10 - kuva 16 Kuutamotie 10 - kuva 17 Kuutamotie 10 - kuva 18 Kuutamotie 10 - kuva 19 Kuutamotie 10 - kuva 20 Kuutamotie 10 - kuva 21 Kuutamotie 10 - kuva 22 Kuutamotie 10 - kuva 23 Kuutamotie 10 - kuva 24 Kuutamotie 10 - kuva 25 Kuutamotie 10 - kuva 26 Kuutamotie 10 - kuva 27 Kuutamotie 10 - kuva 28 Kuutamotie 10 - kuva 29 Kuutamotie 10 - kuva 30 Kuutamotie 10 - kuva 31 Kuutamotie 10 - kuva 32 Kuutamotie 10 - kuva 33 Kuutamotie 10 - kuva 34 Kuutamotie 10 - kuva 35 Kuutamotie 10 - kuva 36 Kuutamotie 10 - kuva 37 Kuutamotie 10 - kuva 38 Kuutamotie 10 - kuva 39 Kuutamotie 10 - kuva 40