Jukolantie 18 B

Siivikkala, Ylöjärvi | Omakotitalo | 4h, k, khh, kph/s, pukuh, 2wc, lasit.t, avot, vh + at, var

  • 615 000 €

    Velaton hinta

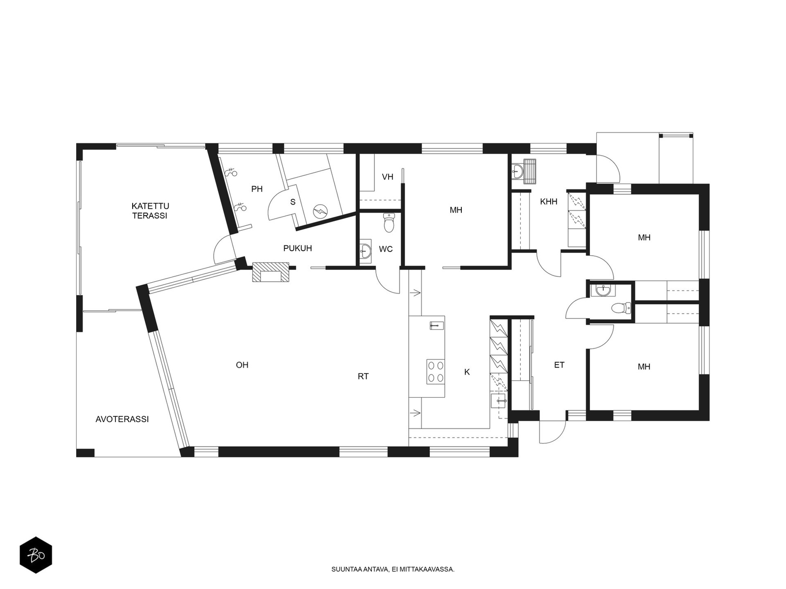
  • 149 m2

    Asuinpinta-ala

  • 168 m2

    Kokonaispinta-ala

  • 2018

    Rakennusvuosi

MODERNI YKSITASOINEN OMAKOTITALO VAPAUTUMASSA
Tervetuloa ihastumaan upeaan yksitasoiseen omakotitaloon, jossa moderni arkkitehtuuri ja avara pohjaratkaisu luovat viihtyisän ja ylellisen asumiskokemuksen. Katse kiinnittyy luonnostaan aikaa kestäviin materiaaleihin ja laadukkaaseen varusteluun. Suurten ikkunoiden ansiosta rakkaus luontoon ja valoon ovat aistittavissa tässä kodissa vuoden jokaisena päivänä – näkymät ovat uskomattoman kauniit.

UPEAT SISÄTILAT JA LAADUKKAA MATERIAALIT
Tämä vuonna 2018 käyttöönotettu yksilöllinen koti hurmaa ensimetreiltä lähtien tyylikkäällä sisustuksellaan ja käytännöllisyydellään. Olohuoneen, keittiön ja ruokailutilan muodostama yhtenäinen kokonaisuus on tämän kodin sydän, joka tarjoaa erinomaiset puitteet niin perhearjelle kuin juhlillekin. Hulppealla huonekorkeudella varustettu olohuone tuo tilaan lisäylellisyyttä, ja koko seinän korkuiset ikkunat päästävät luonnonvalon tulvimaan sisään, korostaen lämpimiä ja huolella valittuja sisustussävyjä. Olohuoneessa tunnelmaa ja lämpöä luo tyylikäs ja massiivinen varaava takka. Kulmalta on käynti lasitetulle terassille, mikä toimii niin saunan vilvoittelutilana kuin mainiona paikkana nauttia kesäilloista.

Keittiössä on upeat puunsävyiset kaapistot ja musta kodinkoneet sekä kivitasot. Ison saarekkeen ääressä on suorastaan ilo nauttia ruoanlaitosta. Kaksi erillistä wc:tä ja omalla uloskäynnillä toteutettu kodinhoitohuone helpottavat varsinkin lapsiperheiden arkea. Kaikki kolme makuuhuonetta ovat reilun kokoisia. Hyvillä säilytysratkaisuilla toteutettuihin makkareihin seesteisyyden ja rauhan luovat ihanan tuntuiset Vorwerkin kokolattiamatot. Asukkaita hemmottelee upea spa-tyylinen saunaosasto pukuhuoneineen.

KIINTEISTÖ JA PIHA-ALUEET
Talo sijaitsee todella rauhallisella paikalla aivan kadun päädyssä, missä lasten on turvallista leikkiä. Talon ympärillä ja piha-alueilla on reilusti tilaa. Takapihaterasseineen sijoittuu aurinkoiselle eteläpuoleiselle niityn reunaan rajoittuvalle oleskelupihalle. Auton saa pihapaikan lisäksi leveällä nosto-ovella varustettuun 21 m²:n kokoiseen lämpimään talliin, johon mahtuu auton lisäksi hyvin erilaisia harrastusvälineitä.

MODERNI TALOTEKNIIKKA
Kodin lämmitysratkaisuna toimii ympäristöystävällinen ja edullinen maalämpö - yhdistettynä vesikiertoiseen lattialämmitykseen. Kodin viilennyksestä huolehtii ilmalämpöpumppu. Kodin toimintoja voi säätää langattomasti ABB:n Free@Home -kodinohjauksella.

Siivikkalan ja Mettistön alue sijaintina tarjoaa täydellisen ympäristön perhe-elämälle. Alueen rauhallinen maalaisympäristö, mistä on kuitenkin vain 10 minuutin ajomatka Tampereelle, sopii erityisesti lapsiperheille. Päiväkoti, koulut ja alueen uudistettu leikkipuisto ovat lähellä, mikä tekee arjesta sujuvaa ja turvallista. Tämä täydellinen yhdistelmä maaseudun rauhallisuutta ja kaupunkipalveluiden saavutettavuutta tekee tästä kodista erityisen houkuttelevan.

Tule tutustumaan tähän hurmaavan kodikkaaseen kokonaisuuteen paikan päälle ja ihastu mahdollisuuksiin, joita tämä ainutlaatuinen koti tarjoaa!

KOHDETTA MYY:

Marko Lamu
myyntijohtaja, LKV, KiAT
040 801 3166 I marko.lamu@bo.fi

Kiinnostaako tämä kohde?

Ota meihin yhteyttä tai jätä viesti

HUONEISTO

Huoneluku
4h, k, khh, kph/s, pukuh, 2wc, lasit.t, avot, vh + at, var
Kerros
1
Kerroksia
1
Asuinpinta-ala
149,0 m²
Muut tilat
19,0 m²
Lisätietoja pinta-alasta
Autotallin pinta-ala 21 m². Asuinrakennuksen kerrospinta-ala on 164 m². Pinta-alatiedot perustuvat rakennuspiirustuksiin eikä niitä ole tarkistusmitattu. Kohteen kauppahinta ei perustu pelkästään pinta-alaan vaan kokonaisuuteen.
Keittiön kuvaus, lisätiedot ja varustus
Upeat puunsävyiset kaapistot, integroidut jääkaappi ja pakastinkaappi sekä astianpesukone, kalusteisiin upotetut mikroaaltouuni sekä
erillisuuni, mustat kivitasot, isossa saareekkeessa paljon työtaso ja kaappitilaa, induktioliesitaso tasotuulettimella, lattia laattaa, seinät maalattu.
Pesutilojen kuvaus, lisätiedot ja varustus
Kylpyhuoneessa kaksi sadesuihkua, seinään upotettu saippuateline, vesikiertoinen lattialämmitys. lattia ja seinät laattaa, kylpyhuoneen yhteydessä pukuhuone.
WC-tilojen kuvaus
Kaksi erillistä WC:tä; allaskaappi, seinäwc-istuin, led-valopeili, bideesuihku, lattia ja sienät laattaa, vesikiertoinen lattialämmitys.
Lukumäärä: 2
Kodinhoitohuone
Koidinhoitohuoneesta on oma uloskäynti, minkä yhteydessä on kurapiste ja pesuallas, kiinteät kaapistot, paikka pesukoneelle ja kuivausrummulle, lattia laattaa, seinät laatta/maali, vesikiertoinen lattialämmitys.
Sauna
Asunnossa on sauna
Saunan kuvaus, lisätiedot ja varustus
Lauteet ja seinäpanelit ruskeaa massiivipuuta, lauteisiin upotettu saunakiulu + hana, tornimallinen massiivikivikiuas (sähkö)
Makuuhuoneen kuvaus, lisätiedot ja varustus
Kiinteät vaatekaapistot / vaatehuone, lattiat Vorwerk -kokolattiamatto (eri sävyjä), seinät maalattu / Koivui Laine -paneli.
Oleskelutilojen kuvaus, lisätiedot ja varustus
Isiossa olohuoneessa hulppea huonekorkeus, viisto sisäkatto, isot lattiasta lähtevät ikkunat, massiivinen varaava takka, lattia kalanruotoparketti, seinällä akustiset sisustuslevyt / maali.
Muut säilytystilat
Vaatehuone, muu erillinen varasto
Muutostyöt huoneistossa
Vuonna 2024 asuinhuoneisiin on sisustusarkkitehdin suunnittelemana uusittu seuraavia pintamateriaaleja:
- makuuhuoneiden lattiat Vorwerkin kokolattiamatot (eri sävyjä), seinät maalattu
- osaan seinistä ja kattoon asennettu Koivui Laine -sormipanelia
- eteisen, olohuoneen ja ruokailutilan lattia vaihdettu Stonewashin tammi kalanruotoparkettiin
- olohuoneeseen isolle seinälle asennettu Konto akustiikkalevyt
Kunto
Hyvä
Kauppaan ei kuulu
Irtaimisto

KIINTEISTÖ- JA YHTIÖTIEDOT

Asuinpinta-ala
149,0 m² (168,0 m²)
Kiinteistötunnus
980-403-1-280
Tyyppi
Määräala
Tontin omistus
Oma
Tontin koko
2 140,00 m²
Tontin tyyppi
Tasamaatontti
Tontin kuvaus
Kiinteistö on jaettu hallinnankosopimuksella. Myytävä määräosa käsittää hallinnanjakosopimuksen mukaisen hallinnanjakoalueen B ja
lainhuutotodistuksen mukaisen 149/323 osuuden koko kiinteistöstä.
Osapuolet yhdessä hallitsevat hallinnanjakosopimuksen mukaista aluetta C. Hallinta-alueiden rajat ja pituudet ilmenevät liitekartasta.


Tie perille
Panttikirjat
750 000,00 €
Käyttöönottovuosi
2018
Rakennusmateriaali
Puu
Rakennusmateriaalin kuvaus
Ulkoverhous: Weber Serpovent tuulettuva levyrappaus Weberin Silco -hiertopinnotteella.
Maanvastainen alapohja 180 mm teräsbetonilaatta
Muut rakennukset
Autotalli, Talousrakennus
Kattotyyppi
Pulpettikatto
Kate
Kaksoisbitumikermikate
Lämmön jakotapa
Vesikiertoinen lattialämmitys
Lämmitysjärjestelmän kuvaus
Maalämpö, ilmalämpöpumppu
Ilmanvaihtojärjestelmä
Koneellinen tulo, koneellinen poisto, lämmön talteenotto
Energiatodistus
Kyllä
Energialuokka
B2018
Vesijohto
Kunnan
Viemäri
Kunnan
Rakennusoikeus
426,0 m²

MUITA TIETOJA

Kaavoitus
Asemakaava
Vapautuu
2 kk / sopimuksen mukaan

ASUMISKUSTANNUKSET

Muut maksut / lisätietoa maksuista
- Sähkönkulutus on ollut n. 12 000 kWh/vuosi (sis. lämmityksen ja käyttösähkön).
- Pääoven ovijärjestelmä 80 €/vuosi
- Valokuitu 49 €/kk
- Jätehuolto n. 250 €/vuosi

Kiinteistöllä on yhteiset sähkö, vesi- ja viemäriliittymät.
- Taloissa ja autotalleissa on omat sähkömittarit, jonka perusteella osapuolet vastaavat omasta
sähkönkulutuksesta.
- Taloissa on vesimittarit joiden perusteella osapuolet vastaavat omasta vedenkulutuksesta.
- Teknisessä tilassa sijaitseva maalämpölaitteisto on yhteinen, laitteistoon on asennettu
lämmitysenergian mittauslaitteisto, jonka perusteella osapuolet vastaavat omasta lämmitysenergian
kulutuksesta kulloinkin voimassa olevan energiahinnan mukaisesti. Autotallin lämmityskustannuksista
osapuolet vastaavat yhteisesti.
Kiinteistövero
1 088,00 €

HINTA

Myyntihinta
615 000,00 €
Velaton hinta
615 000,00 €
Jukolantie 18 B - kuva 1 Jukolantie 18 B - kuva 2 Jukolantie 18 B - kuva 3 Jukolantie 18 B - kuva 4 Jukolantie 18 B - kuva 5 Jukolantie 18 B - kuva 6 Jukolantie 18 B - kuva 7 Jukolantie 18 B - kuva 8 Jukolantie 18 B - kuva 9 Jukolantie 18 B - kuva 10 Jukolantie 18 B - kuva 11 Jukolantie 18 B - kuva 12 Jukolantie 18 B - kuva 13 Jukolantie 18 B - kuva 14 Jukolantie 18 B - kuva 15 Jukolantie 18 B - kuva 16 Jukolantie 18 B - kuva 17 Jukolantie 18 B - kuva 18 Jukolantie 18 B - kuva 19 Jukolantie 18 B - kuva 20 Jukolantie 18 B - kuva 21 Jukolantie 18 B - kuva 22 Jukolantie 18 B - kuva 23 Jukolantie 18 B - kuva 24 Jukolantie 18 B - kuva 25 Jukolantie 18 B - kuva 26 Jukolantie 18 B - kuva 27 Jukolantie 18 B - kuva 28 Jukolantie 18 B - kuva 29 Jukolantie 18 B - kuva 30 Jukolantie 18 B - kuva 31 Jukolantie 18 B - kuva 32 Jukolantie 18 B - kuva 33 Jukolantie 18 B - kuva 34 Jukolantie 18 B - kuva 35 Jukolantie 18 B - kuva 36 Jukolantie 18 B - kuva 37 Jukolantie 18 B - kuva 38 Jukolantie 18 B - kuva 39 Jukolantie 18 B - kuva 40 Jukolantie 18 B - kuva 41 Jukolantie 18 B - kuva 42 Jukolantie 18 B - kuva 43 Jukolantie 18 B - kuva 44 Jukolantie 18 B - kuva 45 Jukolantie 18 B - kuva 46 Jukolantie 18 B - kuva 47