Rypsitie 8

Muhos, Muhos | Omakotitalo | 6h, k, kph, khh,, s, eril. wc + las.parv

  • 388 000 €

    Velaton hinta

  • 178,20 m2

    Asuinpinta-ala

  • 219,60 m2

    Kokonaispinta-ala

  • 2016

    Rakennusvuosi

Tervetuloa Muhoksen asuinalueelle!

Uusia asukkaita etsii tämä valoisa ja hyväkuntoinen omakotitalo. Tämä ihastuttava omakotitalo sijaitsee isolla ja puistomaisella 1495m2 tontilla loistavalla paikalla, päättyvän tien varrella. Sijainti on siis mitä parhain, sillä tämä koti sijaitsee rauhallisella ja vehreällä omakotitaloalueella. Tämä kaksikerroksinen talo sopii mainiosti isommallekin perheelle.

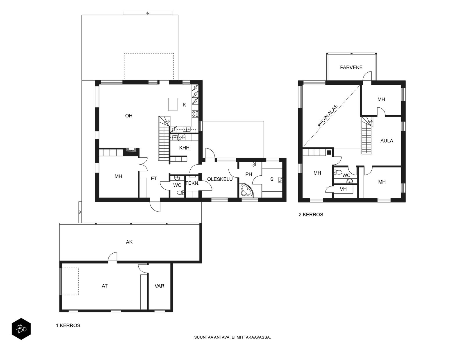
Ensimmäisessä kerroksessa sijaitsee olohuone, joka yhdistyy käytännöllisesti ruokailutilaan ja keittiöön, jossa on kivitasot, runsaasti kaappi- ja laskutilaa sekä laadukkaat kodinkoneet. Olohuoneessa valoa ja tunnelmaa luovat suuret ikkunat ja korkea huonekorkeus. Olohuoneesta on kulkuyhteys isolle lasiterassille. Alakerran tilavasta kodinhoitohuoneesta on suora yhteys kodin kylpy- ja saunatiloihin, josta löytyy myös poreamme. Ensimmäisestä kerroksesta löytyy yksi makuuhuone, joka soveltuu mainiosti vaikka päämakuhuoneeksi. Erillinen wc löytyy ensimmäisestä kerroksesta.

Talon kauniit portaat johdattavat sinut yläkertaan, jossa on avara yhtenäinen tila. Yläkerrassa on kolme tilavaa makuuhuonetta, joissa on hyvät säilytysratkaisut. Yläkerran yhdestä makuuhuoneesta pääset myös parvekkeelle, josta on näkymät kauniille ja suojaisalle sisäpihalle. Yläkerrasta löytyy myös erillinen wc.

Tämä omakotitalo on valmistunut vuonna 2016 ja se on kaukolämmössä. Tätä kotia on huollettu säännöllisesti ja pidetty hyvin. Tilat kruunaa reilunkokoinen autotalli ja varasto sekä autokatos, jossa on sähköauton latausasema.

Sijainti on mitä parhain, eikä tällaista kotia pääse joka päivä ostamaan. Kaikki palvelut ovat pienen matkan päässä ja mm. kaupat, koulut, päiväkodit ja palvelut ovat lähellä. Perheen pienimmät voi lähettää huoletta suoraan parin minuutin koulumatkalle kevyen liikenteen väylää pitkin.

Mitä siis vielä odotat?

Tämä koti vapautuu sopimuksen mukaan, joten ole nopea ja varaa oma esittelyaikasi jo tänään!

Lisätiedot ja esittely varaukset:

Teemu Aikio
Kiinteistönvälittäjä, LKV
045 114 2180
teemu@bo.fi
Instagram @bolkv_teemu
___________________________________________________

Etsitkö nykyiselle kodillesi kiinteistönvälittäjää? Voit varata helposti ajan arviokäyntiä varten kalenteristani juuri sinulle sopivaan aikaan: https://bo.fi/henkilo/teemu-aikio/#kalenteri

Kiinnostaako tämä kohde?

Ota meihin yhteyttä tai jätä viesti

HUONEISTO

Huoneluku
6h, k, kph, khh,, s, eril. wc + las.parv
Kerros
1-2
Kerroksia
2
Asuinpinta-ala
178,2 m²
Muut tilat
41,4 m²
Lisätietoja pinta-alasta
Asuinpinta-alana rakennuspiirustusten mukainen huoneistoala.

Rakennuspiirustusten mukaan talon sekä autotalli / varastorakennuksen yhteenlaskettu kerrosala on 251,5m², autotallin huoneistoala on 33m² ja varaston 8,4m².
Liesi
Induktio, erillisuuni
Keittiön muut varusteet
Mikroaaltouuni, astianpesukone, kiinteät valaisimet, liesituuletin / hormi
Keittiön työtasojen materiaali
Kivi
Keittiön lattiamateriaali
Laatta, vinyylikorkki
Keittiön seinien materiaali
Kaakeli, maalattu
Kylpyhuoneen varustus
Poreamme, lattialämmitys, suihku, kiinteät valaisimet
Kylpyhuoneen lattiamateriaali
Laatta
Kylpyhuoneen seinämateriaali
Kaakeli
WC-tilojen kuvaus
Varustus: lattialämmitys, peilikaappi, bidee-suihku
Lukumäärä: 2
Lattiamateriaalit: laatta
Seinämateriaalit: kaakeli, maalattu
Kodinhoitohuone
Varustus: pesukoneliitäntä, pesuallas, lattialämmitys, lattiakaivo, pöytätaso
Lattiamateriaalit: laatta
Seinämateriaalit: kaakeli
Sauna
Asunnossa on sauna
Saunan lattiamateriaali
Laatta
Saunan seinämateriaali
Puu
Makuuhuoneen kuvaus, lisätiedot ja varustus
Lukumäärä: 5
Lattiamateriaalit: vinyylikorkki
Seinämateriaalit: maalattu, tapetti
Oleskelutilojen kuvaus, lisätiedot ja varustus
Lattiamateriaalit: vinyylikorkki
Seinämateriaalit: maalattu
Muut huonetilat
Yläkerran yhdessä makuuhuoneessa lasiseinä.
Muut säilytystilat
Ulkovarasto
Muutostyöt huoneistossa
Jääkaappi - ja pakastin sekä astianpesukone uusittu.

Ilmalämpöpumppu asennettiin vuonna 2020.

Sähköauton latausasema 2023.
Kunto
Hyvä
Takkatiedot
Takka

KIINTEISTÖ- JA YHTIÖTIEDOT

Asuinpinta-ala
178,2 m² (219,6 m²)
Kiinteistötunnus
494-403-7-98-L1
Tyyppi
Omakotitalo
Tontin omistus
Vuokrattu
Tontin vuokraaja
Muhoksen kunta
Tontin vuokrasopimus päättyy
31.12.2056
Tontin vuokra
1 316,98 €
Tontin koko
1 495,00 m²
Tontin tyyppi
Tasamaatontti
Tontin kuvaus
Tie perille
Panttikirjat
350 000,00 €
Käyttöönottovuosi
2016
Rakennusmateriaali
Puu, betoni
Muut rakennukset
Autotalli, Varasto
Kattotyyppi
Pulpettikatto
Kate
Pystysaumapeltikate
Katon kunto
Hyvä
Lämmön jakotapa
Vesikiertoinen lattialämmitys
Lämmitysjärjestelmän kuvaus
Kaukolämpö, ilmalämpöpumppu
Ilmanvaihtojärjestelmä
Koneellinen tulo, koneellinen poisto, lämmön talteenotto
Energiatodistus
Kyllä
Lisätietoja energiatodistuksesta
Voimassa 19.4.2026
Energialuokka
C2013
Vesijohto
Kunnan
Viemäri
Kunnan
Rakennusoikeus, e-luku
0.2
Lisätietoja rakennusoikeudesta
Muhoksen rakennusvalvonta

MUITA TIETOJA

Kaavoitus
Asemakaava
Vapautuu
Sopimuksen mukaan

ASUMISKUSTANNUKSET

Muut maksut / lisätietoa maksuista
Ilmoitetut kustannukset ja kulutusperusteiset maksut perustuvat nykyiseen kulutukseen ja ne saattavat muuttua ilmoitetuista käytön mukaan ja voivat siten olla pienempiä tai suurempia riippuen asukasmäärästä, asumistottumuksista ja palveluntarjoajasta.

- Kaukolämmön kulutus 20 mwh vuosi.
- Sähkönvuosikulutus 6500 kwh vuosi.

Sähköisten panttikirjojen siirtomaksusta vastaa ostaja.

Varainsiirtovero 3 % kauppahinnasta.
Kiinteistövero
706,33 €

HINTA

Myyntihinta
388 000,00 €
Velaton hinta
388 000,00 €
Vuokrattu
Kyllä
Rypsitie 8 - kuva 1 Rypsitie 8 - kuva 2 Rypsitie 8 - kuva 3 Rypsitie 8 - kuva 4 Rypsitie 8 - kuva 5 Rypsitie 8 - kuva 6 Rypsitie 8 - kuva 7 Rypsitie 8 - kuva 8 Rypsitie 8 - kuva 9 Rypsitie 8 - kuva 10 Rypsitie 8 - kuva 11 Rypsitie 8 - kuva 12 Rypsitie 8 - kuva 13 Rypsitie 8 - kuva 14 Rypsitie 8 - kuva 15 Rypsitie 8 - kuva 16 Rypsitie 8 - kuva 17 Rypsitie 8 - kuva 18 Rypsitie 8 - kuva 19 Rypsitie 8 - kuva 20 Rypsitie 8 - kuva 21 Rypsitie 8 - kuva 22 Rypsitie 8 - kuva 23 Rypsitie 8 - kuva 24 Rypsitie 8 - kuva 25 Rypsitie 8 - kuva 26 Rypsitie 8 - kuva 27 Rypsitie 8 - kuva 28 Rypsitie 8 - kuva 29 Rypsitie 8 - kuva 30 Rypsitie 8 - kuva 31 Rypsitie 8 - kuva 32 Rypsitie 8 - kuva 33 Rypsitie 8 - kuva 34 Rypsitie 8 - kuva 35 Rypsitie 8 - kuva 36 Rypsitie 8 - kuva 37 Rypsitie 8 - kuva 38 Rypsitie 8 - kuva 39 Rypsitie 8 - kuva 40 Rypsitie 8 - kuva 41 Rypsitie 8 - kuva 42 Rypsitie 8 - kuva 43 Rypsitie 8 - kuva 44 Rypsitie 8 - kuva 45 Rypsitie 8 - kuva 46 Rypsitie 8 - kuva 47 Rypsitie 8 - kuva 48 Rypsitie 8 - kuva 49 Rypsitie 8 - kuva 50 Rypsitie 8 - kuva 51 Rypsitie 8 - kuva 52 Rypsitie 8 - kuva 53 Rypsitie 8 - kuva 54 Rypsitie 8 - kuva 55 Rypsitie 8 - kuva 56 Rypsitie 8 - kuva 57 Rypsitie 8 - kuva 58 Rypsitie 8 - kuva 59 Rypsitie 8 - kuva 60 Rypsitie 8 - kuva 61 Rypsitie 8 - kuva 62 Rypsitie 8 - kuva 63 Rypsitie 8 - kuva 64 Rypsitie 8 - kuva 65 Rypsitie 8 - kuva 66