Rauhalantie 10 - 12

Ihattula, Taivassalo | Mökki Tai Huvila | saunamökki, rantasauna ja tupa, parakkimökki, 2 x vanha saneerattava päärakennus, jalassauna, rantavaja, 2 x pihavaja, venekatos

  • 298 000 €

    Velaton hinta

  • 201,0 m2

    Kokonaispinta-ala

OLE YHTEYDESSÄ JA VARAA OMA ESITTELYAIKASI SINULLE SOPIVANA AJANKOHTANA!

Viihtyisä monien mahdollisuuksien kesäkeidas meren äärellä alle tunnin ajomatkan päässä Turun keskustasta.

Kokonaisuuteen kuuluu kaksi viime vuosina remontoitua saunamökkiä, joista toinen on meren rannassa, kaksi vanhaa remonttia kaipaavaa hirsirunkoista päärakennusta sekä vierasmökiksi remontoitu parakki. Iso uusi laiturikokonaisuus, jossa kansipinta-alaa on noin 300 m2 mahdollistaa venepaikat tarvittaessa jopa viidelletoista veneelle.

Tämä kahdella rinnakkaisella kiinteistöllä sijaitseva kokonaisuus soveltuu tasaisen helppokulkuisen maastonsa ansiosta kaikenikäisille ja makuutilaa löytyy saunamökeissä ja vierasmökissä useammallekin perhekunnalle. Rantasaunalta on avoimet näkymät merelle; mikä onkaan sen idyllisempää kuin istua iltaa terassilla merimaisemaa ihastellen ja nukahtaa laineiden liplatukseen.

Idylliset vanhat hirsirunkoiset päärakennukset ovat toimineet viime vuosina pääasiassa varastotiloina ja tarvitsevat peruskorjauksen ennen asuinkäyttöön ottamista. Pientä remonttia on jo tehtykin mahdollista tulevaisuuden asuinkäyttöä ajatellen: esimerkiksi punaisen kalastajatorppatyylisen rakennuksen massiivinen vanha leivinuuni on muurattu uudelleen ja uudet keittolevyt odottavat asennusta.

Pihapiiriin on vuosien varrella rakennettu muun muassa katettu paviljonki sekä jalassauna ja kylpytynnyri patioineen. Saunamökit ovat olleet aktiivisessa käytössä lähes läpi vuoden ja onpa täällä vietetty jouluakin. Nurmialueen saunamökkiin ja vanhaan keltaiseen päärakennukseen tulee kunnan vesi ja sähköt on vedetty asuinrakennusten lisäksi vierasmökkiin sekä mönkijätalliin/pihavajaan.

Runsaan vehreä pihapiiri omenapuineen ja marjapensaineen sekä oma ranta laitureineen tarjoavat idylliset puitteet kesänviettoon ja mökkeilyyn vaikka vuoden ympäri.

Voit ostaa myös pelkän merenrantakiinteistön (Suomela) jolla on rantasauna sekä vanha remontoitava asuinrakennus. Kysy lisää välittäjältä.

Tervetuloa tutustumaan ja ihastumaan!

OTA YHTEYTTÄ JA VARAA OMA ESITTELYAIKASI!

KATRIINA RANTA I 040 572 1286 I katriina@bo.fi

MYYMÄSSÄ OMAA ASUNTOA?

Kun kaipaat kodillesi ammattitaitoista välittäjää, autan mielelläni myös nykyisen kotisi myynnissä. Arviokäynti myyntiä varten on aina maksuton.

Kiinnostaako tämä kohde?

Ota meihin yhteyttä tai jätä viesti

HUONEISTO

Hallintamuoto
Oma
Huoneluku
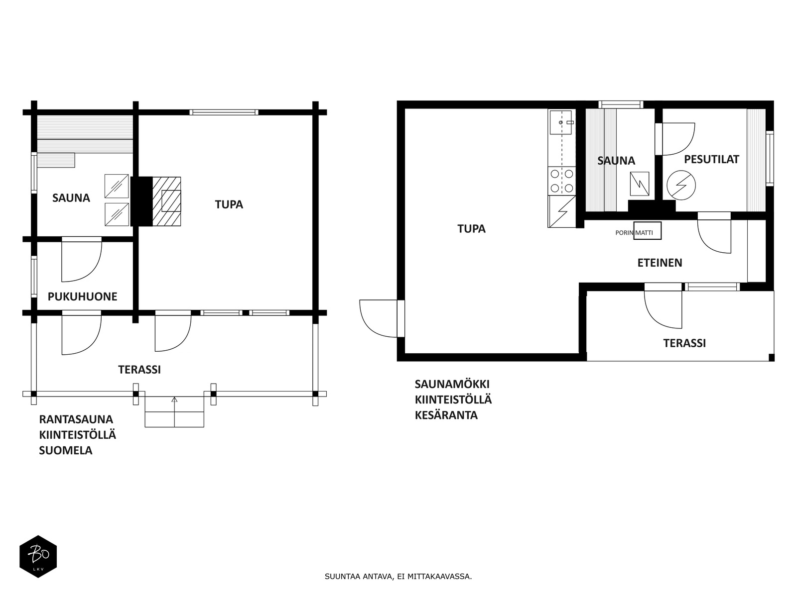
Saunamökki, rantasauna ja tupa, parakkimökki, 2 x vanha saneerattava päärakennus, jalassauna, rantavaja, 2 x pihavaja, venekatos
Asuinpinta-ala
0,0 m²
Muut tilat
201,0 m²
Lisätietoja pinta-alasta
Ilmoitettuun kokonaispinta-alaan on laskettu seuraavat:

Suomela kerrosalat:
Saunarakennus n. 27 m²
Vanha päärakennus n. 81 m²

Kesäranta kerrosalat:
Saunarakennus n. 38 m²
Vanha päärakennus n. 55 m²

Näiden lisäksi kiinteistöllä kesäranta on parakki/vierasmökki n. 18 m².

Pinta-alat on ilmoitettu kerrosaloina. Tämä ei ole virallinen tapa ilmoittaa pinta-aloja. Suosittelemme pinta-alojen tarkistusmittausta oikean pinta-alan varmistamiseksi. Kerrosalat on saatu Asiakastiedon rakennustietokannasta.
Keittiön kuvaus, lisätiedot ja varustus
Kesäranta:
Saunamökki: Keittiössä jenkkikaappi pakastelokerolla ja sähköliesi leivinuunilla. Porinmatti keittotasolla ja sähkövastusvarauksella.
WC-tilojen kuvaus
Puucee
Lukumäärä: 1
Sauna
Asunnossa on sauna
Saunan kuvaus, lisätiedot ja varustus
Suomela:
Rantasauna: kiuas ja pata. Lattia ja seinäpinnat puuta, rakolattia.

Kesäranta:
Saunamökki: sauna käyttämätön. Kiuas ja pata, betonilattia, seinät puuta.
Jalassauna: kiuas vesisäiliöllä, pukuhuone, Lattia ja seinäpinnat puuta, rakolattia
Muuta kauppaan kuuluvaa
Kaikki huonekalut, rakennusmateriaalit vajoista ja pihapiiristä
Muutostyöt huoneistossa
Suomelan rantasaunalle on haettu uusi lupa vuonna 2018 ja siirretty nykyiseen paikkaan. Loppukatselmoitu.
Kunto
Hyvä
Lisätietoa kunnosta
Saunamökkien ja parakkimökin kunto hyvä. Vanhat päärakennukset ovat olleet tyhjillään pitkään eivätkä ole nykyisillä omistajilla olleet asuinkäytössä. Ne vaativat laajamittaisen saneerauksen ennen asuinkäyttöön ottamista.
Kauppaan ei kuulu
Työkalut ja koneet, pienirtaimisto kaapeista.

KIINTEISTÖ- JA YHTIÖTIEDOT

Kiinteistötunnus
833-452-1-2 ja 833-452-1-30
Tyyppi
Vapaa-ajan asunto
Kortteli/Kiinteistön nimi
Kesäranta ja Suomela
Tontin omistus
Oma
Tontin koko
0,80 ha
Tontin tyyppi
Rantatontti
Tontin kuvaus
Myytävä kokonaisuus muodostuu kahdesta kiinteistöstä, Suomela (0,6020 ha, rantatontti) ja Kesäranta (0,2000 ha).
Tie perille
Rakennusmateriaalin kuvaus
Suomela:
Rantamökki kevythirsi, harjakatto, peltikate
Punainen vanha päärakennus hirsirunko, lautaverhoilu. Harjakatto, peltikate.
Puuvaja ja rantavaja puurakenteisia, harjakatto, peltikate.

Kesäranta:
Saunamökki puurakenteinen, harjakatto, peltikate.
Parakkimökki puurakenteinen
Keltainen vanha päärakennus hirsirunko, lautaverhoilu. Harjakatto, peltikate.
Jalassauna puurakenteinen, harjakatto, peltikate.
Mönkijätalli puurakenteinen, harjakatto, peltikate.
Venekatos puurakenteinen, harjakatto, peltikate
Muut rakennukset
Suomela:
Pihavaja
Rantavaja

Kesäranta:
Parakki/vierasmaja
Pihavaja/mönkijätalli
Jalassauna
Venekatos
Paviljonki
Puucee
Lämmön jakotapa
Sähköpatterilämmitys, uuni/takka, ilmalämpöpumppu
Ilmanvaihtojärjestelmä
Painovoimainen
Lisätietoja energiatodistuksesta
Kohteelle ei lain mukaan tarvita energiatodistusta.
Vesijohto
Kunnan, Kesävesi. Putket eristetty, mutta tyhjätty ja vesi katkaistu talveksi. Kesäranta-kiinteistön keltaiseen vanhaan päärakennukseen ja saunamökkiin tulee vesi.
Veden laatu ja riittävyys
Kiinteistöillä on lisäksi kolme vanhaa kaivoa, joiden vettä ja kuntoa ei ole tutkittu ja jotka eivät ole olleet käytössä nykyisellä omistajalla.
Rakennusoikeus
500,0 m²

MUITA TIETOJA

Kaavoitus
Rantakaava
Omaa rantaviivaa, metriä
65 m
Rannan kuvaus
Kiinteistön edustalla saattaa olla lunastamatonta vesijättömaata. Vesijättö voidaan varmuudella todeta kiinteistötoimituksella. Vesijättö voi aiheuttaa lunastusoikeuden tai -velvollisuuden.
Vapautuu
Sopimuksen mukaan
Lisätietoja
Laituriin mahtuu noin 15 venettä.

ASUMISKUSTANNUKSET

Muut maksut / lisätietoa maksuista
Käyttö- ja lämmityssähkö on ollut 1400 - 2000 kWh/v vakituisessa mökkikäytössä, vesi ja jätemaksu oman kulutuksen mukaan, polttopuut kahteen saunaan, Porinmattiin ja takkaan, kiinteistövero (Kesäranta 246,51 e, Suomela 611,73 e), tiemaksu (nyk. noin 90 e/v), kaupanvahvistus, lainhuudon kirjaaminen, varainsiirtovero 3 %.

HINTA

Myyntihinta
298 000,00 €
Velaton hinta
298 000,00 €
Rauhalantie 10 - 12  - kuva 1 Rauhalantie 10 - 12  - kuva 2 Rauhalantie 10 - 12  - kuva 3 Rauhalantie 10 - 12  - kuva 4 Rauhalantie 10 - 12  - kuva 5 Rauhalantie 10 - 12  - kuva 6 Rauhalantie 10 - 12  - kuva 7 Rauhalantie 10 - 12  - kuva 8 Rauhalantie 10 - 12  - kuva 9 Rauhalantie 10 - 12  - kuva 10 Rauhalantie 10 - 12  - kuva 11 Rauhalantie 10 - 12  - kuva 12 Rauhalantie 10 - 12  - kuva 13 Rauhalantie 10 - 12  - kuva 14 Rauhalantie 10 - 12  - kuva 15 Rauhalantie 10 - 12  - kuva 16 Rauhalantie 10 - 12  - kuva 17 Rauhalantie 10 - 12  - kuva 18 Rauhalantie 10 - 12  - kuva 19 Rauhalantie 10 - 12  - kuva 20 Rauhalantie 10 - 12  - kuva 21 Rauhalantie 10 - 12  - kuva 22 Rauhalantie 10 - 12  - kuva 23 Rauhalantie 10 - 12  - kuva 24 Rauhalantie 10 - 12  - kuva 25 Rauhalantie 10 - 12  - kuva 26 Rauhalantie 10 - 12  - kuva 27 Rauhalantie 10 - 12  - kuva 28 Rauhalantie 10 - 12  - kuva 29 Rauhalantie 10 - 12  - kuva 30 Rauhalantie 10 - 12  - kuva 31 Rauhalantie 10 - 12  - kuva 32 Rauhalantie 10 - 12  - kuva 33 Rauhalantie 10 - 12  - kuva 34 Rauhalantie 10 - 12  - kuva 35 Rauhalantie 10 - 12  - kuva 36 Rauhalantie 10 - 12  - kuva 37 Rauhalantie 10 - 12  - kuva 38 Rauhalantie 10 - 12  - kuva 39