Tuurnankatu 22

Kaarila, Tampere | Paritalo | 4h, k, vh, khh, sauna, kph/wc, erill. wc, ulkovarasto, lasit. parveke, ter

  • 324 000 €

    Velaton hinta

  • 120,0 m2

    Asuinpinta-ala

  • 342,00 €/kk

    Hoitovastike

  • 2003

    Rakennusvuosi

Viehättävä, modernisti laitettu paritalokoti Kaarilan rauhassa.

Valoisa, tyylikkäästi päivitetty koti tarjoaa tilaa ja mukavuutta arjen keskellä. Neljän huoneen paritalossa yhdistyvät moderni ilme ja kodikas tunnelma luonnonläheisessä ympäristössä.

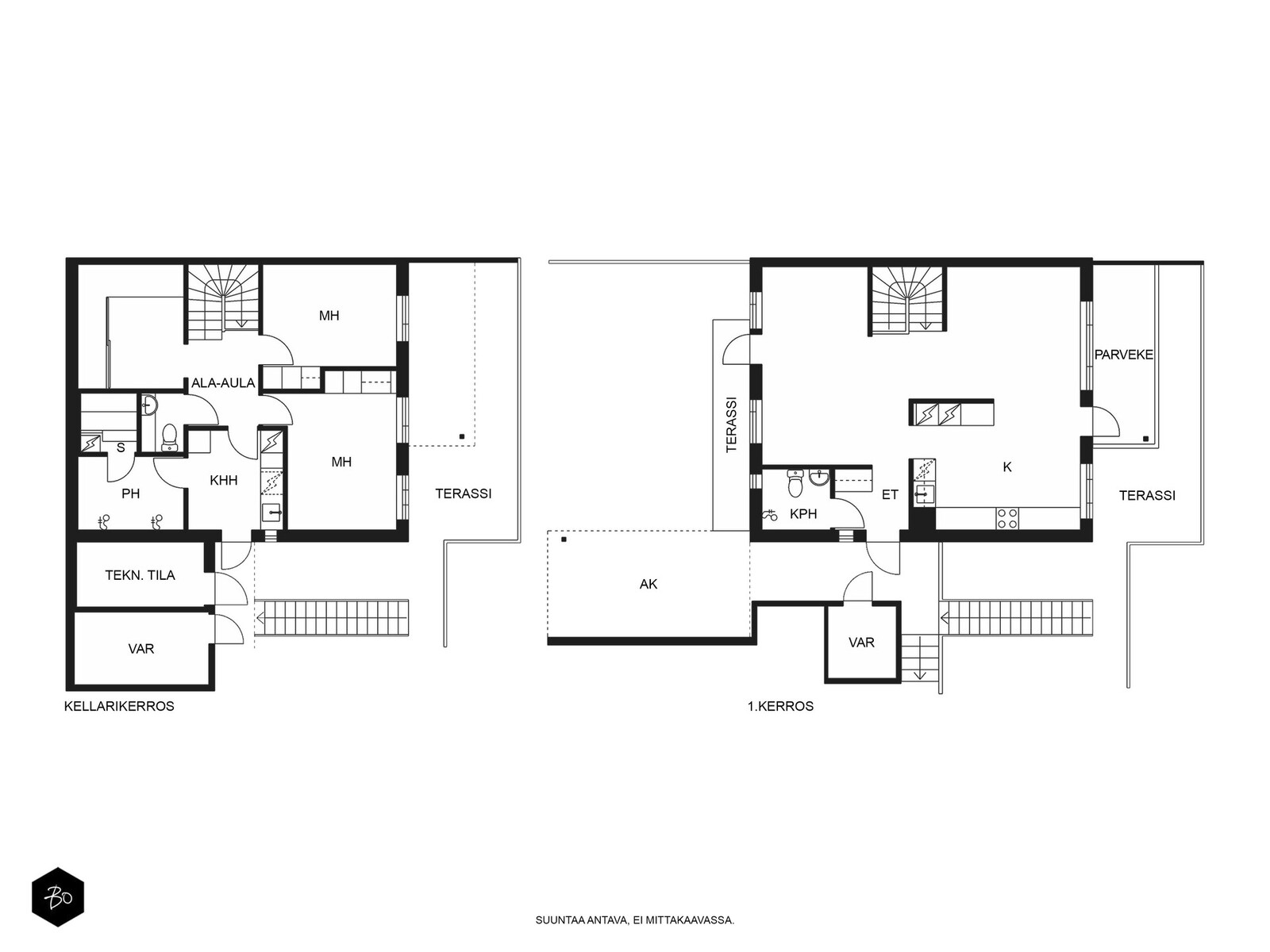
Asunnon eritasoratkaisu tuo kotiin mielenkiintoista tilajakoa ja toimivuutta kahteen kerrokseen jaettuna. Yläkerrassa sijaitsevat uusittu keittiö, ruokailutila sekä tilava olohuone, jotka muodostavat avoimen ja valoisan kokonaisuuden. Halutessaan yläkertaan on mahdollista rakentaa kaksi erillistä makuuhuonetta, mikä tekee pohjaratkaisusta joustavan perheen muuttuviin tarpeisiin.
Keittiö on toteutettu tyylikkääksi kokonaisuudeksi laadukkailla kodinkoneilla ja ajattomilla pinnoilla. Mustavalkoiset sisustussävyt yhdistettynä lämpöä tuovaan tammiparkettiin luovat pelkistetyn, modernin ilmeen läpi kodin.
Alakerta on omistettu yksityisyydelle ja arjen huollolle, sillä sinne sijoittuvat makuuhuoneet, huolella remontoidut pesu- ja kodinhoitotilat, sekä oma sauna. Kaksi erillistä wc-tilaa ja pukeutumishuone kaappeineen täydentävät kokonaisuuden ja tekevät arjesta sujuvaa.

Taloyhtiössä on huolehdittu kiinteistön kunnosta hyvin. Yhtiön sijaitsee omalla tontilla ja kodin etelään avautuva piha-alue terasseineen kutsuu viettämään aikaa ulkona. Iso lasitettu parveke jatkaa ruokailutilaa ja toimii suojaisena paikkana ympäri vuoden. Autokatospaikka sähköautonlatauksella kuuluu asuntoon ja kaksi ulkovarastoa tarjoavat säilytystilaa perheen tavaroille.

Kaarila on rauhallinen ja idyllinen asuinalue, jossa luonto on aidosti läsnä arjessa. Ympäristön vihreys ja metsänläheisyys tekevät alueesta erityisen viihtyisän lapsiperheille, mutta koti sopii yhtä hyvin tilaa ja rauhaa arvostavalle pariskunnalle. Tampereen palvelut ovat helposti saavutettavissa.

Näitä kauniita ja tilavia perhekoteja on tarjolla vähän, joten hurry up!

Iina Moisander
0400 658 779
iina@bo.fi

Kiinnostaako tämä kohde?

Ota meihin yhteyttä tai jätä viesti

HUONEISTO

Osakkeet
131-250
Hallintamuoto
Asunto-osakeyhtiö
Huoneluku
4h, k, vh, khh, sauna, kph/wc, erill. wc, ulkovarasto, lasit. parveke, ter
Kerros
1/2
Kerroksia
2
Asuinpinta-ala
120,0 m²
Muut tilat
0,0 m²
Lisätietoja pinta-alasta
Yhtiöjärjestyksen mukainen huoneistomääritelmä 5h+k+s Yhtiöjärjestyksen mukainen. Isännöitsijäntodistuksen mukainen.
Parveke
Lasitettu
Parvekkeen ilmansuunta
Pohjoinen
Keittiön kuvaus, lisätiedot ja varustus
Keittiö kodinkoneineen uusittu 2018 Kvik,
Parketti Kärhrs tammi Pale
Liesi
Integroitu, induktio, erillisuuni
Keittiön muut varusteet
Mikroaaltouuni, liesituuletin / suodatin
Keittiön työtasojen materiaali
Laminaatti
Keittiön lattiamateriaali
Parketti
Keittiön seinien materiaali
Maalattu
Kylpyhuoneen varustus
Pesukone, pesukoneliitäntä, lattialämmitys, kiinteät valaisimet
Kylpyhuoneen lattiamateriaali
Laatta
Kylpyhuoneen seinämateriaali
Kaakeli
WC-tilojen kuvaus
Yläkerran wc:ssä suihku
Varustus: lattialämmitys, suihku
Lukumäärä: 2
Lattiamateriaalit: laatta
Seinämateriaalit: kaakeli
Kodinhoitohuone
Uusittu 2022, kalusteet Topikeittiö
Varustus: lattialämmitys
Lattiamateriaalit: laatta
Seinämateriaalit: maalattu, puu
Sauna
Asunnossa on sauna
Saunan lattiamateriaali
Laatta
Saunan seinämateriaali
Puu
Makuuhuoneen kuvaus, lisätiedot ja varustus
Parketti Kärhrs tammi Pale
Lukumäärä: 2
Lattiamateriaalit: parketti
Seinämateriaalit: maalattu
Oleskelutilojen kuvaus, lisätiedot ja varustus
Parketti Kärhrs tammi Pale
Lattiamateriaalit: parketti
Seinämateriaalit: maalattu
Muut huonetilat
Alakerran käytävässä ja vaate/pukeutumishuoneessa laattalattia.
Muuta kauppaan kuuluvaa
- Pukeutumishuoneen kaapit
- Parvekkeen sohva
-Yläeteisen kenkäkaappi
Muutostyöt huoneistossa
Parvekelasitus, kestopuuterassi etupihalla
Kunto
Hyvä

KIINTEISTÖ- JA YHTIÖTIEDOT

Asuinpinta-ala
120,0 m² (120,0 m²)
Yhtiön nimi
Asunto Oy Kaarilanhelmi, Tampere
Tontin omistus
Oma
Tontin koko
1 900,00 m²
Pihan kuvaus
Piha ja terassi etelään
Käyttöönottovuosi
2003
Rakennusmateriaali
Muu, betonielementti
Kattotyyppi
Harja
Kate
Huopa
Lämmitysjärjestelmän kuvaus
Muu
Energiatodistus
Kyllä
Lisätietoja energiatodistuksesta
Voimassa 04.05.2033 saakka
Energialuokka
B2018
Tehdyt korjaukset ja remontit
2024 Terassien/talojen välialueiden puurakenteiden tarkastus ja kunnostus
2023 Energiatodistus
2023 Pensaiden hoitoleikkuu
2023 Autokatosten pistorasioiden päivitys super-suko malleihin
2023 Jätevesipumpun uusinta
2023 Palovaroittimien uusinta
2022 Yhtiön ulkovalaistus vaihdettu led-toimisiksi.
2021 Osa kodinhoitohuoneista uusittu
2021 Kylpyhuoneet remontoitu
2021 IV-nuohous
2021 Jäteaitaus
2021 Ulkomaalaus/terassien väliseinien korjaus ja maalaus, sekä piha-aitojen uusinta
2021 Katos postilaatikoille
2020 B4 kylpyhuoneen ja saunan lattian uusinta.
2019 Pensaiden alas leikkuu
2018 Sadevesiviemärien kuvaus
2017 Elementtisaumausten tarkastus
2017 Jätevesipumppaamon pumpun uusinta, etupihan ovien ja seinien puuosien
huoltomaalaus
2016 Autokatosten ja väliaitojen kunnostus, katon kuntokartoitus ja korjaukset, B 4
huippuimurin uusinta, alapohjan ja C 5 tiivistystyöt
2015 Autokatosten kunnostus, sadevesiputkiston korjaukset
2013 Sadevesikaivon kunnostus, ilmanvaihtohormien nuohous
2012 Jätepumppaamon moottorien huolto/kunnostus
2012 Ulko-ovien huolto
2011 Kuntoarvio ja PTS-ehdotus
2010 Jätepumppaamon kunnostustyö ja pumpun huolto
2007 Etu- ja takapihojen kunnostus
Tiedossa olevat tulevat korjaukset/remontit
2025 Piha ja ulkoalueet Jätepisteiden pohjan/lattian uusiminen
2024-2025 Ikkunat ja ulko-ovet Ikkuna- ja oviremontti, ikkunoiden tiivistys
2024-2025 Katon pinnoitus
Kattoremontin hankesuunnittelun aloitus 2025, hankkeen toteutus 2028-2030
2025 Välipohjan palokatkojen aukkojen korjaus
2027 Salaojien tarkastus ja kunnostus
Vesikalusteiden uusinta 2025, kyselyn perusteella
Kattokourujen puhdistus kerran vuodessa.
Ilmanvaihto IV-kanavien nuohous, huippuimurien uusinta tarvittaessa
Märkätilat Hanat ja suihkut uusitaan tarvittaessa.
C5 wc:n lattialämmitys
Autokatokset
6
Lisätietoja autonsäilytyspaikoista
Autokatoksessa sähköautonlataus
Isännöitsijäntodistuksen mukainen päivämäärä
31.12.2025
Lainat
19 130,41 €
Kiinnitykset
432 000,00 €
Isännöitsijä
Tammer-Isännöinti Oy
Otto Kurtti
Sammon valtatie 7, 33530 Tampere
044 901 9444
otto.kurtti@tammer-isannointi.fi
Kiinteistönhoito
Asukkaat
Taloyhtiössä muuta
Kaapeli-tv. Rakennus on maaperässä paalutettuna.
Huhtikuussa 2020 tehty alueella laajat maaperätutkimukset johtuen os.Tuurnankatu 14:ssä
tapahtuneesta laaja-alaisesta liukupintasortumasta. Kaupunki on saatujen tietojen
perusteella arvioinut tilannetta ja todennut ettei tilanteessa ole tullut esiin sellaisia
seikkoja, joiden perusteella kaupungille syntyisi velvoite tehdä toimenpiteitä
luonnonsuojelualueella = Vaakkolammin etelänpuoleinen alue.

MUITA TIETOJA

Kaavoitus
Asemakaava
Lisätietoa kaavoituksesta
Tampereen kaupunki, kaavoitus
Vapautuu
31.07.2026

ASUMISKUSTANNUKSET

Hoitovastike
342,00 €/kk (2,85 €/m²)
Yhtiövastike yhteensä
465,00 €
Rahoitusvastike
123,00 €/kk (1,03 €/m²)
Vesimaksu
14,00 €/hlö/kk
Muut maksut / lisätietoa maksuista
Sähkönkulutus ollut vuonna 2023 14 600 kWh ja vuonna 2024 16 900 kWh

HINTA

Myyntihinta
318 521,33 € (2 654,34 €/m²)
Velaton hinta
324 000,00 € (2 700,00 €/m²)
Velkaosuus
5 478,67 € (45,66 €/m²)
Tuurnankatu 22 - kuva 1 Tuurnankatu 22 - kuva 2 Tuurnankatu 22 - kuva 3 Tuurnankatu 22 - kuva 4 Tuurnankatu 22 - kuva 5 Tuurnankatu 22 - kuva 6 Tuurnankatu 22 - kuva 7 Tuurnankatu 22 - kuva 8 Tuurnankatu 22 - kuva 9 Tuurnankatu 22 - kuva 10 Tuurnankatu 22 - kuva 11 Tuurnankatu 22 - kuva 12 Tuurnankatu 22 - kuva 13 Tuurnankatu 22 - kuva 14 Tuurnankatu 22 - kuva 15 Tuurnankatu 22 - kuva 16 Tuurnankatu 22 - kuva 17 Tuurnankatu 22 - kuva 18 Tuurnankatu 22 - kuva 19 Tuurnankatu 22 - kuva 20 Tuurnankatu 22 - kuva 21 Tuurnankatu 22 - kuva 22 Tuurnankatu 22 - kuva 23 Tuurnankatu 22 - kuva 24 Tuurnankatu 22 - kuva 25 Tuurnankatu 22 - kuva 26 Tuurnankatu 22 - kuva 27 Tuurnankatu 22 - kuva 28 Tuurnankatu 22 - kuva 29 Tuurnankatu 22 - kuva 30 Tuurnankatu 22 - kuva 31 Tuurnankatu 22 - kuva 32 Tuurnankatu 22 - kuva 33 Tuurnankatu 22 - kuva 34 Tuurnankatu 22 - kuva 35 Tuurnankatu 22 - kuva 36 Tuurnankatu 22 - kuva 37 Tuurnankatu 22 - kuva 38