Matintie 12

Riihikoski, Pöytyä | Omakotitalo | 5h + k + ph + s + 2wc + ask.tila + pukuhuone+ autotalli

  • 115 000 €

    Velaton hinta

  • 119,5 m2

    Asuinpinta-ala

  • 220,0 m2

    Kokonaispinta-ala

  • 1972

    Rakennusvuosi

Tervetuloa tutustumaan tähän erinomaisella sijainnilla löytyvään valoisaan omakotitaloon Riihikosken keskustan tuntumassa!
Tässä vuonna 1972 rakennetussa yksikerroksisessa kodissa on tilaa ja valoa koko perheen tarpeisiin. Puurakenteinen talo, jolla on tiiliverhottu ulkoseinä, tarjoaa viihtyisän asuinympäristön isommallekin perheelle.
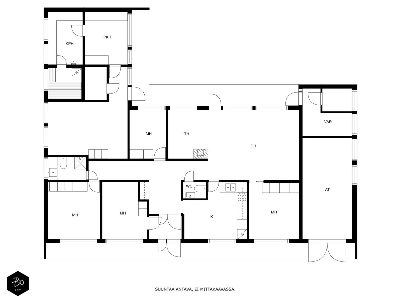
Tilasuunnittelu on tehokas, ja makuuhuoneita löytyy kaikkiaankin peräti neljä kappaletta. Tämän kodin sydän on valoisa olohuone, jonka yhteydessä on takkahuone ja täältä löytyy reilusti tilaa perheen yhteisiin hetkiin.
Saunasta pääset mukavasti vilvoittelemaan isolle ja suojaisalle takapihalle.
Talon ulkopuolelta löytyy viihtyisä piha, joka tarjoaa mukavat puitteet niin lasten leikkeihin kuin omaan rauhaan ja rentoutumiseen.
Iso askarteluhuone sopii niin harraste, työtila, kuin lasten omaksi olohuoneeksi tai leikkitilaksi.
Asunnossa myös ilmalämpöpumppu tuomassa lisä mukavuutta.
Lämmin autotalli varastoineen on ehdoton lisä tässä kokonaisuudessa.
1196m2 pihapiirissä myös erillinen kylmä autotalli/varasto rakennus.

Tässä kiinteistössä tehtyjä perusparannuksia:
-Käyttövesiputket uusittu
-Alatukipuita vaihdettu
-Lämminvesivaraaja uusittu
-Uusittu sadevesikourut
-Käyttövesiputket uusittu
-Vesikattomuutos tasakatosta harjakatoksi
Päivittämällä pintamateriaalit saat tästä juuri itsellesi sopivan kodin.

Alueen rauhallinen sijainti yhdistyy loistaviin kulkuyhteyksiin ja perheelle tärkeiden palveluiden läheisyyteen. Riihikosken yhtenäiskoulu sekä päiväkoti löytyvät kätevästi alle 300 metrin päässä kotoa ja näiden läheisyydessä sijaitsee myös Pöytyän Kisariihi ja Riihikosken Urheilukenttä.
Turkuunkin hurautat autolla noin puolessa tunnissa. Lähiympäristössä on metsää rauhoittumiseen ja luonnossa liikkumiseen, mikä antaa omaleimaiseen tunnelmaan tälle
perheystävälliselle asuinalueelle.
Älä siis epäröi, vaan tule tutustumaan tähän ihastuttavaan kotiin Riihikoskella. Täältä löydät kaiken, mitä monipuolinen ja aktiiviseen elämään sopiva perheasuminen vaatii, vehreän ympäristön ja palveluiden läheisyyden sekä mukavat yksityiskohdat, jotka tekevät kodista viihtyisän ja toimivan.

Pyydä minut myös maksuttomalle arviokäynnille, niin saat kodistasi kattavan myyntisuunnitelman sekä
välityspalkkiotarjouksen!

Nina Humelin
Asuntomyyjä, KiAT
Kaupanvahvistaja, partner
p. 040 559 7574
nina.humelin@bo.fi

Kiinnostaako tämä kohde?

Ota meihin yhteyttä tai jätä viesti

HUONEISTO

Huoneluku
5h + k + ph + s + 2wc + ask.tila + pukuhuone+ autotalli
Kerros
1
Kerroksia
1
Asuinpinta-ala
119,5 m²
Muut tilat
100,5 m²
Lisätietoja pinta-alasta
Muut tilat 100m²: varasto/askarteluhuone, pukuhuone, pannuhuone, kylpyhuone ja sauna.
Pinta-alatiedot on saatu
rakennuslupapiirustuksista eikä niitä ole tarkistusmitattu, joten ne saattavat poiketa olennaisestikin nykymääräysten mukaan mitattavista pinta-aloista.
Kauppahinta ei ole pinta-alaperusteinen.
Liesi
Sähköliesi
Keittiön muut varusteet
Liesituuletin, astianpesukone, kiinteät valaisimet, liesituuletin / suodatin
Keittiön työtasojen materiaali
Laminaatti
Keittiön lattiamateriaali
Korkki
Keittiön seinien materiaali
Tapetti
Kylpyhuoneen varustus
Pesukoneliitäntä, lattialämmitys, suihku
Kylpyhuoneen lattiamateriaali
Laatta
Kylpyhuoneen seinämateriaali
Kaakeli
WC-tilojen kuvaus
Varustus: suihkukaappi, peilikaappi, bidee-suihku
Lukumäärä: 2
Lattiamateriaalit: laatta
Seinämateriaalit: kaakeli
Sauna
Asunnossa on sauna
Saunan lattiamateriaali
Laatta
Saunan seinämateriaali
Puu
Makuuhuoneen kuvaus, lisätiedot ja varustus
Laminaatit uusittu 2021.
Yhdessä makuuhuoneessa parketti.
Lukumäärä: 4
Lattiamateriaalit: parketti, laminaatti
Seinämateriaalit: maalattu, tapetti
Oleskelutilojen kuvaus, lisätiedot ja varustus
Laminaatti uusittu 2021
Lattiamateriaalit: laminaatti
Seinämateriaalit: tapetti
Muut säilytystilat
Ulkovarasto, muu erillinen varasto
Muutostyöt huoneistossa
Alatukipuita vaihdettu 2021
Ulko-ovi ovi uusittu 2022
Lämminvesivaraaja uusittu 2021
Sadevesikourut uusittu 2021
Käyttövesiputket uusittu 2012
Vesikattomuutos 1991
Kunto
Tyydyttävä
Takka
Varaava, nuohottu 08/2025
Takkatiedot
Takka

KIINTEISTÖ- JA YHTIÖTIEDOT

Asuinpinta-ala
119,5 m² (220,0 m²)
Kiinteistötunnus
636-430-1-198
Tyyppi
Tila
Kortteli/Kiinteistön nimi
TONTTI 20:2
Tontin omistus
Oma
Tontin koko
0,12 ha
Tontin tyyppi
Tasamaatontti
Tontin kuvaus
Tie perille
Panttikirjat
200 000,00 €
Pihan kuvaus
Pihalla omenapuita ja marjapensaita
Rakennusvuosi (aloitettu)
1969
Käyttöönottovuosi
1972
Rakennusmateriaali
Puu, tiili, muu, lautaverhoilu
Muut rakennukset
Autotalli, Varasto
Rakennuksen yhteydessä autotalli.
Pihapiirissä myös erillinen kylmä autotalli/varasto rakennus. (noin 5m x 7m)
Kattotyyppi
Harja
Kate
Pelti
Katon kunto
Vesikattomuutos 1991
Lämmön jakotapa
Sähköpatterilämmitys, uuni/takka, ilmalämpöpumppu
Lämmitysjärjestelmän kuvaus
Sähkö, ilmalämpöpumppu
Ilmanvaihtojärjestelmä
Painovoimainen
Energiatodistus
Kyllä
Lisätietoja energiatodistuksesta
Energiatodistuksen voimassaoloaika 24.6.2029
Energialuokka
D2018
Vesijohto
Kunnan
Viemäri
Kunnan

MUITA TIETOJA

Kaavoitus
Asemakaava
Muut palvelut
K-Market Riihitori 900m
Sale Pöytyä 1,1km
Pöytyän Kisariihi 350m
Riihikosken Urheilukenttä 200m
Riihikosken yhtenäiskoulu 290m
Päiväkoti, Yläneentie 42, 290m
Liikenneyhteydet bussipysäkki lähellä, sujuvat yhteydet omalla autolla ja hyvät pyöräilytiet

ASUMISKUSTANNUKSET

Muut maksut / lisätietoa maksuista
Sähkön kokonaiskulutus nykyisillä asukkailla ollut noin 16000kWh/ vuosi.
Nykyisillä asukkailla vedenkulutus ollut noin 75m3 (2022)
Esitetyt asumiskustannukset voivat olla pienempiä tai suurempia riippuen asukasmäärästä, asumistottumuksista sekä palveluntarjoajasta.
Sähköisten panttikirjojen siirtomaksu 19€/kpl
Varainsiirtovero 3%.
Lainhuudatuskustannukset.
Kaupanvahvistajan palkkio.
Kiinteistövero
268,18 €
Puhtaanapito
10 €

HINTA

Myyntihinta
115 000,00 €
Velaton hinta
115 000,00 €
Matintie 12 - kuva 1 Matintie 12 - kuva 2 Matintie 12 - kuva 3 Matintie 12 - kuva 4 Matintie 12 - kuva 5 Matintie 12 - kuva 6 Matintie 12 - kuva 7 Matintie 12 - kuva 8 Matintie 12 - kuva 9 Matintie 12 - kuva 10 Matintie 12 - kuva 11 Matintie 12 - kuva 12 Matintie 12 - kuva 13 Matintie 12 - kuva 14 Matintie 12 - kuva 15 Matintie 12 - kuva 16 Matintie 12 - kuva 17 Matintie 12 - kuva 18 Matintie 12 - kuva 19 Matintie 12 - kuva 20 Matintie 12 - kuva 21 Matintie 12 - kuva 22 Matintie 12 - kuva 23 Matintie 12 - kuva 24 Matintie 12 - kuva 25