Näkinkaari 4

Laurinlahti, Espoo | Paritalo | 3h, k, kph, s, wc, parveke, piha, autokatos

  • 295 000 €

    Velaton hinta

  • 98,0 m2

    Asuinpinta-ala

  • 490,00 €/kk

    Hoitovastike

  • 1985

    Rakennusvuosi

Tervetuloa kotiin, joka hurmaa ainutlaatuisilla eritasoratkaisuillaan ja mahdollisuudellaan tehdä siitä juuri oman näköinen unelmakoti!

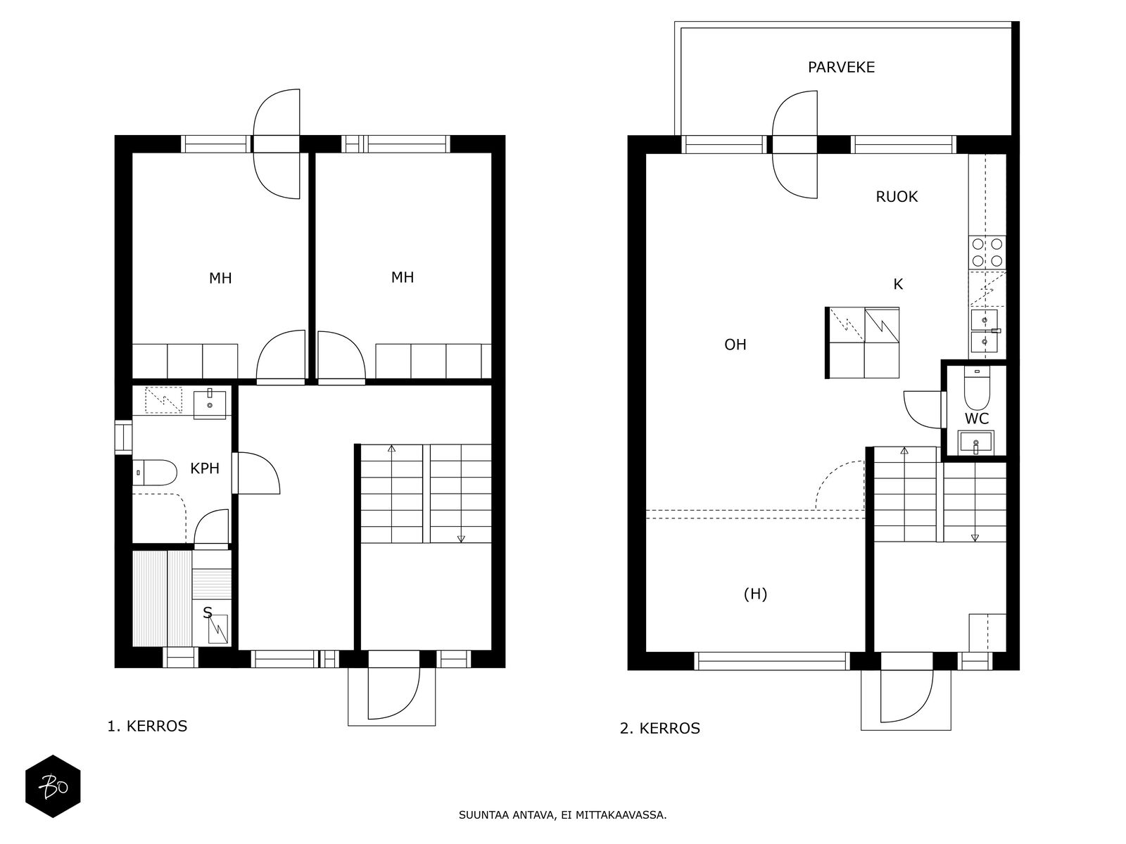
Näkinkaarella sijaitseva paritalohuoneisto koostuu kahdesta makuuhuoneesta, olohuoneesta, keittiöstä, kylpyhuoneesta, saunasta, wc:stä, parvekkeesta ja viihtyisästä pihasta. Tämä koti tarjoaa tilat käytännölliseen asumiseen, mutta vaatii päivitystä vastatakseen nykyajan vaatimuksia. Kolmannen makuuhuoneen voi halutessaan lohkaista olohuoneesta alkuperäisen pohjaratkaisun mukaisesti. Parveke ja suojaisa piha-alue tarjoavat lisätilaa arkeen ja mahdollisuuden nauttia ulkoilmasta omassa rauhassa. Huoneiston käytössä on autokatospaikka.

Taloyhtiö sijaitsee omalla tontilla keskellä vehreää Laurinlahtea. Asuinalue tarjoaa monipuoliset palvelut ja erinomaiset ulkoilumahdollisuudet, jotka tekevät tästä kodista ihanteellisen valinnan lapsiperheelle. Rauhallinen ja merellinen ympäristö, jossa koulut ja päiväkodit ovat lähellä, luo turvallisen ja viihtyisän paikan elää ja kasvaa. Lähikaupat, kahvilat ja kirjastot turvaavat arjen tekemällä päivittäiset askareet sujuviksi. Metroasema ja kauppakeskus Lippulaiva ovat vain 800 metrin päässä.

Tule katsomaan asuntoa ja tee unelmistasi totta - tämä monien mahdollisuuksien koti odottaa juuri sinua!

Kiinnostaako tämä kohde?

Ota meihin yhteyttä tai jätä viesti

HUONEISTO

Osakkeet
578-675
Hallintamuoto
Asunto-osakeyhtiö
Huoneluku
3h, k, kph, s, wc, parveke, piha, autokatos
Kerros
1-2
Kerroksia
2
Asuinpinta-ala
98,0 m²
Muut tilat
0,0 m²
Lisätietoja pinta-alasta
Pinta-ala ei ole tarkistusmitattu. Edellä mainittu pinta-ala saattaa tämän ikäisessä kohteessa poiketa olennaisestikin huoneiston nykyisten ja rakentamisaikaisen mittaustapojen ja standardien mukaan laskettavasta pinta-alasta. Huoneiston todellinen pinta-ala voi siis olla yhtiöjärjestyksessä, isännöitsijäntodistuksessa ja esitteessä mainittua pienempi tai suurempi. Yhtiöjärjestyksen mukainen. Isännöitsijäntodistuksen mukainen.
Näkymät
Vehreät näkymät, ikkunat kaakkoon ja luoteeseen. Parveke, terassi ja piha kaakkoon.
Liesi
Keraaminen
Keittiön muut varusteet
Astianpesukone, liesituuletin / hormi
Keittiön työtasojen materiaali
Laminaatti
Keittiön lattiamateriaali
Laatta
Keittiön seinien materiaali
Maalattu
Pesutilojen kuvaus, lisätiedot ja varustus
Varustus: wc-istuin, suihku, suihkuseinä, allaskaappi, peili, pesukoneliitäntä, lattialämmitys
Kylpyhuoneen lattiamateriaali
Laatta
Kylpyhuoneen seinämateriaali
Kaakeli
WC-tilojen kuvaus
Varustus: wc-istuin, bidee-suihku, allaskaappi, peilikaappi
Lattiamateriaalit: laatta
Seinämateriaalit: kaakeli
Sauna
Asunnossa on sauna
Saunan lattiamateriaali
Laatta
Saunan seinämateriaali
Puu
Makuuhuoneen kuvaus, lisätiedot ja varustus
Molemmissa makuuhuoneissa vaatekaapistot.
Lukumäärä: 2
Lattiamateriaalit: parketti
Seinämateriaalit: maalattu, tapetti
Oleskelutilojen kuvaus, lisätiedot ja varustus
Lattiamateriaalit: parketti
Seinämateriaalit: maalattu, tapetti
Muutostyöt huoneistossa
2024 kiuas uusittu
2018 yläkerran wc kunnostettu
2013 yläkerran lattia oikaistu, parketti ja laattalattia keittiöön
Kunto
Tyydyttävä

KIINTEISTÖ- JA YHTIÖTIEDOT

Asuinpinta-ala
98,0 m² (98,0 m²)
Yhtiön nimi
Asunto Oy Rakentajain Näkinkaari 4
Tontin omistus
Oma
Tontin koko
2 715,00 m²
Pihan kuvaus
Piha-alueen hallintaperustetta ei ole mainittu yhtiöjärjestyksessä.
Käyttöönottovuosi
1985
Rakennusmateriaali
Tiili
Kattotyyppi
Aumakatto
Kate
Peltikate
Lämmitysjärjestelmän kuvaus
Kaukolämpö
Energiatodistus
Kyllä
Lisätietoja energiatodistuksesta
Viimeinen voimassaolopäivä 18.10.2027.
Energialuokka
D2013
Tehdyt korjaukset ja remontit
2009 Lämmönvaihtimen uusinta, A, B ja E2 asuntojen kylpyhuoneiden saneeraus
2012 ja 2025 huippuimureiden uusinta
2014 C-talon terassin kosteusvaurioiden korjaaminen
2014 - 2015 E1 ja 2 huoneistojen yläkerran lattioiden oikaisu
2017 Kattojen ja sadevesijärjestelmän uusiminen
2018 Leikkikentän penkereen uusiminen
2019 Raitisilmaventtiileiden uusiminen
2021 - 2022 C-talon terassin seinän pinnoitteen uusiminen
2021 Vesimittareiden uusiminen
2025 Asunnon C 1 alakerran huoneen kosteusvaurion korjaus, asunnon F 1 yläkerran kylpyhuoneen vesivahingon korjaus, ilmanvaihtokanavien puhdistus, neljä huippuimuria uusittu
Tiedossa olevat tulevat korjaukset/remontit
Yhtiössä tullaan tekemään kuntokartoitus.
D1 asunnon vesivahingon korjaus (kustannusarvio 15 000 - 20 000 euroa, rahoitetaan todennäköisesti ylimääräisellä yhtiövastikkeella)
Yhtiökokouksessa on keskusteltu käyttövesiputkien ja salaojien korjaamisesta sekä ikkunoiden ja ovien uusimisesta.
Kuluvelvoitteet
Yhtiökokous 30.06.2025 päätti päätti enintään 30 000.00 € lainan ottamisesta ja valtuutti hallituksen neuvottelemaan lainaehdot sekä allekirjoittamaan laina- ja panttausasiakirjat.
Lainaa otetaan vain, jos yhtiövastikkeen korotus 01.01.2026 alkaen ja ylimääräisen yhtiövastikkeen keräys syyskuussa 2025 eivät riitä talouden vakauttamiseksi.

Yhtiökokous 29.8.2024 päätti hankkia kolmeen nykyiseen sähkötolppaan sähköauton latausvalmius. Tolpan haltija hankkii sähkövirran kulutusmittarin, jonka perusteella taloyhtiö veloittaa häntä sähkön käytöstä. Nyt tarvetta kolmelle tolpalle. Lisää hankitaan, kun sähköautoja hankitaan lisää.
Autokatokset
10
Lisätietoja autonsäilytyspaikoista
Huoneiston käytössä on yksi autokatospaikka. Autotallit 5 kpl omilla osakkeilla.
Isännöitsijäntodistuksen mukainen päivämäärä
26.05.2025
Lainat
26 932,34 €
Kiinnitykset
243 400,00 €
Isännöitsijä
Asukasisännöitsijä Jari Lahti, p. 0406312103
jarbuusi@aol.fi
Kiinteistönhoito
Asukkaat
Taloyhtiössä muuta
Koneellinen poistoilmanvaihto, huoneistokohtaiset varastot, pyörävarasto

MUITA TIETOJA

Kaavoitus
Asemakaava
Lisätietoa kaavoituksesta
Espoon kaupunki, https://kartat.espoo.fi/
Vapautuu
Kaupanteosta noin 3 kk kuluessa

ASUMISKUSTANNUKSET

Hoitovastike
490,00 €/kk (5,00 €/m²)
Yhtiövastike yhteensä
686,44 €
Rahoitusvastike
196,44 €/kk (2,00 €/m²)
Muut maksut / lisätietoa maksuista
Vesiennakko 25 €/ hlö/ kk, voidaan korottaa jos näyttää ettei vesiennakko riitä. Vesimaksu tasataan kerran vuodessa.

Kotivakuutus henkilökohtaisten sopimusehtojen mukaan.
Käyttösähkö kulutuksen mukaan.

Ostaja maksaa varainsiirtoveron 1,5 % velattomasta kauppahinnasta kaupantekotilaisuudessa.

Taloyhtiön osakeluettelo on siirretty huoneistotietojärjestelmään. Ostajan tulee hakea omistusoikeuden rekisteröintiä Maanmittauslaitokselta kaupanteon jälkeen. Ostaja vastaa omistusoikeuden rekisteröintikustannuksista, mahdollisista osakekirjan mitätöinnistä aiheutuvista kustannuksista sekä mahdollisesta hakemusmaksun korotuksesta. Ostajan pankin ostajalta mahdollisesti veloittamista kaupantekoon, omistusoikeuden rekisteröintiin tai panttausmerkinnän hakemiseen liittyvistä kustannuksista ostaja saa tiedon pankiltaan.

HINTA

Myyntihinta
290 867,59 € (2 968,04 €/m²)
Velaton hinta
295 000,00 € (3 010,20 €/m²)
Velkaosuus
4 132,41 € (42,17 €/m²)
Näkinkaari 4 - kuva 1 Näkinkaari 4 - kuva 2 Näkinkaari 4 - kuva 3 Näkinkaari 4 - kuva 4 Näkinkaari 4 - kuva 5 Näkinkaari 4 - kuva 6 Näkinkaari 4 - kuva 7 Näkinkaari 4 - kuva 8 Näkinkaari 4 - kuva 9 Näkinkaari 4 - kuva 10 Näkinkaari 4 - kuva 11 Näkinkaari 4 - kuva 12 Näkinkaari 4 - kuva 13 Näkinkaari 4 - kuva 14 Näkinkaari 4 - kuva 15 Näkinkaari 4 - kuva 16 Näkinkaari 4 - kuva 17 Näkinkaari 4 - kuva 18 Näkinkaari 4 - kuva 19 Näkinkaari 4 - kuva 20 Näkinkaari 4 - kuva 21 Näkinkaari 4 - kuva 22 Näkinkaari 4 - kuva 23 Näkinkaari 4 - kuva 24