Kengittäjäntie 3

Oulunkylä, Helsinki | Rivitalo | 5h+k+2kph+erillinen wc+vh+ask.h+lasitettu parveke+piha (yj. 5h+k+ruok.+saunaos.)

  • 447 000 €

    Velaton hinta

  • 148,0 m2

    Asuinpinta-ala

  • 702,50 €/kk

    Hoitovastike

  • 1980

    Rakennusvuosi

Löydä unelmiesi koti Oulunkylästä!

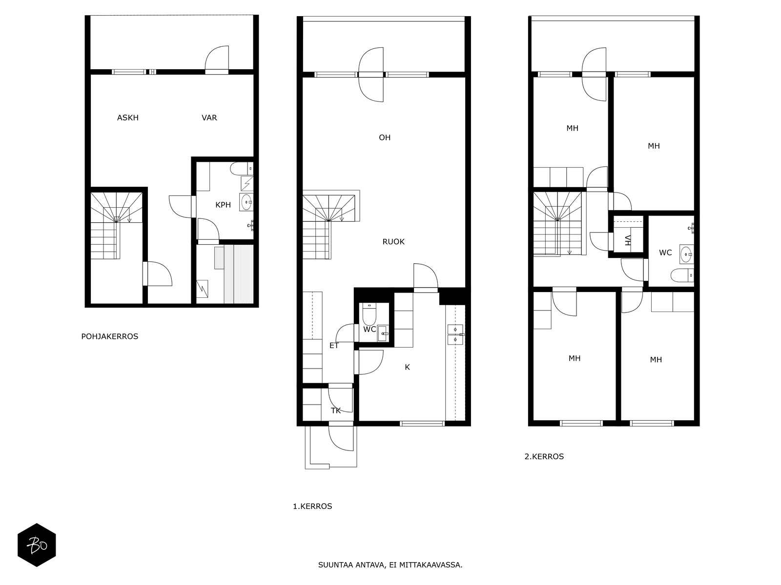
Tervetuloa tutustumaan tähän kolmen kerroksen perheasuntoon halutulle ja vehreälle Oulunkylän pientaloalueelle, jossa vuonna 1980 valmistunut rivitalokoti odottaa sinua! Tilava 148 m2 kolmen kerroksen huoneisto tarjoaa ihanteellisen ympäristön perheellesi, jossa on mukavasti tilaa elämiselle.

Sisääntulo kerroksessa sijaitsee olohuone sekä ruokailutila, josta käynti lasitetulle parvekkeelle ja erillinen keittiö on ihan omassa rauhassa. Yläkerta avautuu neljä makuuhuoneen voimin ja täällä on myös kylpyhuone ja vaatehuone. Pohjakerrokseen saunan ja kylpyhuoneen lisäksi on huone, joka muuntuu tarpeiden mukaan ja tarjoaa monipuolisia mahdollisuuksia harrastuksiin, rentoutumiseen tai perheen nuorison kokoontumispaikaksi. Kodin kaikissa kerroksissa on erilliset wc:t, joten arjen sujuvuus on taattu. Tämä päätyhuoneisto tarjoaa oman rauhan ja kauniin pihapiirin. Kesällä aurinkoisella takapihalla on oiva paikka rentoutumiseen sekä grillailuun ystävien ja perheen kesken.

Tarjolla olisi mukavaa asumista kodissa, joka on suorastaan lapsiperheen unelma, sillä alueen päiväkodit ja koulut ovat lähietäisyydellä. Rauhallinen sijainti pientaloalueella tuo turvaa pienemmillekin kulkijoille. Luonto, hyvät liikunta- ja lenkkeilymaastot lähtevät kotisi nurkalta ja palvelevat sekä lenkkeilijää että lemmikin omistajaa. Monipuolinen ulkoilualue on liikkuvan ihmisen unelmapaikka. Täällä liikut myös julkisilla helposti, mm. bussilla ja raidejokerille sekä juna-asemalle on lyhyt kävelymatka. Matka Helsingin keskustaan taittuu 10 minuutissa.

Tervetuloa tutustumaan tarkemmin, tavoitat minut joustavasti myös iltaisin ja viikonloppuisin. Esittelen sinulle tätä kivaa kotia erittäin mielelläni!

Nähdään näytöllä!

TÄMÄN KODIN MYY

TEIJA MIKKOLA

Myynti ja esittelyt:

Teija Mikkola | 0400 434 208 | teija@bo.fi

Harkitsetko oman asuntosi myyntiä? Pyydä minut sitoumuksetta maksuttomalle arviokäynnille. Autan mielelläni!

Kiinnostaako tämä kohde?

Ota meihin yhteyttä tai jätä viesti

HUONEISTO

Osakkeet
2768-3070
Hallintamuoto
Asunto-osakeyhtiö
Huoneluku
5h+k+2kph+erillinen wc+vh+ask.h+lasitettu parveke+piha (yj. 5h+k+ruok.+saunaos.)
Kerros
1-3
Kerroksia
3
Asuinpinta-ala
148,0 m²
Muut tilat
0,0 m²
Lisätietoja pinta-alasta
Pinta-aloja ei ole tarkistusmitattu.
Mainittu pinta-ala saattaa poiketa tämän ikäisessä kohteessa olennaisesti nykyisten standardien mukaan laskettavasta asuinpinta-alasta. Todellinen asuinpinta-ala voi olla yhtiörjestyksessä, isännöitsijäntodistuksessa ja esitteessä mainittua pienempi tai suurempi.

Tämän myytävän huoneiston pinta-ala on yhtiöjärjestyksen mukaan 148 m². Jyvitys lasketaan hoitovastikkeen ja pääomavastikkeen kohdalla 140,5 m² mukaan.
Yhtiöjärjestyksen 5 § mukaan: Osakkeenomistajat suorittavat yhtiölle hallitsemistaan
huoneistoista vastiketta, jonka suuruuden yhtiökokous määrää. Vastikkeen tulee olla kaikissa huoneistoissa yhtä suuri edellä 4 §:ssä mainittuja jyvitettyjä lattiapinta-alaneliömetrejä kohti,
mikäli seuraavasta pykälästä ei muuta johdu. Yhtiöjärjestyksen mukainen. Isännöitsijäntodistuksen mukainen.
Parveke
Lasitettu
Keittiön kuvaus, lisätiedot ja varustus
Vaaleat keittiön kaapistot, korkeat jääkaappi ja pakastekaappi, astianpesukone, keraaminen liesi/uuni ja liesituuletin.
Laskutasot ovat osin terästä ja puuta.
SEINÄT: maalattu
LATTIA: laminaattia
Pesutilojen kuvaus, lisätiedot ja varustus
Yläkerran kylpyhuoneessa, suihku, peilikaappi, pesuallas, allaskaappi, wc-istuin ja käsi bideesuihku.
SEINÄT: laattaa
LATTIA: laattaa
Alakerran Kylpyhuoneessa, suihku, peilikaappi, pesuallas, allaskaappi, wc-istuin ja kuivauspatteri.
Tässä tilassa pesukoneliitäntä.
SEINÄT: laattaa
LATTIA: laattaa
Lattialämmitys suihkun kohdalla.
WC-tilojen kuvaus
Tulokerroksessa on erillinen wc, jossa peilikaappi, pesuallas, wc-istuin ja käsi bideesuihku.
SEINÄT: laattaa/maalia
LATTIA: laattaa
Sauna
Asunnossa on sauna
Saunan kuvaus, lisätiedot ja varustus
Lauteet, sähkökiuas ja kuituvalot.
SEINÄT:paneelia
LATTIA: laattaa
Makuuhuoneen kuvaus, lisätiedot ja varustus
Neljä makuuhuonetta, jotka sijaitsevat yläkerrassa. Kolmessa makuuhuoneessa on komerot ja yläkerrassa on vaatehuone.
Päämakuuhuoneesta on käynti lasitetulle parvekkeelle.
SEINÄT: maalattu
LATTIA: parkettia
Oleskelutilojen kuvaus, lisätiedot ja varustus
Olohuoneesta on käynti lasitetulle parvekkeelle.
SEINÄT: maalattu
LATTIA: parkettia
Muut huonetilat
Alakerrassa on askartelutila, josta on käynti takapihalle/terassille.
SEINÄT: osin maalattu
LATTIA: laminaattia (maalattu valkoiseksi)
Muuta kauppaan kuuluvaa
Kiinteät valaisimet, kiinteät kaapit ja komerot ja sälekaihtimet ikkunoissa joihin ne on jo asennettu.
Muutostyöt huoneistossa
02.2019 suihkuseinän asennus.
Kunto
Tyydyttävä

KIINTEISTÖ- JA YHTIÖTIEDOT

Yhtiön nimi
Asunto Oy Kengittäjäntie 3
Tontin omistus
Oma
Tontin koko
4 396,10 m²
Rakennusvuosi (aloitettu)
1980
Käyttöönottovuosi
1980
Rakennusmateriaali
Betoni
Kattotyyppi
Tasakatto
Kate
Huopa
Lämmitysjärjestelmän kuvaus
Kaukolämpö, muu
Tehdyt korjaukset ja remontit
2025 KLV-kuntotutkimus (käyttövesi-, lämmitys- ja viemärijärjestelmien kuntotutkimus), kuntoarvio,
porareikätutkimus. Ulko-ovien ja lukituksen uusiminen.
2023 Ilmanvaihtokanavien nuohous.
2022 Talo 3, päätyseinäelementin korjaus.
2021 Leikkivälineiden asennus, piha-aitojen huoltomaalaus, kattoikkunakuilujen korjaus,
parvekeremontti, elementtisaumojen uusiminen, salaoja ja pohjaviemäreiden huuhtelu ja kuvaus.
2020 VSS tilan tiiveyskoe.
2019 Salaojajärjestelmän uusiminen, alaparkkipaikan sähkölämmitystolppien, piha-alueen valaistuksen uusiminen, asfaltoinnin uusiminen, piha-aitojen ja varastokoppien uusiminen ja pintavesien johtamisen rakentaminen.
2018 Parvekeremontin suunnittelu, vesikaton uusiminen ja huippuimureiden uusiminen, kattoikkunoiden uusiminen.
2017 Huippuimuroiden uusinta ja ilmanvaihdon perussääntö.
2016 Jätevesipumppaamo.
2014 Vesikattojen huolto/ylösnostojen tiivistykset, julkisivun valkoisten betonipintojen maalaus, sadevesisyöksyjen ja tikkaiden uusinta, lämmönsiirrin, venttiilisaneeraus.
2013 Kuntoarvio ja pts. sadevesikaivojen huuhtelu, julkisivujen pesu ja suojakäsittely.
2012 Alaparkkipaikan sähköjen ohjaus.
2009 Ikkunat, parveke- ja varasto-ovet.
2007 Liikuntasaumat.
2005 Piha-aidat, ulkovarasto ja ovikatokset.
Tiedossa olevat tulevat korjaukset/remontit
Selvitys kunnossapitotarpeesta seuraavalle viidelle vuodelle 2024 - 2029:
2024 - 2025 lukituksen uusiminen, ulko-ovien uusiminen (tehty)
2025 vesi- ja viemärijärjestelmän kuntotutkimus ja kuntoarvion päivitys ja märkätilakartoitukset (tehty)
2025 palovaroittimien uusiminen
2026 - 2029 päivitetään kuntoarvion teettämisen jälkeen.
Sähköpistokepaikat
16
Lisätietoja autonsäilytyspaikoista
Yj. mukaan: Kunkin huoneiston käyttöön on varattu yksi (1) autopaikka yhtiön
pysäköintipaikalla.
Isännöitsijäntodistuksen mukainen päivämäärä
31.12.2025
Lainat
210 157,62 €
Kiinnitykset
820 000,00 €
Isännöitsijä
Helsingin Seudun Isännöitsijät Oy
Marko Vuoristo
Gsm 040 772 3116
marko.vuoristo@hsi.fi
asiakaspalvelu@hsi.fi
Kiinteistönhoito
Huoltoyhtiö
Taloyhtiössä muuta
Väestönsuoja. Ilmalämpöpumpun asentaminen mahdollista, edellyttää kuitenkin muutostyöilmoitus tekoa. Parvekelasitukset osakkaan vastuulla. Huoneistot 10, 11 & 12 ovat kolmikerroksisia, muut huoneistot kaksikerroksisia.

MUITA TIETOJA

Kaavoitus
Asemakaava
Lisätietoa kaavoituksesta
Helsingin Kaupunki, kartta.hel.fi | aineistot | kaavoitus ja liikennesuunnittelu.
Puh. 09 310 1673.
Vapautuu
2 kk kaupan teosta tai sopimuksen mukaan

ASUMISKUSTANNUKSET

Hoitovastike
702,50 €/kk (4,75 €/m²)
Yhtiövastike yhteensä
881,85 €
Rahoitusvastike
179,35 €/kk (1,21 €/m²)
Vesimaksu
27,00 €/hlö/kk
Muut maksut / lisätietoa maksuista
Varsinaisessa yhtiökokouksessa 8.5.2025 valtuutettiin hallitus perimään/jättää perimättä tarvittaessa enintään kaksi ylimääräistä hoitovastiketta taloudellisen tilanteen niin vaatiessa/salliessa. Valtuutus on voimassa seuraavaan varsinaiseen yhtiökokoukseen saakka. Päätettiin rahastoida pääomavastikkeista ja lainaosuusuorituksista lainanlyhennyksen verran.

Varainsiirtovero 1,5 % velattomasta kauppahinnasta. Sähkösopimus ja kotivakuutus omien sopimusehtojen mukaisesti.

Yhtiö on siirtänyt osakkeet sähköiseen huoneistotietojärjestelmään, osakekirja on silti paperinen.
Ostajan tulee hakea omistusoikeuden rekisteröintiä Maanmittauslaitokselta kaupan jälkeen. Ostaja vastaa omistusoikeuden rekisteröintikustannuksista, mahdollisista osakekirjan mitätöinnistä aiheutuvista kustannuksista sekä mahdollisesta hakemusmaksun korotuksesta. Ostajan pankin ostajalta mahdollisesti veloittamista kaupantekoon, omistusoikeuden rekisteröintiin tai panttausmerkinnän hakemiseen liittyvistä kustannuksista ostaja saa tiedon pankiltaan.
Autopaikka
10,00 €/kk

HINTA

Myyntihinta
426 404,48 € (2 881,11 €/m²)
Velaton hinta
447 000,00 € (3 020,27 €/m²)
Velkaosuus
20 595,52 € (139,16 €/m²)
Kengittäjäntie 3  - kuva 1 Kengittäjäntie 3  - kuva 2 Kengittäjäntie 3  - kuva 3 Kengittäjäntie 3  - kuva 4 Kengittäjäntie 3  - kuva 5 Kengittäjäntie 3  - kuva 6 Kengittäjäntie 3  - kuva 7 Kengittäjäntie 3  - kuva 8 Kengittäjäntie 3  - kuva 9 Kengittäjäntie 3  - kuva 10 Kengittäjäntie 3  - kuva 11 Kengittäjäntie 3  - kuva 12 Kengittäjäntie 3  - kuva 13 Kengittäjäntie 3  - kuva 14 Kengittäjäntie 3  - kuva 15 Kengittäjäntie 3  - kuva 16 Kengittäjäntie 3  - kuva 17 Kengittäjäntie 3  - kuva 18 Kengittäjäntie 3  - kuva 19 Kengittäjäntie 3  - kuva 20 Kengittäjäntie 3  - kuva 21 Kengittäjäntie 3  - kuva 22 Kengittäjäntie 3  - kuva 23 Kengittäjäntie 3  - kuva 24 Kengittäjäntie 3  - kuva 25 Kengittäjäntie 3  - kuva 26 Kengittäjäntie 3  - kuva 27 Kengittäjäntie 3  - kuva 28 Kengittäjäntie 3  - kuva 29 Kengittäjäntie 3  - kuva 30 Kengittäjäntie 3  - kuva 31