Puolaharju 11a

Marjaniemi, Helsinki | Omakotitalo | Oh, k, 3 x mh, 1 mh/kirjasto, uima-allashuone, pk, ps, sauna, khh, v, 2xwc, erillinen autotalli, v.

  • 690 000 €

    Velaton hinta

  • 199 m2

    Asuinpinta-ala

  • 229 m2

    Kokonaispinta-ala

  • 1958

    Rakennusvuosi

Kun arvostat 50–60-luvun arkkitehtuuria ja hyvin tehtyjä peruskorjauksia!

Tämä aikansa arkkitehtuuriin nojaava, kahteen kerrokseen rakentuva omakotitalo tarjoaa harvinaisen yhdistelmän väljyyttä ja toimivuutta. Kokonaisuus on säilyttänyt aikakautensa parhaat piirteet, mutta muokattu ja modernisoitu erinomaisesti nykyajan tarpeisiin.

Taloon on tehty paljon peruskorjauksia, mm käyttövesiputket uusittu, viemärit sukitettu, sähköt uusittu talossa, aurinkopaneelit lisätty ja tehty myös ilmanvaihtoremontti sekä julkisivut ja salaojaremontti.

Erityistä tässä kodissa on sen arjen luksus: oma uima-allasosasto, tilavat sauna- ja pesutilat, kodinhoitohuone ja kaksi erillistä WC:tä tuovat sujuvuutta ja viihtyisyyttä elämään. Talossa on viihtyisät terassit ja Drop-palju.

Kaikki on käytännöllisesti sijoiteltu, ja tilaratkaisuissa on ajateltu niin arkea kuin tilantarvetta elämän eri vaiheissa.

Talo on kuntotarkastettu 05/2025.

Suojaisa, vehreä piha-alue ympäröi taloa ja tarjoaa sekä yksityisyyttä että mahdollisuuksia yhdessäoloon. Piha on selkeälinjainen ja helppohoitoinen, ja kahden auton autotalli viimeistelee toimivan kokonaisuuden – harvinaisuus Helsingissä.

Marjaniemi on rauhallinen ja arvostettu alue, jossa yhdistyvät luonnonläheisyys ja hyvät yhteydet. Läheltä löytyvät koulut, päiväkodit, ulkoilumaastot ja palvelut. Keskustaan pääsee sujuvasti niin julkisilla kuin omalla autolla.

Tämä koti tarjoaa enemmän kuin hyvät puitteet – se tarjoaa tilaa elämälle.

Virpi Romu
Myyntijohtaja, Ullanlinna | Kiinteistönvälittäjä LKV, partner
040 061 0018 | virpi@bo.fi

Kiinnostaako tämä kohde?

Ota meihin yhteyttä tai jätä viesti

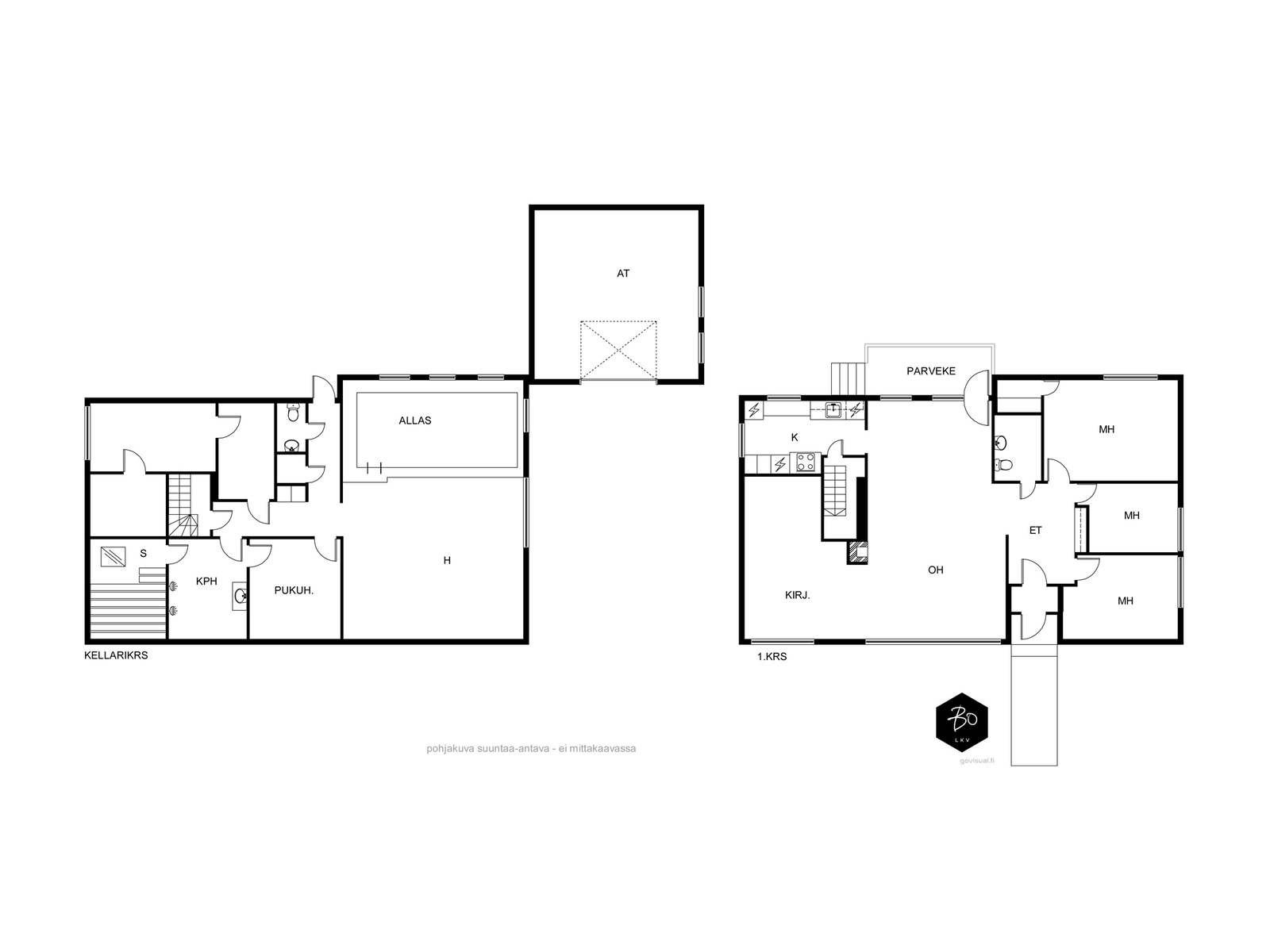
HUONEISTO

Huoneluku
Oh, k, 3 x mh, 1 mh/kirjasto, uima-allashuone, pk, ps, sauna, khh, v, 2xwc, erillinen autotalli, v.
Kerros
1-2
Kerroksia
2
Asuinpinta-ala
199,0 m²
Muut tilat
30,0 m²
Lisätietoja pinta-alasta
Tarkistusmittausrap. Sustera Group 22.5.2025.
Yläkerta huoneistoala 102,14 m²
Alakerta (kaikki tilat yht.) 97,18 m²
Autotalli 30,08 m²

Helsingin epävirallisen rakennus- ja huoneistorekisteriotteen muk. huoneistoala 112 m² ja kerrosala 110 m². Tarkistusmitattu.
Keittiön kuvaus, lisätiedot ja varustus
Keittiö uusittu kokonaan 2010. Kvänum keittiö: jalavakaapistot. Taso Bianco Carrara marmori 20 mm. Laitteet: lnduktiokeittotaso
(Siemens 2024) ja astianpesukone Husqvarna (2021). Höyryuuni (Siemens), mikro-yhdistelmäuuni (Siemens), Jääkaappi-pakastin (Samsung 2021). Korkea kaappi hyllymekanismilla. Liesituuletin. Lattiamateriaali linoleumlaatta (Marmoleum Qlick).
Keittiön seinien materiaali
Maalattu, puu
Pesutilojen kuvaus, lisätiedot ja varustus
Pesuhuone remontoitu kokonaan 2018: 2 suihkua, Durat lavuaari,
vesikiertoinen rättipatteri. Seinät ja lattia laatoitettu. Lattiassa
sähköinen lattialämmitys. Vesiputket, lattiakaivo. Asbestitarkastuksessa
seinissä asbestia, joka poistettu.
Pukuhuone: Laattalattia 1991, maanvastainen seinä laatoitettu (2014),
katto ja seinät paneloitu. Sähkökäyttöinen rättipatteri. Ei lattialämmitystä.
Kylpyhuoneen lattiamateriaali
Laatta
Kylpyhuoneen seinämateriaali
Kivi
WC-tilojen kuvaus
Kaksi erillistä wc:tä.

YK wc: Seinät kivi-laatoitettu, Lattia vesieristetty ja laatoitettu
(2017). Vesikiertoinen lattialämmitys. Svedberg peili ja allas, Ikea
laatikostot ja korkea kaappi (2017). Vesiputket, kraana ja bidee-suihku
(2017)
AK wc: uusittu kokonaan 2017: Laatta lattia, maalattu/kaakeloitu seinät,
pesuallas/-kaappi ja peili, wc-istuin, putket ja lattiakaivo, patteri
(2017). Viemäri (2019).
Lattiamateriaalit: laatta
Seinämateriaalit: kivi, kaakeli, maalattu
Kodinhoitohuone
Kodinhoitohuone uusittu kauttaaltaan 2018. Lattiat, seinät, katot, kaapit, valaistus, ilmastointi, allas, sähköt.
Vesikiertoinen lattialämmitys.
Varustus: pesukoneliitäntä, pesuallas, lattialämmitys, lattiakaivo, pyykkikaapit
Lattiamateriaalit: laatta
Seinämateriaalit: kaakeli, maalattu
Sauna
Asunnossa on sauna
Saunan kuvaus, lisätiedot ja varustus
Seinät paneloitu ja lauteet uusittu (2001), Lattia vesieristetty
ja laatoitettu ja lattialämmitys (2017).
Saunan lattiamateriaali
Laatta
Saunan seinämateriaali
Puu
Makuuhuoneen kuvaus, lisätiedot ja varustus
3-4 makuuhuonetta. V. 2010 maalattu seinät, katot ja uusittu parketit.
Lattiamateriaalit: parketti
Seinämateriaalit: maalattu
Oleskelutilojen kuvaus, lisätiedot ja varustus
Olohuoneen pinnat uusittu 2010. Seinät maalattu, Katto levytetty, tammiparketti. Sähköt ja tietoliikenneyhteydet uusittu (2010). Antenni TV, Elisan ADSL, Talon sisällä cat6-kaapeli kaikkiin asuinhuoneisiin.
Olohuoneen yksi seinä tiiltä, maalattu.
Lattiamateriaalit: parketti
Seinämateriaalit: maalattu
Muut huonetilat
Uima-allas kellarikerroksessa (vastavirtalaite ei toimi). Koneisto uusittu 2010. Drop palju/poreallas terassilla.
Tuulikaappi, jossa sähköinen lattialämmitys.
Kellarikerroksessa pannuhuone, jossa mm. kaukolämpölaitteet. Autotalli. Roskakatos-varasto.
Muuta kauppaan kuuluvaa
Baaritiski ja jakkarat. Pukuhuoneen pöytä ja pukuhuoneen jakkarat. Yläkerran sälekaihtimet.
Uima-allaspeite. llmalämpöpumppu.
Muutostyöt huoneistossa
1972 Kellarikerros: mm. viemäröinti, vesijohdot ja sähköt. Uima-allasosasto ja sauna, pesuhuone ja pukuhuone. Lisäksi rakennettiin wc ja "konehuone".
1991 Uima-allas ja koko alakerta laatoitettiin uudestaan.
2001 Sauna uusittiin ja rakennettiin kodinhoitohuone.
2000 Ikkunat. 2001 Kaukolämpö.
2010 Salaojitus ja vedeneritys uusittu, keittiö uusittu, lattiat uusittu ja pintaremontti
2013 Autotalli ja pihan muurin purku, sähköt ja tietoliikenne uusittu
2014 Terassit, Drop palju/poreallas, julkisivumaalaus, roskakatos, autotallin katon maalaus
2015 Alakerran pukuhuoneen seinän laatoitus
2017 Uusittu käyttövesiputket, lämpöpatterit ja -putket, alakerran pesutilat, asbestin poisto, alakerran pintaremonttia, kodinhoitohuoneen remonttia, alakerran sähkötöitä, kaukolämmön osakorjaus, yläkerran wc:n remontointi, alakerran väliovet
2018 Alakerran oven eletroninen lukko ja autotallin nosto-ovi, sivuovi ja pihaovet
2019 Viemäreiden sukitus, uima-altaan huolto, sivupihan muokkaus, Verisure hälytysjärjestelmä
2020 Terassin aidoitus etupiha, katon pesu ja tervaus
2022 Khh vesivahinkokorjaus ja ovi ent. öljyhuoneeseen
2023 Ilmanvaihtoremontti ylä- ja alakerta, ilmalämpöpumppu ja rappusten kunnostus
2024 Aurinkopaneelit
2025 AK maalausta
Yksityiskohtainen liite saatavissa välittäjältä.
Kunto
Tyydyttävä
Takka
Avotakka. Nuohous vuosittain
Kauppaan ei kuulu
Pesukone, kuivausrumpu.

KIINTEISTÖ- JA YHTIÖTIEDOT

Asuinpinta-ala
199,0 m² (229,0 m²)
Kiinteistötunnus
91-45-31-47
Tyyppi
Tontti
Tontin omistus
Oma
Tontin koko
844,00 m²
Tontin tyyppi
Rinnetontti
Tontin kuvaus
Entinen kiinteistötunnus: 91-45-31-43
Panttikirjat
600 000,00 €
Pihan kuvaus
Suojainen, iso takapiha
Rakennusvuosi (aloitettu)
1958
Rakennusmateriaali
Puu, kivi, muu, betoni, siporex
Rakennusmateriaalin kuvaus
Maanvaraiset betonianturat ja betoniperusmuurit. Kellarikerroksessa maanvarainen betonilaatta. Ulkoseinärakenteet Siporex-runko.
Julkisivupinnoite rappaus. Väliseinät kiviainesrunkoisia. Välipohjat 1 kerroksen ja kellarikerroksen välipohja betonirakenteinen. Yläpohja puurunkoinen.
Muut rakennukset
Autotalli (31 m²) rakennettu 1973. Jätekatos+varasto (2014)
Kattotyyppi
Pulpetti
Kate
Bitumihuopakate
Lämmitysjärjestelmä
V. 2001
Lämmitysjärjestelmän kuvaus
Kaukolämpö
Ilmanvaihtojärjestelmä
Painovoimainen, alakerrassa koneellinen poistoilma. Korvausilma venttiilit. Ilmavaihtokartoitus/uusiminen (2023). Tarkemmat tiedot välittäjältä.
Energiatodistus
Kyllä
Lisätietoja energiatodistuksesta
Voimassa 19.5.2035 asti.
Energialuokka
D2018
Vesijohto
Kunnan
Viemäri
Kunnan
Rakennusoikeus
211,0 m²
Rakennusoikeus, e-luku
0.25

MUITA TIETOJA

Kaavoitus
Asemakaava
Palvelut
Easton-kauppakeskus, Itäkeskus ja Herttoniemi
Päiväkoti
Alueella
Koulu
Sivukoulu (alimmat luokat) alueella
Liikenneyhteydet
Bussi, metro
Vapautuu
Sopimuksen mukaan

ASUMISKUSTANNUKSET

Muut maksut / lisätietoa maksuista
Kaukolämpö kulutus 30,5 mWh/vuosi lämpiää talo, kodinhoitohuoneen ja yläkerran wc lattialämmitys, sekä uima-allas (lämmitys koko vuoden); hinta ollut 328 €/kk (sis alv).
Sähköä on kulunut kodinkoneiden käyttöön, pesuhuone/sauna lattialämmitykseen, tuulikaapin lattialämmitykseen, saunan lämmitykseen, autotallin lämmitykseen, sähköauton lataukseen, valaistukseen ja muihin kodin laitteisiin. Kulutus ollut nykyisellä omistajalla vuonna 2025 17,5 kWh/vuosi.

Vesimaksu n. 20 €/hlö/kk.
Puhtaanapito 450 €/v (jätemaksu 300 €/v, kadut 80 €/v ja nuohous 65 €/v).

Esitetyt sähkön kulutusmäärät/asumiskustannukset perustuvat nykykäyttöön ja voivat siten olla
suurempia tai pienempiä riippuen asukasmäärästä, asumistottumuksista
sekä palveluntarjoajasta.

Varainsiirtovero 3 %.
Kiinteistövero
1 800,00 €

HINTA

Myyntihinta
690 000,00 €
Velaton hinta
690 000,00 €
Puolaharju 11a - kuva 1 Puolaharju 11a - kuva 2 Puolaharju 11a - kuva 3 Puolaharju 11a - kuva 4 Puolaharju 11a - kuva 5 Puolaharju 11a - kuva 6 Puolaharju 11a - kuva 7 Puolaharju 11a - kuva 8 Puolaharju 11a - kuva 9 Puolaharju 11a - kuva 10 Puolaharju 11a - kuva 11 Puolaharju 11a - kuva 12 Puolaharju 11a - kuva 13 Puolaharju 11a - kuva 14 Puolaharju 11a - kuva 15 Puolaharju 11a - kuva 16 Puolaharju 11a - kuva 17 Puolaharju 11a - kuva 18 Puolaharju 11a - kuva 19 Puolaharju 11a - kuva 20 Puolaharju 11a - kuva 21 Puolaharju 11a - kuva 22 Puolaharju 11a - kuva 23 Puolaharju 11a - kuva 24 Puolaharju 11a - kuva 25 Puolaharju 11a - kuva 26 Puolaharju 11a - kuva 27 Puolaharju 11a - kuva 28 Puolaharju 11a - kuva 29 Puolaharju 11a - kuva 30 Puolaharju 11a - kuva 31 Puolaharju 11a - kuva 32 Puolaharju 11a - kuva 33 Puolaharju 11a - kuva 34 Puolaharju 11a - kuva 35 Puolaharju 11a - kuva 36 Puolaharju 11a - kuva 37 Puolaharju 11a - kuva 38 Puolaharju 11a - kuva 39 Puolaharju 11a - kuva 40 Puolaharju 11a - kuva 41 Puolaharju 11a - kuva 42 Puolaharju 11a - kuva 43 Puolaharju 11a - kuva 44