Esperantotie 2 B

Iirislahti, Espoo | Omakotitalo | 5h+k+oh+2kph+s+wc+2xvh+t+parv+at+2x ak/ kokonaispinta-ala 154,5m2/

  • 1 195 000 €

    Velaton hinta

  • 128,0 m2

    Asuinpinta-ala

  • 154,5 m2

    Kokonaispinta-ala

  • 2022

    Rakennusvuosi

Tyyliä ja tunnelmaa Iirislahdessa

Tässä upeassa ja huolella rakennetussa kivitalossa arki asettuu luontevasti kahteen tasoon.
Jokainen kodin yksityiskohta on harkittu tarkasti ja kotiin on valittu ainoastaan super laadukkaita materiaaleja ja moderneja ratkaisuja mm Schucon ikkunat ja liukuovet, kylpytiloihin ylelliset italialaiset suurlaatat, lämmitysjärjestelmäksi on valittu maalämpö- ja viilennys ja talossa on Loxonen taloautomaatiojärjestelmä. Sisääntulokerros on suunniteltu rauhoittumiseen ja yksityisyyteen. Tyylikkäästi toteutetussa kylpyhuoneessa voi myös rentoutua Baltecon poreammeessa ja nauttia ihanan lempeistä löylyistä. Kylpyhuoneesta on suora käynti terassille.
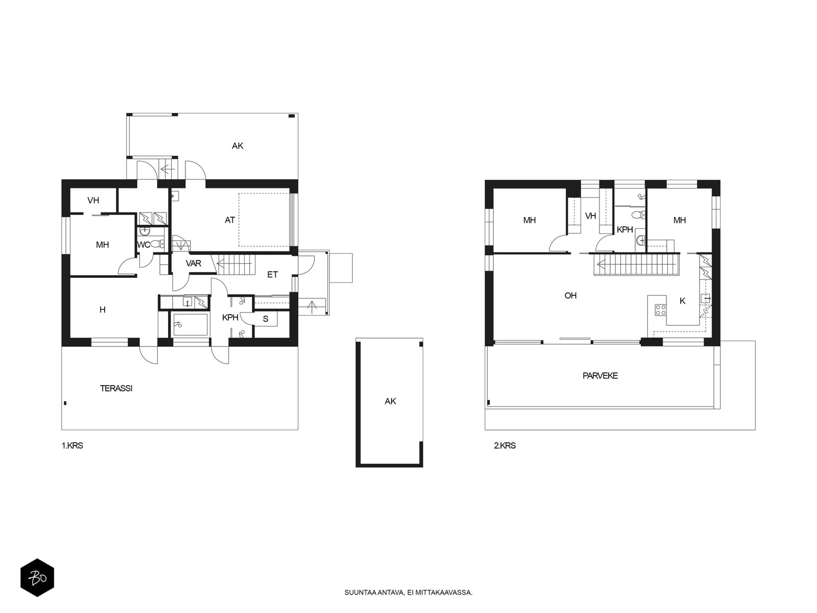
Alakerrassa on makuuhuone sekä avoin oleskelutila, joka toimii monikäyttöisenä tilana esimerkiksi arjen oleiluun, työskentelyyn tai vierashuoneeksi, ja täältä on myös suora käynti suojaisalle terassille ja vehreälle pihalle.

Kodin yläkerrassa avautuu valoisa ja avara kodin sosiaalinen sydän. Tyylikkäässä keittiössä on Dektonin työtaso ja Gaggenaun kodinkoneet. Keittiön yhteydessä oleva ruokailutila ja olohuone muodostavat avaran ja valoisan kokonaisuuden, jossa suuret ikkunapinnat tuovat tilaan upeaa luonnonvaloa. Olohuoneesta on käynti hulppean kokoiselle parvekkeelle joka kesäkuukausina jatkaa oleskelutilaa ulos ja tarjoaa viihtyisän paikan aamukahville, rentoutumiseen tai perheen yhteisille iltahetkille. Yläkerrassa sijaitsevat myös kodin kaksi makuuhuonetta, joista toisesta on kulku vaatehuoneeseen sekä tyylikäs ja toimiva kylpyhuone.

Kokonaisuus on selkeä, moderni ja harkiten rakennettu. Tilat tukevat niin rauhallista asumista kuin yhdessäoloa, ja laadukkaat materiaalivalinnat sekä linjakas ilme luovat kotiin tyylikkään ja todella viimeistellyn tunnelman. Laadusta ei ole tingitty missään. Kodissa on autotalli, kaksi autokatosta ja varaus sähköauton lataukselle. Pihapiiri on huoliteltu ja viimeistelty.
Tämän kodin asumiskustannukset ovat hyvin kohtuulliset.

Koti sijaitsee rauhallisella ja viihtyisällä alueella päättyvän kadun varrella, jossa moderni pientaloasuminen ja vehreät näkymät kulkevat käsi kädessä. Lähiympäristö on selkeä ja huoliteltu, ja alueella korostuvat väljät pihat, suojaisat kulkureitit sekä arjen rauha.

Iirislahden suosio ei ole sattumaa, sillä meren ja luonnon läheisyys tuo alueelle aivan uniiikin tunnelman. Monipuoliset ja runsaat palvelut ovat vain pienen matkan päässä Isossa Omenassa, jossa myös lähin metron pysäkki. Lähialueella on sekä suomen-että ruotsinkieliset koulut ja päiväkodit ja upean monipuoliset harrastusmahdollisuudet.

Tervetuloa tutustumaan ja ihastumaan!

Varaathan aikasi yksityisesittelyyn.

Myynti ja esittely:

MARJAANA SUOMINEN
asuntomyyjä, Kilat, partner

040 8416558
marjaana@bo.fi

Kiinnostaako tämä kohde?

Ota meihin yhteyttä tai jätä viesti

HUONEISTO

Huoneluku
5h+k+oh+2kph+s+wc+2xvh+t+parv+at+2x ak/ kokonaispinta-ala 154,5m²/
Kerros
1-2
Kerroksia
2
Asuinpinta-ala
128,0 m²
Muut tilat
26,5 m²
Lisätietoja pinta-alasta
Asuintilojen pinta-ala rakennuspiirustusten mukainen huoneistoala. Autotallin kerrosala 21 m² ja toisen autokatoksen kokonaisala 25 m². Ulkovaraston kerrosala 5,5 m².
Keittiön kuvaus, lisätiedot ja varustus
Keittiö:
Keittiömaailma a la carte
Keittiön taso : Dekton
Liesi
Induktio, erillisuuni
Keittiön muut varusteet
Mikroaaltouuni, astianpesukone
Keittiön työtasojen materiaali
Muu
Keittiön lattiamateriaali
Laatta
Keittiön seinien materiaali
Maalattu
Pesutilojen kuvaus, lisätiedot ja varustus
Alakerta kph:
-Lattiapinta italialainen laatta
-Seinät italialainen laatta
-2x suihku Hans Grohe
-Poreamme Baltecon
- Cariitin tähtitaivas valot
- Sauna

Yläkerran kph:
-Lattia laattaa
-Seinät kaakeli
-liukuovellinen suihkuseinä
-1x Hans Grohe suihku
- allaskaappi 120 cm / 1 allas
- seinämallinen wc -istuin Duravit
Kylpyhuoneen varustus
Pesukoneliitäntä, lattialämmitys
Kylpyhuoneen lattiamateriaali
Laatta
WC-tilojen kuvaus
- wc istuin
- peili
- pesuallas & allaskaappi
- lattia ja seinät italialainen laatta
Varustus: lattialämmitys
Lukumäärä: 1
Kodinhoitohuone
Ei erillistä kodinhoitotilaa, vaan pesukone ja kuivausrumpu liukuovikaapiston sisällä
Varustus: pesukoneliitäntä, pesuallas, lattialämmitys, lattiakaivo
Lattiamateriaalit: laatta
Seinämateriaalit: maalattu
Sauna
Asunnossa on sauna
Saunan kuvaus, lisätiedot ja varustus
Lauteet lämpöhaapaa
Saunan lattiamateriaali
Laatta
Saunan seinämateriaali
Puu
Makuuhuoneen kuvaus, lisätiedot ja varustus
Alakerran makuuhuoneessa laattalattia ja yläkerran makuuhuoneissa kokolattiamatto.
Lukumäärä: 3
Lattiamateriaalit: laatta, muu
Seinämateriaalit: maalattu
Oleskelutilojen kuvaus, lisätiedot ja varustus
Schucon ikkunat ja liukuovi parvekkeelle.
Lattiamateriaalit: laatta
Seinämateriaalit: maalattu
Muut huonetilat
Parveke n 30m², laatoitus 120x60 suurlaatta.
Terassi n 40m² Pieksäwood puukomposiitti.
Muuta kauppaan kuuluvaa
Valopeili eteisessä
Kunto
Hyvä
Takkatiedot
Takkavaraus

KIINTEISTÖ- JA YHTIÖTIEDOT

Asuinpinta-ala
128,0 m² (154,5 m²)
Kiinteistötunnus
49-23-205-10
Tyyppi
Määräosa
Tontin omistus
Oma
Tontin koko
1 680,00 m²
Tontin tyyppi
Tasamaatontti
Tontin kuvaus
Myydään 1/3 määräosa. Tontin kokonaispinta-ala on 1680 m². Hallinnanjakosopimuksen mukaan osapuolet omistavat sopimuksen kohteena olevan tontin määräosin. Tontti jaetaan kolmeen hallinta-alueeseen A-C sekä Y (yhteiskäyttöalue). Osapuolten välinen omistusosuus on määritelty pitäen lähtökohtana arvioitua hallinta-alueiden käytössä olevaa rakennusoikeutta. Hallinta-alue B tontin pinta-ala on 553 m².
Tie perille
Panttikirjat
600 000,00 €
Käyttöönottovuosi
2022
Rakennusmateriaali
Kivi, muu, betonielementti
Muut rakennukset
Autotalli
Kaksi autokatosta
Sähkölukot ja ohjaus automaatiolla.
Koodipaneeli / NFC
Kattotyyppi
Pulpettikatto
Kate
Bitumikermi
Lämmitysjärjestelmän kuvaus
Maalämpö, muu
Ilmanvaihtojärjestelmä
Koneellinen tulo, koneellinen poisto, lämmön talteenotto, muu
Energiatodistus
Kyllä
Energialuokka
A2018
Vesijohto
Kunnan
Viemäri
Kunnan
Rakennusoikeus, e-luku
0.25
Lisätietoja rakennusoikeudesta
Tontille saa rakentaa korkeintaan yhden asunnon kutakin alkavaa tontin pinta-alan 600 m² kohti. Rakennuksiin ei saa rakentaa maanpäällistä kellaria. Tontilla vähintään 2/3 kerrosalasta on toteutettava 2-kerroksisena.

MUITA TIETOJA

Kaavoitus
Asemakaava
Vapautuu
Sopimuksen mukaan
Lisätietoja
Taloautomaatio: kustomoidut valmoodit/ohjaukset, puhelin ohjaus, varashälytinoptio, liiketunnistimet, huonekohtainen lämmönsäätö, takkakytkin jne.
Asuinrakennus on varustettu sähköverkkoon kytkettävällä palovaroitinjärjestelmällä.
Ovileveydet ovat asetuksen YM 241/2017 esteettömyysmääräysten mukaan. Ikkunoiden, ovien ja kaiteiden turvalasitukset asetuksen YM 1007/2017 käyttöturvallisuusmääräysten mukaisesti putoamisvaara ja kaidekuormakestävyys huomioiden.
Savuhormien rakenteet ja paloturvallisuus asetuksen YM 745/2017 määräysten mukaisesti.

ASUMISKUSTANNUKSET

Muut maksut / lisätietoa maksuista
Sähkö: 698 e/vuosi (sisältää lämmityksen ja käyttösähkön)
11000kWh / käyttösähkö ja lämmitys

Kiinteistövero B talon osalta: 1222,32€/vuosi

Ilmoitetut kustannukset ja kulutusperusteiset maksut perustuvat nykyiseen kulutukseen ja ne saattavat muuttua ilmoitetuista käytön mukaan ja voivat siten olla pienempiä tai suurempia riippuen asukasmäärästä, asumistottumuksista ja palveluntarjoajasta.

Sähkö kulutuksen/oman sähkösopimuksen mukaisesti. Sähköisten panttikirjojen siirtomaksusta vastaa ostaja.

Varainsiirtovero 3 % kauppahinnasta.

Hallinnanjakosopimus kustannusten jako: Osapuolet vastaavat omistukseensa kuuluvien rakennusten sekä hallintaansa kuuluvien piha-alueiden rakentamis-, hoito- ja kunnossapitokustannuksista. Tarvittavat yhteiseen käyttöön tulevat lämmitys-, vesi-, viemäri-, sähkö- sekä telelaitteiden putket, johdot ja muut rakennelmat ja laitteet sijoitetaan mahdollisimman tarkoituksenmukaisesti ja ne tulevat yhteiseen omistukseen. Em. putkien, johtojen sekä rakennelmien ja laitteiden rakentamis-, hoito- ja kunnossapitokustannuksista vastaavat osapuolet tasaosuuksin.
Vesi ja jätevesi
45 €
Puhtaanapito
22 €

HINTA

Myyntihinta
1 195 000,00 €
Velaton hinta
1 195 000,00 €
Esperantotie 2 B - kuva 1 Esperantotie 2 B - kuva 2 Esperantotie 2 B - kuva 3 Esperantotie 2 B - kuva 4 Esperantotie 2 B - kuva 5 Esperantotie 2 B - kuva 6 Esperantotie 2 B - kuva 7 Esperantotie 2 B - kuva 8 Esperantotie 2 B - kuva 9 Esperantotie 2 B - kuva 10 Esperantotie 2 B - kuva 11 Esperantotie 2 B - kuva 12 Esperantotie 2 B - kuva 13 Esperantotie 2 B - kuva 14 Esperantotie 2 B - kuva 15 Esperantotie 2 B - kuva 16 Esperantotie 2 B - kuva 17 Esperantotie 2 B - kuva 18 Esperantotie 2 B - kuva 19 Esperantotie 2 B - kuva 20 Esperantotie 2 B - kuva 21 Esperantotie 2 B - kuva 22 Esperantotie 2 B - kuva 23 Esperantotie 2 B - kuva 24 Esperantotie 2 B - kuva 25 Esperantotie 2 B - kuva 26 Esperantotie 2 B - kuva 27 Esperantotie 2 B - kuva 28 Esperantotie 2 B - kuva 29 Esperantotie 2 B - kuva 30 Esperantotie 2 B - kuva 31 Esperantotie 2 B - kuva 32 Esperantotie 2 B - kuva 33