Vasaratie 51

Viiala, Tampere | Paritalo | 3-4mh, oh, k, kph, khh, s, erill. wc, vh, ullakkovar., terassi, lasitettu terassi + autok., ulkovar (yhtiöjärj. mukaan 88 m²)

  • 343 000 €

    Velaton hinta

  • 108,0 m2

    Asuinpinta-ala

  • 404,80 €/kk

    Hoitovastike

  • 2002

    Rakennusvuosi

Tilava paritalokoti Viialan rauhassa

Tässä on koti, joka yhdistää omakotitalon väljyyden ja huolettomuuden: hyvin pidetty, remontoitu ja tilava paritalokoti, jonka ikkunoista avautuvat rauhalliset näkymät viereiseen puistoon.

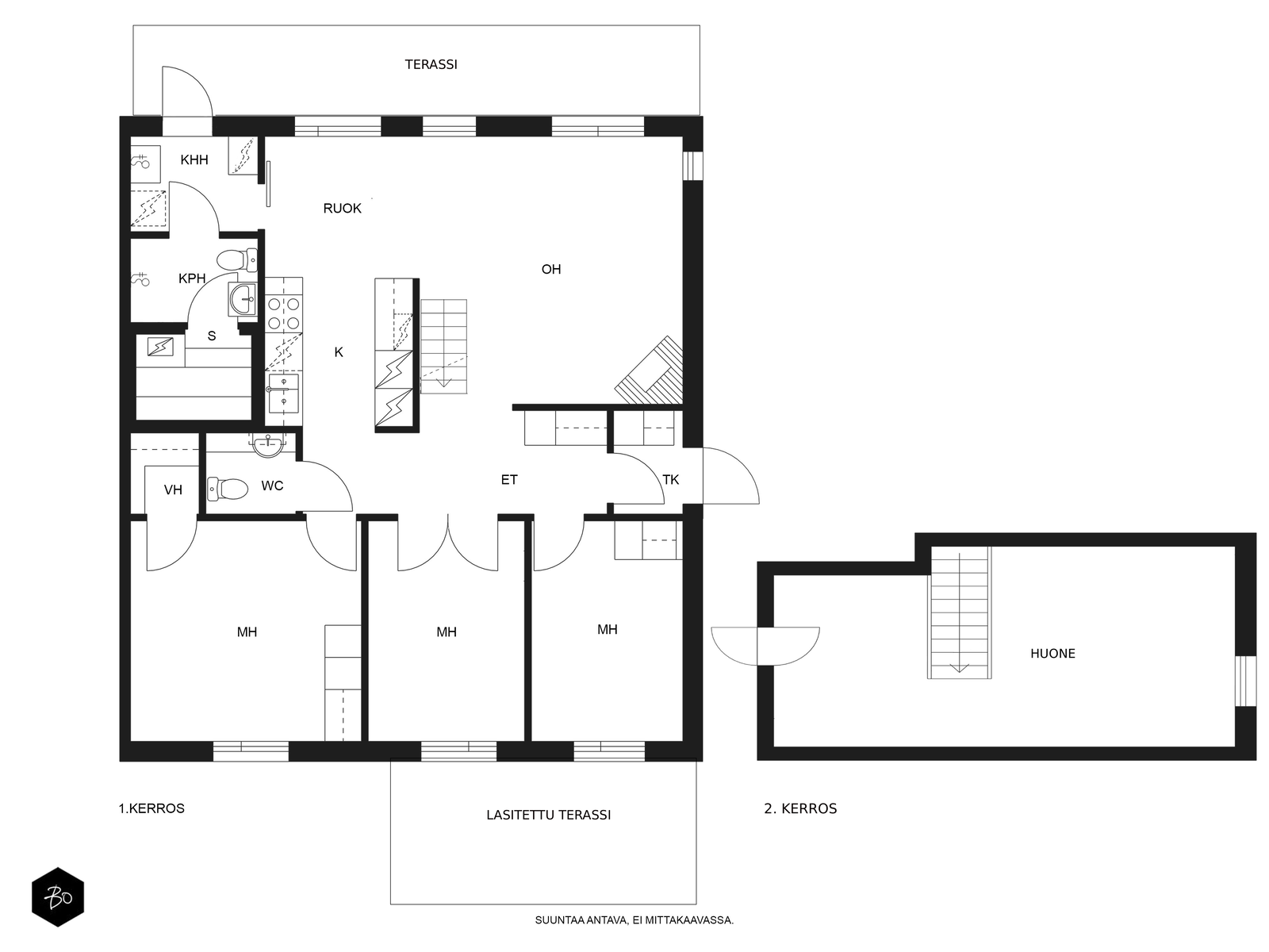
Vuonna 2002 valmistunut koti tarjoaa erinomaiset tilaratkaisut kahdessa kerroksessa. Alakerran sydämenä toimii valoisa olohuone varaavalla takalla, josta käynti avautuu terassille. Keittiö on päivitetty 2023, ja pesutiloihin on tehty kokonaisvaltainen saneeraus vuonna 2010: kylpyhuone sadesuihkuineen, oma sauna tehokkaalla pilarikiukaalla sekä kodinhoitohuone, josta pääsee suoraan ulos. Yläkertaan toteutettu noin 20 neliön laajennus tuo kaivattua joustoa arjen tarpeisiin, olipa se sitten neljäs makuuhuone, etätyöpiste tai harrastetila.

Asunto-osakeyhtiö omistaa tonttinsa ja sitä on hoidettu suunnitelmallisesti: julkisivujen ja sokkelin maalaukset, ilmanvaihtohuollot sekä radonimureiden asennukset on toteutettu viime vuosina, ja märkätilojen kunto on kartoitettu vuoden 2025 aikana. Piha-alueella on tilaa kolmelle autolle autokatospaikan lisäksi, ja ulkovarastot pitävät kausivälineet järjestyksessä. Lasitettu terassi infrapunalämmittimellä jatkaa oleskelutilaa keväästä syksyyn, ja etelään suuntautuva avoin terassi kutsuu nauttimaan kesäpäivistä. Asumiskustannukset pysyvät kaukolämmön ja hyvin hoidetun yhtiön ansiosta maltillisina.

Viiala on luonteeltaan rauhallinen ja vehreä asuinalue, joka sopii erinomaisesti lapsiperheille ja kaikille tilaa arvostaville. Puisto aivan takapihalla tarjoaa luontoelämyksiä arjen keskelle, ja ulkoilumahdollisuudet ovat käden ulottuvilla. Tämä on koti, jossa tila, rauha ja käytännöllisyys kohtaavat. Tervetuloa tutustumaan!

Ota yhteyttä ja varaa oma esittelyaikasi!

KOHDETTA VÄLITTÄÄ
Mikko Lamu
0400 357 100 | mikko.lamu@bo.fi

Kiinnostaako tämä kohde?

Ota meihin yhteyttä tai jätä viesti

HUONEISTO

Osakkeet
8077-8707
Hallintamuoto
Asunto-osakeyhtiö
Huoneluku
3-4mh, oh, k, kph, khh, s, erill. wc, vh, ullakkovar., terassi, lasitettu terassi + autok., ulkovar (yhtiöjärj. mukaan 88 m²)
Kerros
1-2
Kerroksia
2
Asuinpinta-ala
108,0 m²
Muut tilat
0,0 m²
Lisätietoja pinta-alasta
Yläkerta 20 m² laajennettu asuinkäyttöön vuonna 2005. Yläkerrassa lisäksi käyttöullakkoa, minkä neliöitä ei ole laskettu. Asuinpinta-ala yhtiöjärjestyksen mukaan 88 m². Yhtiöjärjestyksen mukainen. Isännöitsijäntodistuksen mukainen.
Näkymät
Rauhalliset näkymät etupihalla ja takapihalle puistoon.
Keittiön kuvaus, lisätiedot ja varustus
Lattia: parketti, tammi.
Seinät: maalit, välitila metalli.

Keittiö remontoitu osittain vuonna 2023.

Jääkaappi, pakastekaappi, induktioliesi, kiertoilmauuni, astianpesukone, liesituuletin huippuimurilla (imuri uusittu 2025), kiinteä valaistus.
Pesutilojen kuvaus, lisätiedot ja varustus
Lattia: laatta.
Seinät: laatta.

Kylpyhuone saneerattu kokonaan vuonna 2010.

Piiloasennettu sadesuihku + käsisuihku, seinä wc-istuin, pesuallas, hana, allaskaapisto, valaistu peili. Kuituvalot + halogeenit. Lattialämmitys.
WC-tilojen kuvaus
Lattia: laatta.
Seinät: laatta, maalattu.

wc-istuin, bidee, pesuallas, hana, alllaskaapisto, peilikaappi, seinäkaappi. Lattialämmitys.
Lukumäärä: 1
Kodinhoitohuone
Lattia: laatta.
Seinät: laatta.

Kodinhoitohuone remontoitu kokonaisuudessaan 2010.

Pesukoneliitäntä, kuivauskaappi, pyykkikaappi, kyräsyöppö, hana, käsisuihku. Kiinteät valaisimet. Lattialämmitys.
Sauna
Asunnossa on sauna
Saunan kuvaus, lisätiedot ja varustus
Lattia: laatta.
Seinät: laatta, lämpökäsitelty tervaleppä.
Lauteet: lämpökäsitelty haapa

Sauna saneerattu kokonaan vuonna 2010.

Sähkökiuas. IKI pilarikiuas (10 kW).

Lauteiden alla on kylpyamme. Sauna vesieristetty remonttivaiheessa kokonaan. Suihkuhana.
Makuuhuoneen kuvaus, lisätiedot ja varustus
Lattia: parketti, tammi.
Seinät: tapetti.

Vaatekaapisto (MH1), Vaatekaapisto, vaatehuone (MH3). Ullakon laajennuksessa huone, mikä soveltuu mm. makuuhuoneeksi, työhuoneeksi (huonetta ei ole merkattu yhtiöjärjestyksessä makuuhuoneeksi, tila on rakennettu rakennusluvan mukaisesti)
Lukumäärä: 4
Oleskelutilojen kuvaus, lisätiedot ja varustus
Lattia: parketti, tammi.
Seinät: tapetti

Varaava takka (takkaimuri). Käynti etupihan terassille.
Muut huonetilat
Tuulikaappi: laatta lattia. Vaatekaapisto.
Eteinen: lattia parkettia. Vaatekaapisto.
Yläkerran laajennuksessa rakennettu huone/tila, kattoikkuna (sähköpatteri, mahdollisuus asentaa ilmalämpöpumppu).
Lasitettu ja avoin terassi.
Ullakkovarasto.
Kylmä ulkovarasto.
Muuta kauppaan kuuluvaa
Markiisi (moottori uusittu 2025), infrapunalämmitin lasitetulla terassilla, Verisure valvontajärjestelmä
Muutostyöt huoneistossa
2005 yläkerran laajennus,
2010 kylpyhuone, sauna, kodinhoitohuoneen saneeraus,
2010 pintaremonttia ja yhden makuuhuoneen väliovi muutettu parioveksi.
2015 lasitettu terassi (rakennuslupa),
2022 liukuovien asennus yläkertaan ja alakerran kodinhoitohuoneeseen.
2023 keittiön osittainen remontointi.
Kunto
Hyvä
Takka
Varaava
Takkatiedot
Takka, muu
Kauppaan ei kuulu
Irtaimisto

KIINTEISTÖ- JA YHTIÖTIEDOT

Asuinpinta-ala
108,0 m² (108,0 m²)
Yhtiön nimi
Asunto Oy Tampereen Vilusenhovi
Tontin omistus
Oma
Tontin koko
6 894,00 m²
Käyttöönottovuosi
2002
Rakennusmateriaali
Puu, betoni
Kattotyyppi
Harjakatto
Kate
Huopa
Lämmitysjärjestelmän kuvaus
Kaukolämpö
Energiatodistus
Kyllä
Energialuokka
E2013
Tehdyt korjaukset ja remontit
2013 Julkisivumaalaus (puuosat).
2014 Sokkelin maalaus.
2015 Sammalen poisto katolta.
2020-2021 Asfaltin korjaukset.
2022 Laajennetun kunnossapitotarveselvityksen laatiminen.
2023 Ilmanvaihtokanavien puhdistus, ilmamäärien säätö, laitteiden huolto.
2023 Radonimurien asennus E- ja G-taloihin.
2023 Huoltoraporttien mukaiset toimenpiteet.
2024 C-talon radonimurin asennus.
2024 F-talo ja varastorakennuksen kattorakennekorjausten loppuun saattaminen.
2024 Sähköautojen latauskartoitus.
2025 Huoneistojen märkätilojen ja vesikalusteiden kuntokartoitus.
2025 Keittiön allaskaappien tiivistykset ja pesutilojen silikonisaumojen uusiminen suihkuttelualueelta.
Tiedossa olevat tulevat korjaukset/remontit
Suunnitelmissa olevat korjaukset tulevaisuudessa:

2025-2026 Sammalen poisto katolta, palovaroittimien asennus, vesikaton huolto- ja korjauskartoitus ja uusimistarpeen ajankohdan määritys, ikkunoiden ja parvekeovien tarkastus- ja huolto.
2027 julkisivun puuosien huoltomaalausta.
2027-2028 lämmönjakokeskuksen uusiminen, patteriventtiilien uusiminen - suunnittelu ja toteutusvaihe, sähkökeskuksen lämpökamerakuvaus
2028-2030 vesikatteen uusiminen kartoituksen mukaisesti.
2030 lukostosarjoitus.
2031 vesi- ja viemäriverkoston kuntotutkimus
2032 ilmanvaihtokanavien puhdistus, säätö ja laitteiden huolto
Lisätietoja autonsäilytyspaikoista
Asunnon piha-alueella kolmelle autolle tilaa.
Isännöitsijäntodistuksen mukainen päivämäärä
14.04.2026
Kiinnitykset
2 241 180,00 €
Isännöitsijä
Kiinteistö-Tahkola Tampere Oy
Insinöörinkatu 40, 33720 Tampere
Isännöitsijä Niina Tolkki
020 748 8148
Kiinteistönhoito
Huoltoyhtiö
Taloyhtiössä muuta
- lämmönjakohuone
- urheiluvälinevarasto
- väestönsuoja
- koneellinen poistoilmanvaihto
- kaapeli-tv

- Osassa huoneistoista ullakko otettu asuinkäyttöön. Näiden tilojen vastuu kuuluu kaikilta osin osakkeenomistajalle.

MUITA TIETOJA

Kaavoitus
Asemakaava
Lisätietoa kaavoituksesta
Tampereen kaupunki, Frenckellin palvelupiste, p. 03 5656 4400
Vapautuu
3kk kaupanteosta / sopimuksen mukaan

ASUMISKUSTANNUKSET

Hoitovastike
404,80 €/kk (3,75 €/m²)
Yhtiövastike yhteensä
404,80 €
Vesimaksu
19,00 oma mittari
Muut maksut / lisätietoa maksuista
Vesimaksuennakko 19 €/hlö/kk

HINTA

Myyntihinta
343 000,00 € (3 175,93 €/m²)
Velaton hinta
343 000,00 € (3 175,93 €/m²)
Velkaosuus
0,00 € (0,00 €/m²)
Vasaratie 51 - kuva 1 Vasaratie 51 - kuva 2 Vasaratie 51 - kuva 3 Vasaratie 51 - kuva 4 Vasaratie 51 - kuva 5 Vasaratie 51 - kuva 6 Vasaratie 51 - kuva 7 Vasaratie 51 - kuva 8 Vasaratie 51 - kuva 9 Vasaratie 51 - kuva 10 Vasaratie 51 - kuva 11 Vasaratie 51 - kuva 12 Vasaratie 51 - kuva 13 Vasaratie 51 - kuva 14 Vasaratie 51 - kuva 15 Vasaratie 51 - kuva 16 Vasaratie 51 - kuva 17 Vasaratie 51 - kuva 18 Vasaratie 51 - kuva 19 Vasaratie 51 - kuva 20 Vasaratie 51 - kuva 21 Vasaratie 51 - kuva 22 Vasaratie 51 - kuva 23 Vasaratie 51 - kuva 24 Vasaratie 51 - kuva 25 Vasaratie 51 - kuva 26 Vasaratie 51 - kuva 27 Vasaratie 51 - kuva 28 Vasaratie 51 - kuva 29 Vasaratie 51 - kuva 30 Vasaratie 51 - kuva 31 Vasaratie 51 - kuva 32 Vasaratie 51 - kuva 33 Vasaratie 51 - kuva 34 Vasaratie 51 - kuva 35 Vasaratie 51 - kuva 36 Vasaratie 51 - kuva 37 Vasaratie 51 - kuva 38 Vasaratie 51 - kuva 39 Vasaratie 51 - kuva 40 Vasaratie 51 - kuva 41 Vasaratie 51 - kuva 42